Rungsted Kyst Station (Ru), en artikel om Rungsted Kyst Station
Rungsted Kyst Station – En Historisk Kystbanestation
Rungsted Kyst Station blev oprindeligt opført som en del af Kystbanens etablering i 1897 og hed oprindeligt Rungsted Station. I 1927 blev stationen og postdistriktet omdøbt til Rungsted Kyst for at undgå forveksling med Ringsted, som postvæsenet gentagne gange havde oplevet. Denne navneændring var en del af en større indsats for at præcisere geografiske placeringer i det danske jernbanenet.Beliggenhed og Ekspropriation
Rungsted Kyst Station ligger længere fra Strandvejen end de fleste andre stationer på Kystbanen. Dette skyldes, at ekspropriation af de store Rungstedgårde øst for den nuværende station ville have været for dyrt. I stedet blev stationen anlagt længere mod vest, hvilket betød, at gods fra de nærliggende gårde fortsat kunne håndteres fra stationen. Dette gjorde stationen til et vigtigt knudepunkt for transport af landbrugsvarer og industrielt gods.Industriens Rolle og Godsbanetransport
Ud over landbrugsvarer spillede industrien i Rungsted og Hørsholm en stor rolle i stationens betydning. Flere virksomheder bidrog til godstransporten, herunder Den Militære Klædefabrik (1791-1981), Hørsholm Klædefabrik (1885-1975), Hørsholm Jernstøberi (1900-1965) og et tobakspakkeri. Stationen håndterede store mængder gods og var udstyret med en omfattende infrastruktur, herunder læsserampe, læssekran og et varehus.Udviklingen af Jernbanestrukturen
Indtil 1923 havde Kystbanen kun dobbeltspor mod syd til København, mens strækningen mod nord til Helsingør fortsat var enkeltsporet. Rungsted Kyst Station fungerede som endestation for regionaltog og var udstyret med drejeskive og remise til vedligeholdelse af togene. For at forbedre kapaciteten blev sporarealet udvidet, og der blev etableret en blokpost i hver ende af stationen. Disse blev senere erstattet af en kommandopost ved vestre stationsbygning, som var en del af den sydlige tilbygning og strakte sig ud på perronen.Stationens Arkitektur og Udvidelser
Stationsbygningen blev oprindeligt opført uden de to tilbygninger i hver ende. Arkitekturen indeholdt tre store vinduer, der oprindeligt var åbne loggiaåbninger, tilsvarende dem der stadig findes på østbygningen. Den sydlige tilbygning blev tilføjet i 1908 til brug for postvæsenet, mens den nordlige tilbygning blev opført omkring 1930 og fungerede som postkontor indtil lukningen i 2005.Stationen i Dag
Rungsted Kyst Station er stadig en vigtig del af Kystbanen og betjener både lokale pendlere og rejsende. Selvom godstransporten er ophørt, spiller stationen fortsat en væsentlig rolle i kollektiv transport mellem København og Helsingør. Stationen har bevaret sin historiske arkitektur og fungerer som et knudepunkt for transport i Nordsjælland.Stamdata for Rungsted Kyst Station
| Andre navne og stavemåder | Før 23.09.1941 Rungsted. |
| Byggeår | 1897 |
| Åbnet | 1897.08.02 |
| Driftstatus | I drift |
| Status | Eksisterer stadig |
| Arkitekt | Heinrich Wenck |
| Adresse | Vestre Stationsvej 7, 2960 Rungsted Kyst |
| Stednavneforkortelse | Ru |
| Højdeplacering over havet | 16,0 meter |
| GPS koordinater | 55.882150,12.531453 |
Rungsted Kyst Station servicerede følgende jernbaner
| Jernbanens navn | Operatør | Længde | Åbnet | Nedlagt |
|---|---|---|---|---|
| København-Helsingør (Den sjællandske Kystbane) | DSB | 46,2 | 1897.08.02 | I drift |
BBR Data for Rungsted Kyst StationBBR DATA fra Danmarks Adressers Web API (DAWA), som Styrelsen for Dataforsyning og Effektivisering (SDFE) har ansvaret for.BBR DATA hentet: 2022-10-30 12:08:01 | |
| BBR Højde over havet | 16,0 meter |
| BBR GPS koordinater | 55.88213006,12.53131911 |
| BBR Byggeår eller konverteringsår | 1978 |
| BBR Bebygget areal i alt | 101 m2 |
| BBR Bebygget areal hovedbygningen | 101 m2 |
| BBR Samlet erhvervsareal | 101 m2 |
| BBR Antal etager | 1 |
Banedanmarks Data for Rungsted Kyst StationStations DATA fra Banedanmarks Open Data: http://geodata-banedanmark.opendata.arcgis.com/Stations DATA hentet: 2020-05-16 21:22:50 | |
| Afsnits navn | Rungsted Kyst |
| Afsnits type | Station |
| Afsnits forkortelse | Ru |
| Afsnits GPS koordinater | 55.88230913,12.53174804 |
Billede af Rungsted Kyst Station

Fotograf: Jacob Laursen - Dato: den 20. april 2020 Download billede
Billeder af Rungsted Kyst Station

Fotograf: Jacob Laursen - Dato: den 20. april 2020 Download billede

Fotograf: Jacob Laursen - Dato: den 20. april 2020 Download billede

Fotograf: Jacob Laursen - Dato: den 20. april 2020 Download billede

Fotograf: Jacob Laursen - Dato: den 20. april 2020 Download billede

Fotograf: Det Kgl. Bibliotek, Sylvest Jensen Luftfoto - Dato: 1956 - LINK til kilde.
Noter til: Billede af Rungsted Kyst Station.
Titel:- 1956 -
Sted:Danmark, Sjælland, Rungsted
Ophav:Sylvest Jensen Luftfoto
År:1956
Id:B-dia_02155_002.tif

Fotograf: Det Kgl. Bibliotek, Sylvest Jensen Luftfoto - Dato: 1956 - LINK til kilde.
Noter til: Billede af Rungsted Kyst Station.
Titel:- 1956 - Rungsted Kyst Station
Sted:Danmark, Sjælland, Rungsted
Ophav:Sylvest Jensen Luftfoto
År:1956
Id:B02155_003.tif

Fotograf: Det Kgl. Bibliotek, Sylvest Jensen Luftfoto - Dato: 1956 - LINK til kilde.
Noter til: Billede af Rungsted Kyst Station.
Titel:- 1956 - Rungsted Kyst Station
Sted:Danmark, Sjælland, Rungsted
Ophav:Sylvest Jensen Luftfoto
År:1956
Id:B02155_005.tif

Fotograf: Det Kgl. Bibliotek, Sylvest Jensen Luftfoto - Dato: 1952 - LINK til kilde.
Noter til: Billede af Rungsted Kyst Station.
Titel:- 1952 - Rungsted Kyst Station. Set mod syd, ud over Rungsted Golf Klub
Sted:Danmark, Sjælland, Rungsted
Ophav:Sylvest Jensen Luftfoto
År:1952
Id:H02154_p_008.tif

Fotograf: Det Kgl. Bibliotek, Sylvest Jensen Luftfoto - Dato: 1946-1969 - LINK til kilde.
Noter til: Billede af Rungsted Kyst Station.
Titel:Rungsted Kyst Station - 1946-1969 -
Bygningsnavn:Rungsted Kyst Station
Sted:Danmark, Sjælland, Rungsted
Ophav:Sylvest Jensen Luftfoto
År:1946-1969
Id:sylvest_nks_02952_2.tif

Fotograf: Det Kgl. Bibliotek, Sylvest Jensen Luftfoto - Dato: 1936-1938 - LINK til kilde.
Noter til: Billede af Rungsted Kyst Station.
Titel:- 1936-1938 -
Sted:Danmark, Sjælland, Hørsholm
Ophav:Sylvest Jensen Luftfoto
År:1936-1938
Id:L00245_010.tif

Fotograf: Jacob Laursen - Dato: den 23. marts 2025 Download billede

Fotograf: Jacob Laursen - Dato: den 23. marts 2025 Download billede

Fotograf: Jacob Laursen - Dato: den 23. marts 2025 Download billede

Fotograf: Jacob Laursen - Dato: den 23. marts 2025 Download billede

Fotograf: Jacob Laursen - Dato: den 23. marts 2025 Download billede

Fotograf: Jacob Laursen - Dato: den 23. marts 2025 Download billede

Fotograf: Jacob Laursen - Dato: den 19. juni 2024 Download billede

Fotograf: Jacob Laursen - Dato: den 19. juni 2024 Download billede

Fotograf: Jacob Laursen - Dato: den 19. juni 2024 Download billede

Fotograf: Jacob Laursen - Dato: den 19. juni 2024 Download billede

Fotograf: Jacob Laursen - Dato: den 19. juni 2024 Download billede

Fotograf: Jacob Laursen - Dato: den 19. juni 2024 Download billede

Fotograf: Jacob Laursen - Dato: den 19. juni 2024 Download billede

Fotograf: Jacob Laursen - Dato: den 19. juni 2024 Download billede

Fotograf: Jacob Laursen - Dato: den 20. april 2020 Download billede

Fotograf: Jacob Laursen - Dato: den 20. april 2020 Download billede

Fotograf: Jacob Laursen - Dato: den 20. april 2020 Download billede

Fotograf: Jacob Laursen - Dato: den 20. april 2020 Download billede

Fotograf: Jacob Laursen - Dato: den 20. april 2020 Download billede

Fotograf: Jacob Laursen - Dato: den 20. april 2020 Download billede

Fotograf: Jacob Laursen - Dato: den 20. april 2020 Download billede

Fotograf: Jacob Laursen - Dato: den 20. april 2020 Download billede

Fotograf: Jacob Laursen - Dato: den 20. april 2020 Download billede

Fotograf: Jacob Laursen - Dato: den 20. april 2020 Download billede

Fotograf: Jacob Laursen - Dato: den 20. april 2020 Download billede

Fotograf: Jacob Laursen - Dato: den 20. april 2020 Download billede

Fotograf: Jacob Laursen - Dato: den 20. april 2020 Download billede

Fotograf: Jacob Laursen - Dato: den 20. april 2020 Download billede
Tegninger af Rungsted Kyst Station

Kilde: Danmarks Jernbanemuseum - Dato: Ukendt - LINK til kilde.
Noter til: Tegning af Rungsted Kyst Stations Brændselsskur.
Transportselskab/ operatør: De danske Statsbaner (DSB)
Jernbanested: Rungsted Kyst
Navneændringer: Før 23.09.1941 Rungsted.
På strækningen: Klampenborg - Snekkersten
Beskrivelse: Brændselsskur.
Infrastrukturejer: De danske Statsbaner
Anslået motivdato: u.a.
Delsamling: Ulrik T. Jensens samling
Scannummer: DSB-Rungsted-brandselsskur-scan22548

Kilde: Danmarks Jernbanemuseum - Dato: Ukendt - LINK til kilde.
Noter til: Tegning af Rungsted Kyst Stations Ilgodsbygning med postkontor.
Transportselskab/ operatør: Statsbanedriften (DSB)
Jernbanested: Rungsted Kyst
Navneændringer: Før 23.09.1941 Rungsted.
På strækningen: Klampenborg - Snekkersten
Beskrivelse: Ilgodsbygning med postkontor.
Infrastrukturejer: Statsbanedriften
Anslået motivdato: u.a.
Delsamling: Ulrik T. Jensens samling
Scannummer: DSB-Rungsted-ilgodsbygning-scan22549

Kilde: Danmarks Jernbanemuseum - Dato: Ukendt - LINK til kilde.
Noter til: Tegning af Brændselsskur ved Rungsted Kyst Station.
Transportselskab/ operatør: De danske Statsbaner (DSB)
Jernbanested: Rungsted Kyst
Navneændringer: Før 23.09.1941 Rungsted.
På strækningen: Klampenborg - Snekkersten
Beskrivelse: Brændselsskur.
Infrastrukturejer: De danske Statsbaner
Anslået motivdato: u.a.
Fotograf/ billedkunstner: ukendt
Delsamling: Ulrik T. Jensens samling
Scannummer: DSB-rungsted-brandselsskur-scan28452

Kilde: Danmarks Jernbanemuseum - Dato: Ukendt - LINK til kilde.
Noter til: Tegning af Ilgodsbygning med postkontor ved Rungsted Kyst Station.
Transportselskab/ operatør: Statsbaneanlægene (DSB)
Jernbanested: Rungsted Kyst
Navneændringer: Før 23.09.1941 Rungsted.
På strækningen: Klampenborg - Snekkersten
Beskrivelse: Ilgodsbygning med postkontor.
Infrastrukturejer: Statsbanedriften
Anslået motivdato: u.a.
Fotograf/ billedkunstner: ukendt
Delsamling: Ulrik T. Jensens samling
Scannummer: DSB-rungsted-ilgodsbygning-scan28454

Kilde: Danmarks Jernbanemuseum - Dato: 1924 (oktobet) - LINK til kilde.
Noter til: Tegning af Skur for kul, koks og brænde ved Rungsted Kyst Station.
Transportselskab/ operatør: De danske Statsbaner (DSB)
Jernbanested: Rungsted Kyst
Navneændringer: Før 23.09.1941 Rungsted.
På strækningen: Klampenborg - Snekkersten
Beskrivelse: Skur for kul, koks og brænde.
Infrastrukturejer: De danske Statsbaner
Motivdato: 10/1924
Fotograf/ billedkunstner: ukendt
Delsamling: Ulrik T. Jensens samling
Scannummer: DSB-Vedbæk-brændselsskur-scan386

Kilde: Danmarks Jernbanemuseum - Dato: 1908 (februar) - LINK til kilde.
Noter til: Tegning af Garderobe og cykelstald ved Rungsted Kyst Station.
Transportselskab/ operatør: Ikke jernbaneejet (privat)
Ikke jernbaneejet (privat)
Jernbanested: Rungsted Kyst
Navneændringer: Før 23.09.1941 Rungsted.
På strækningen: Klampenborg - Snekkersten
Beskrivelse: Garderobe og cykelstald.
Infrastrukturejer: De danske Statsbaner
Motivdato: 2/1908
Fotograf/ billedkunstner: Sign. C. Nielsen
Delsamling: Ulrik T. Jensens samling
Scannummer: DSB-Rungsted-cykelstald-scan27333

Kilde: Danmarks Jernbanemuseum - Dato: 1908 (februar) - LINK til kilde.
Noter til: Tegning af Garderobe og cykelstald ved Rungsted Kyst Station.
Transportselskab/ operatør: Ikke jernbaneejet (privat)
Ikke jernbaneejet (privat)
Jernbanested: Rungsted Kyst
Navneændringer: Før 23.09.1941 Rungsted.
På strækningen: Klampenborg - Snekkersten
Beskrivelse: Garderobe og cykelstald.
Infrastrukturejer: De danske Statsbaner
Motivdato: 2/1908
Fotograf/ billedkunstner: Sign. C. Nielsen
Delsamling: Ulrik T. Jensens samling
Scannummer: DSB-Rungsted-cykelstald-scan27334

Kilde: Danmarks Jernbanemuseum - Dato: 1907 (juni) - LINK til kilde.
Noter til: Tegning af Ilgodsbygning med postkontor ved Rungsted Kyst Station.
Transportselskab/ operatør: De danske Statsbaner (DSB)
Jernbanested: Rungsted Kyst
Navneændringer: Før 23.09.1941 Rungsted.
På strækningen: Klampenborg - Snekkersten
Beskrivelse: Ilgodsbygning med postkontor.
Infrastrukturejer: De danske Statsbaner
Motivdato: 6/1907
Fotograf/ billedkunstner: ukendt
Delsamling: Ulrik T. Jensens samling
Scannummer: DSB-Rungsted-ilgodsbygning-m-postrum-scan484

Kilde: Danmarks Jernbanemuseum - Dato: 1896 - LINK til kilde.
Noter til: Tegning af Rungsted Kyst Stations remise.
Transportselskab/ operatør: Statsbanedriften (DSB)
Jernbanested: Rungsted Kyst
Navneændringer: Før 23.09.1941 Rungsted.
På strækningen: Klampenborg - Snekkersten
Beskrivelse: Lokomotivremise.
Infrastrukturejer: Statsbanedriften
Motivdato: 1896
Anslået motivdato: ca. 1896
Delsamling: Ulrik T. Jensens samling
Scannummer: DSB-rungsted-remise-scan28445

Kilde: Danmarks Jernbanemuseum - Dato: 1895 (oktober) - LINK til kilde.
Noter til: Tegning af Rungsted Kyst Station.
Transportselskab/ operatør: Statsbaneanlægene (DSB)
Jernbanested: Rungsted Kyst
Navneændringer: Før 23.09.1941 Rungsted.
På strækningen: Klampenborg - Snekkersten
Beskrivelse: Vestre stationsbygning.
Infrastrukturejer: Statsbanedriften
Motivdato: 10/1895
Fotograf/ billedkunstner: ukendt
Delsamling: Ulrik T. Jensens samling
Scannummer: DSB-Rungsted-vestre-side-gavl-længdesnit-mm-scan444

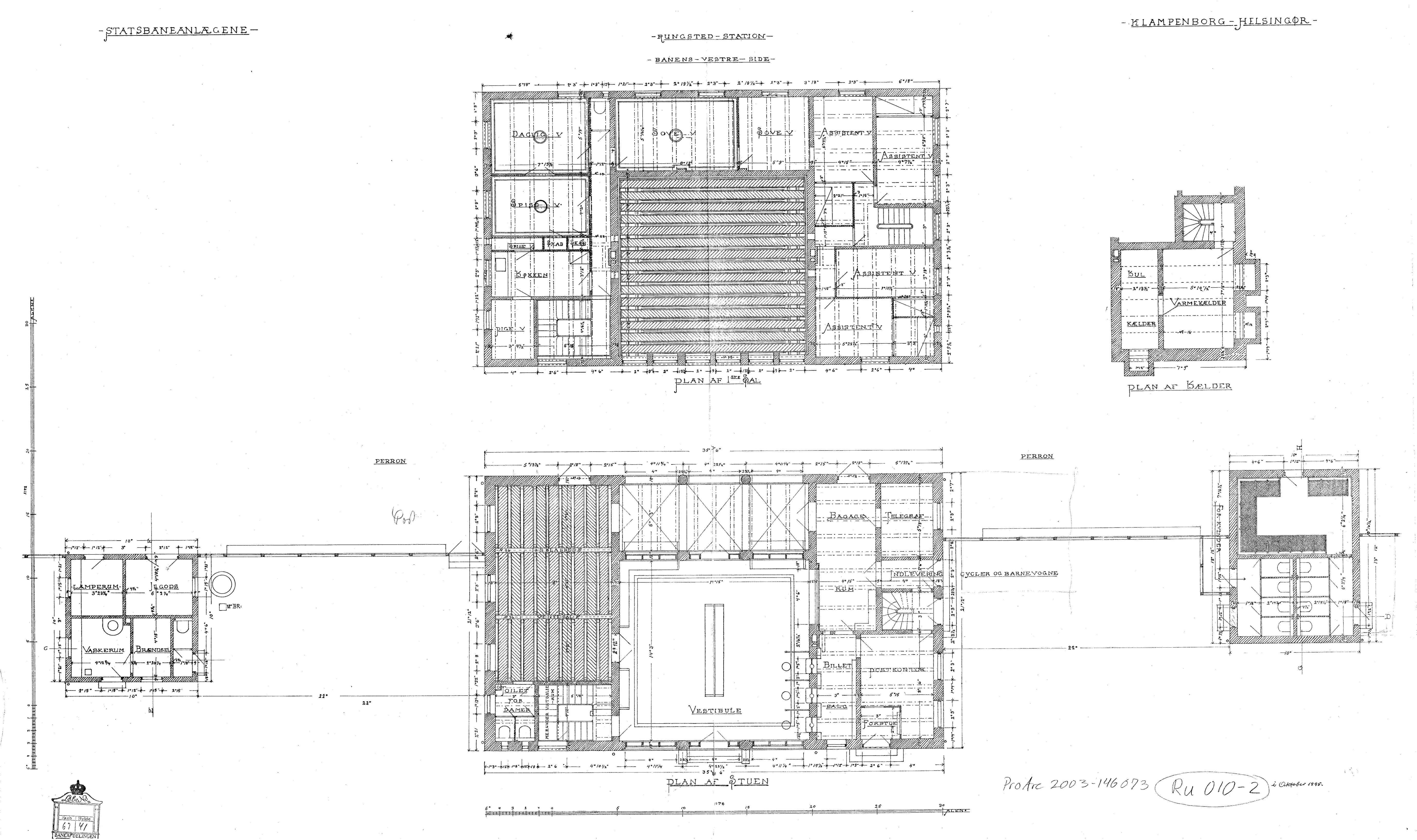
Kilde: Danmarks Jernbanemuseum - Dato: 1895 (oktober) - LINK til kilde.
Noter til: Tegning af Rungsted Kyst Station.
Transportselskab/ operatør: Statsbaneanlægene (DSB)
Jernbanested: Rungsted Kyst
Navneændringer: Før 23.09.1941 Rungsted.
På strækningen: Klampenborg - Snekkersten
Beskrivelse: Vestre stationsbygning.
Infrastrukturejer: Statsbanedriften
Motivdato: 10/1895
Fotograf/ billedkunstner: ukendt
Delsamling: Ulrik T. Jensens samling
Scannummer: DSB-Rungsted-vestre-side-gavl-længdesnit-mm-scan445

Kilde: Danmarks Jernbanemuseum - Dato: 1895 (oktober) - LINK til kilde.
Noter til: Tegning af Rungsted Kyst Station.
Transportselskab/ operatør: Statsbaneanlægene (DSB)
Jernbanested: Rungsted Kyst
Navneændringer: Før 23.09.1941 Rungsted.
På strækningen: Klampenborg - Snekkersten
Beskrivelse: Vestre stationsbygning.
Infrastrukturejer: Statsbanedriften
Motivdato: 10/1895
Fotograf/ billedkunstner: ukendt
Delsamling: Ulrik T. Jensens samling
Scannummer: DSB-Rungsted-vestre-side-opstalter-scan443

Kilde: Danmarks Jernbanemuseum - Dato: 1895 (oktober) - LINK til kilde.
Noter til: Tegning af Rungsted Kyst Station.
Transportselskab/ operatør: Statsbaneanlægene (DSB)
Jernbanested: Rungsted Kyst
Navneændringer: Før 23.09.1941 Rungsted.
På strækningen: Klampenborg - Snekkersten
Beskrivelse: Vestre stationsbygning.
Infrastrukturejer: Statsbanedriften
Motivdato: 10/1895
Fotograf/ billedkunstner: ukendt
Delsamling: Ulrik T. Jensens samling
Scannummer: DSB-Rungsted-vestre-side-planer-scan442

Kilde: Danmarks Jernbanemuseum - Dato: 1895 (oktober) - LINK til kilde.
Noter til: Tegning af Udkast til østre stationsbygning ved Rungsted Kyst Station.
Transportselskab/ operatør: Statsbaneanlægene (DSB)
Jernbanested: Klampenborg - Snekkersten
Beskrivelse: Udkast til østre stationsbygning *Skodsborg og *Rungsted Kyst.
Infrastrukturejer: Statsbanedriften
Motivdato: 10/1895
Fotograf/ billedkunstner: ukendt
Delsamling: Ulrik T. Jensens samling
Scannummer: DSB-Skodsborg-Rungsted-østre-side-opstalter-scan446

Kilde: Danmarks Jernbanemuseum - Dato: 1895 (oktober) - LINK til kilde.
Noter til: Tegning af Udkast til østre stationsbygning ved Rungsted Kyst Station.
Transportselskab/ operatør: Statsbaneanlægene (DSB)
Jernbanested: Klampenborg - Snekkersten
Beskrivelse: Udkast til østre stationsbygning *Skodsborg og *Rungsted Kyst.
Infrastrukturejer: Statsbanedriften
Motivdato: 10/1895
Fotograf/ billedkunstner: ukendt
Delsamling: Ulrik T. Jensens samling
Scannummer: DSB-Skodsborg-og-Rungsted-østre-station-snit-og-plan-scan441

Kilde: Danmarks Jernbanemuseum - Dato: 1893 - LINK til kilde.
Noter til: Tegning af forslag til Rungsted Kyst Station.
Transportselskab/ operatør: Statsbaneanlægene (DSB)
Jernbanested: Klampenborg - Snekkersten
Beskrivelse: Stationsbygning (projekt): Humlebæk og Rungsted.
Infrastrukturejer: Statsbanedriften
Motivdato: 1893
Fotograf/ billedkunstner: ukendt
Delsamling: Ulrik T. Jensens samling
Scannummer: DSB-Oresundsbanen-Humlebar-Rungsted-projekttegn-scan819

Kilde: Danmarks Jernbanemuseum - Dato: 1893 - LINK til kilde.
Noter til: Tegning af Udkast til Rungsted Kyst Station.
Transportselskab/ operatør: Statsbaneanlægene (DSB)
Jernbanested: Klampenborg - Snekkersten
Beskrivelse: Øresundsbanen. Udkast til hovedbygninger *Skodsborg, *Vedbæk, *Rungsted Kyst og *Humlebæk.
Infrastrukturejer: Statsbanedriften
Motivdato: 1893
Fotograf/ billedkunstner: ukendt
Delsamling: Ulrik T. Jensens samling
Scannummer: DSB-Oresundsbanen-Skodsborg-mv-stationer-plan-H-scan469
Google Street View af Rungsted Kyst Station
Kilde: © Street View, by Google Maps - Dato: den 4. januar 2022 - LINK til kilde.
Kort over Rungsted Kyst Station

Kort over Rungsted Kyst Station - Kilde: Indeholder data fra Styrelsen for Dataforsyning og Effektivisering, skærmkortet, WMS-tjeneste via datafordeler.dk (Ortofoto forår)

Kort over Rungsted Kyst Station - Kilde: Indeholder data fra Styrelsen for Dataforsyning og Effektivisering, skærmkortet, WMS-tjeneste via datafordeler.dk (Ortofoto forår)

Kort over Rungsted Kyst Station - Kilde: Indeholder data fra Styrelsen for Dataforsyning og Effektivisering, skærmkortet, WMS-tjeneste via datafordeler.dk (Topgrafisk kort 1980-2001)

Kort over Rungsted Kyst Station - Kilde: Indeholder data fra Styrelsen for Dataforsyning og Effektivisering, skærmkortet, WMS-tjeneste via datafordeler.dk (Topografisk kort 1953-1976)

Kort over Rungsted Kyst Station - Kilde: Indeholder data fra Styrelsen for Dataforsyning og Effektivisering, skærmkortet, WMS-tjeneste via datafordeler.dk (Lave Målebordsblade 1901-1971)
Litteratur for: Rungsted Kyst Station
![]() | Bogtitel Forfatter Udgivelsesår Sidetal Udgivelsessted Forlag ISBN | Dansk jernbanehistorie 3 Torben Andersen 2006 79 Lokomotivet 87-90-779-08-8 |
![]() | Bogtitel Forfatter Udgivelsesår Sidetal Udgivelsessted Forlag ISBN | Kystbanen 1897-1972 P. Thomassen 1972 311 Historisk Topografisk selskab for Søllerød kommune |
![]() | Bogtitel Forfatter Udgivelsesår Sidetal Udgivelsessted Forlag ISBN | Nordbanen John Poulsen 2020 316 Bane Bøger 978-87-91434-56-3 |
![]() | Bogtitel Forfatter Udgivelsesår Sidetal Udgivelsessted Forlag ISBN | Nordsjællandske jernbaner Niels Jensen 1975 80 København J. Fr. Clausen 87-11-03671-0 |



