Sædding Station (Æg), en artikel om Sædding Station
Stamdata for Sædding Station
| Byggeår | 1920 |
| Åbnet | 1920.11.15 |
| Nedlagt | 1955.10.02 |
| Status | Eksisterer stadig |
| Arkitekt | Heinrich Wenck |
| Adresse | Dyssevænget 40, 6900 Skjern |
| Stednavneforkortelse | Æg |
| Højdeplacering over havet | 36,6 meter |
| GPS koordinater | 56.019118,8.550025 |
Sædding Station servicerede følgende jernbaner
| Jernbanens navn | Operatør | Længde | Åbnet | Nedlagt |
|---|---|---|---|---|
| Skjern-Videbæk | DSB | 19,5 | 1920.11.15 | 1981.06.01 |
BBR Data for Sædding StationBBR DATA fra Danmarks Adressers Web API (DAWA), som Styrelsen for Dataforsyning og Effektivisering (SDFE) har ansvaret for.BBR DATA hentet: 2020-05-21 23:25:17 | |
| BBR Højde over havet | 36,6 meter |
| BBR GPS koordinater | 56.01909912,8.55004325 |
| BBR Byggeår eller konverteringsår | 1923 |
| BBR Seneste ombygning | 1975 |
| BBR Bebygget areal i alt | 147 m2 |
| BBR Bebygget areal hovedbygningen | 147 m2 |
| BBR Samlet boligareal | 247 m2 |
| BBR Antal etager | 1 |
Billede af Sædding Station

Fotograf: Det Kgl. Bibliotek, Aalborg Luftfoto - Dato: 1964 - LINK til kilde.
Noter til: Billede af Sædding Station.
Titel: Dyssevænget 40 - Sædding Station - 1964 -
Person: Bygningsnavn: Sædding Station
Sted: Dyssevænget 40, Sædding, 6900 Skjern
Vejnavn: Dyssevænget
Husnummer: 40
Lokalitet: Sædding
Postnummer: 6900
By: Skjern
Sogn: Sædding
Matrikelnummer: 27a, Sædding By, Sædding
Ophav: Aalborg Luftfoto
År: 1964
Note: Id: AAL_02727_041.tif
Billeder af Sædding Station

Fotograf: Jacob Laursen - Dato: den 13. juli 2023 Download billede

Fotograf: Jacob Laursen - Dato: den 13. juli 2023 Download billede

Fotograf: Jacob Laursen - Dato: den 13. juli 2023 Download billede

Fotograf: Jacob Laursen - Dato: den 13. juli 2023 Download billede
Tegninger af Sædding Station

Kilde: Danmarks Jernbanemuseum - Dato: 1919 (marts) - LINK til kilde.
Noter til: Tegning af Sædding Station.
Transportselskab/ operatør: De danske Statsbaner (DSB)
Jernbanested: Skjern - Videbæk
Beskrivelse: Stationsbygning: *Kongsholm, *Sædding og *Herborg.
Infrastrukturejer: De danske Statsbaner
Motivdato: 3/1919
Fotograf/ billedkunstner: Sign.: H. Wenck
Delsamling: Ulrik T. Jensens samling
Scannummer: DSB-Kongsholm-Herborg-Sadding-scan27402

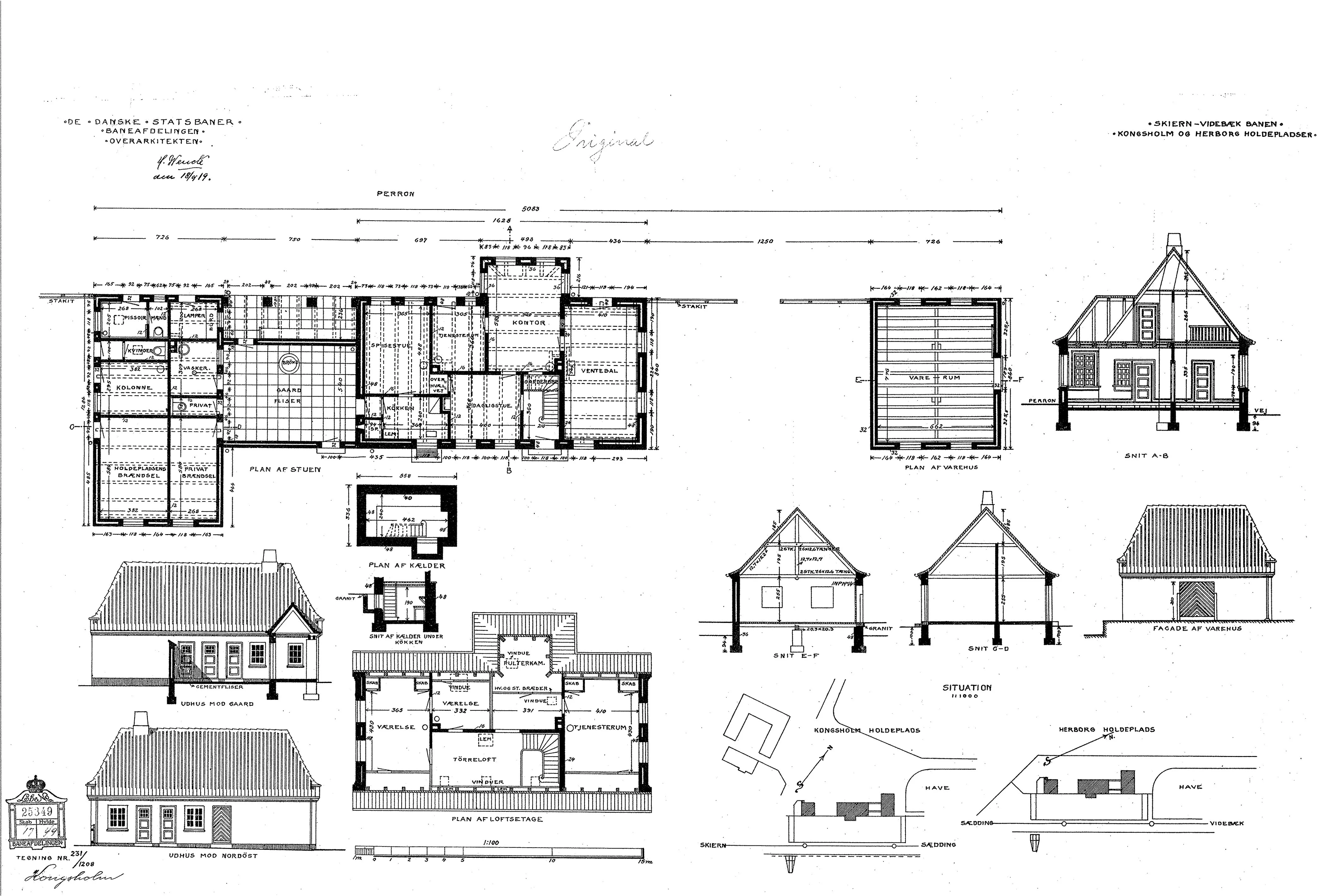
Kilde: Danmarks Jernbanemuseum - Dato: 18. sep. 1919 - LINK til kilde.
Noter til: Tegning af Sædding Station.
Transportselskab/ operatør: De danske Statsbaner (DSB)
Jernbanested: Skjern - Videbæk
Beskrivelse: Stationsbygning: *Kongsholm, *Sædding og *Herborg.
Infrastrukturejer: De danske Statsbaner
Motivdato: 18. sep. 1919
Fotograf/ billedkunstner: Sign.: H. Wenck
Delsamling: Ulrik T. Jensens samling
Scannummer: DSB-Kongsholm-Herborg-Sadding-scan27406

Kilde: Danmarks Jernbanemuseum - Dato: 18. sep. 1919 - LINK til kilde.
Noter til: Tegning af Sædding Station.
Transportselskab/ operatør: De danske Statsbaner (DSB)
Jernbanested: Skjern - Videbæk
Beskrivelse: Stationsbygning: *Kongsholm, *Sædding og *Herborg.
Infrastrukturejer: De danske Statsbaner
Motivdato: 18. sep. 1919
Fotograf/ billedkunstner: Sign.: H. Wenck
Delsamling: Ulrik T. Jensens samling
Scannummer: DSB-Kongsholm-Herborg-scan27407

Kilde: Danmarks Jernbanemuseum - Dato: 18. sep. 1919 - LINK til kilde.
Noter til: Tegning af Sædding Station.
Transportselskab/ operatør: De danske Statsbaner (DSB)
Jernbanested: Sædding
På strækningen: Skjern - Videbæk
Beskrivelse: Stationsbygning.
Infrastrukturejer: De danske Statsbaner
Motivdato: 18. sep. 1919
Fotograf/ billedkunstner: Sign.: H. Wenck
Delsamling: Ulrik T. Jensens samling
Scannummer: DSB-Sadding-scan27408
Google Street View af Sædding Station
Kilde: © Street View, by Google Maps - Dato: den 12. januar 2022 - LINK til kilde.
Kort over Sædding Station

Kort over Sædding Station - Kilde: Indeholder data fra Styrelsen for Dataforsyning og Effektivisering, skærmkortet, WMS-tjeneste via datafordeler.dk (Ortofoto forår)

Kort over Sædding Station - Kilde: Indeholder data fra Styrelsen for Dataforsyning og Effektivisering, skærmkortet, WMS-tjeneste via datafordeler.dk (Ortofoto forår)

Kort over Sædding Station - Kilde: Indeholder data fra Styrelsen for Dataforsyning og Effektivisering, skærmkortet, WMS-tjeneste via datafordeler.dk (Topgrafisk kort 1980-2001)

Kort over Sædding Station - Kilde: Indeholder data fra Styrelsen for Dataforsyning og Effektivisering, skærmkortet, WMS-tjeneste via datafordeler.dk (Topografisk kort 1953-1976)

Kort over Sædding Station - Kilde: Indeholder data fra Styrelsen for Dataforsyning og Effektivisering, skærmkortet, WMS-tjeneste via datafordeler.dk (Lave Målebordsblade 1901-1971)
Litteratur for: Sædding Station
![]() |
Bogtitel Forfatter Udgivelsesår Sidetal Udgivelsessted Forlag ISBN |
Vestjyske jernbaner Niels Jensen 1977 110 København J. Fr. Clausen 87-11-03821-7 |
