Tvis Station (Ts), en artikel om Tvis Station
Stamdata for Tvis Station
| Byggeår | 1904 |
| Åbnet | 1904.10.11 |
| Nedlagt | 1979 |
| Status | Eksisterer stadig |
| Arkitekt | Heinrich Wenck |
| Adresse | Klostervej 12, 7500 Holstebro |
| Stednavneforkortelse | Ts |
| Højdeplacering over havet | 40,0 meter |
| GPS koordinater | 56.321929,8.708409 |
Tvis Station servicerede følgende jernbaner
| Jernbanens navn | Operatør | Længde | Åbnet | Nedlagt |
|---|---|---|---|---|
| Herning-Holstebro | DSB | 41,1 | 1904.10.12 | I drift |
| Vejle-Holstebro Jernbane | DSB | 114,0 | 1904.10.11 | I drift |
BBR Data for Tvis StationBBR DATA fra Danmarks Adressers Web API (DAWA), som Styrelsen for Dataforsyning og Effektivisering (SDFE) har ansvaret for.BBR DATA hentet: 2020-05-21 23:25:26 | |
| BBR Højde over havet | 40,0 meter |
| BBR GPS koordinater | 56.32187349,8.70842029 |
| BBR Byggeår eller konverteringsår | 1907 |
| BBR Bebygget areal i alt | 134 m2 |
| BBR Bebygget areal hovedbygningen | 134 m2 |
| BBR Samlet boligareal | 244 m2 |
| BBR Antal etager | 1 |
Banedanmarks Data for Tvis StationStations DATA fra Banedanmarks Open Data: http://geodata-banedanmark.opendata.arcgis.com/Stations DATA hentet: 2020-05-16 21:22:50 | |
| Afsnits navn | Tvis |
| Afsnits type | Teknisk Station |
| Afsnits forkortelse | Ts |
| Afsnits GPS koordinater | 56.32194424,8.7085946 |
Tegninger af Tvis Station

Kilde: Danmarks Jernbanemuseum - Dato: den 18. august 1922 - LINK til kilde.
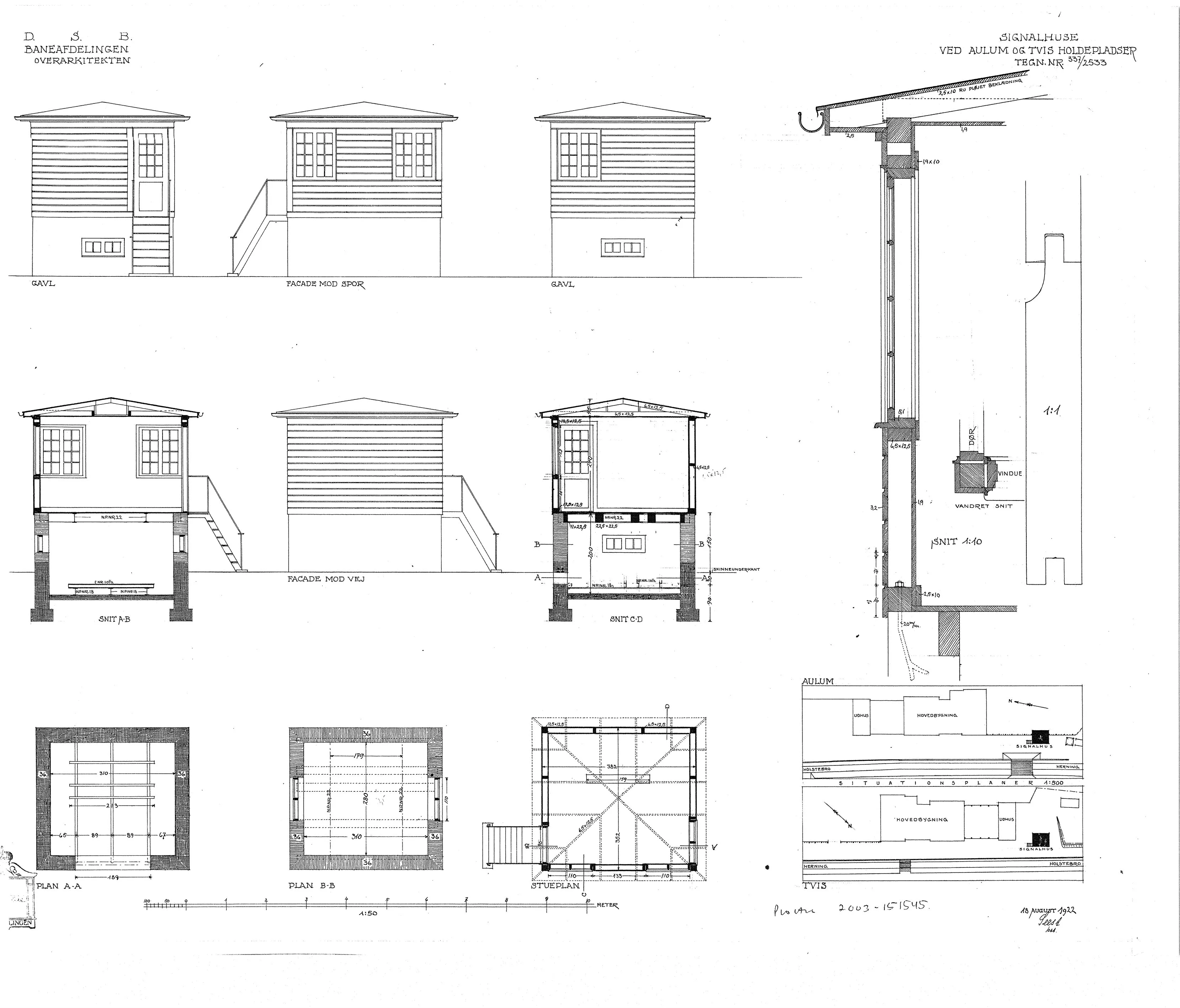
Noter til: Tegning af Tvis Stations signalhus.
Transportselskab/ operatør: De danske Statsbaner (DSB)
Jernbanested: Holstebro - Herning
Beskrivelse: Signalhus *Avlum og *Tvis. Sign: Seest (kst.).
Infrastrukturejer: De danske Statsbaner
Motivdato: 18. aug. 1922
Fotograf/ billedkunstner: ukendt
Delsamling: Ulrik T. Jensens samling
Scannummer: DSB-Aulum-Tvis-signalhuse-scan28193

Kilde: Danmarks Jernbanemuseum - Dato: 1904 (januar) - LINK til kilde.
Noter til: Tegning af Tvis Station.
Transportselskab/ operatør: Statsbaneanlægene (DSB)
Jernbanested: Holstebro - Herning
Beskrivelse: Stationsbygning: *Skibbild, *Tvis, *Vildbjerg og *Avlum.
Infrastrukturejer: Statsbanedriften
Motivdato: 1/1904
Fotograf/ billedkunstner: ukendt
Delsamling: Ulrik T. Jensens samling
Scannummer: DSB-Tvis-mv-skifter-scan22472

Kilde: Danmarks Jernbanemuseum - Dato: 1904 (januar) - LINK til kilde.
Noter til: Tegning af Tvis Station.
Transportselskab/ operatør: De danske Statsbaner (DSB)
Jernbanested: Holstebro - Herning
Beskrivelse: Stationsbygning: *Skibild, *Tvis, *Vilbjerg og *Avlum.
Infrastrukturejer: De danske Statsbaner
Motivdato: 1/1904
Fotograf/ billedkunstner: ukendt
Delsamling: Ulrik T. Jensens samling
Scannummer: DSB-Skibild-Tvis-mv-scan27397

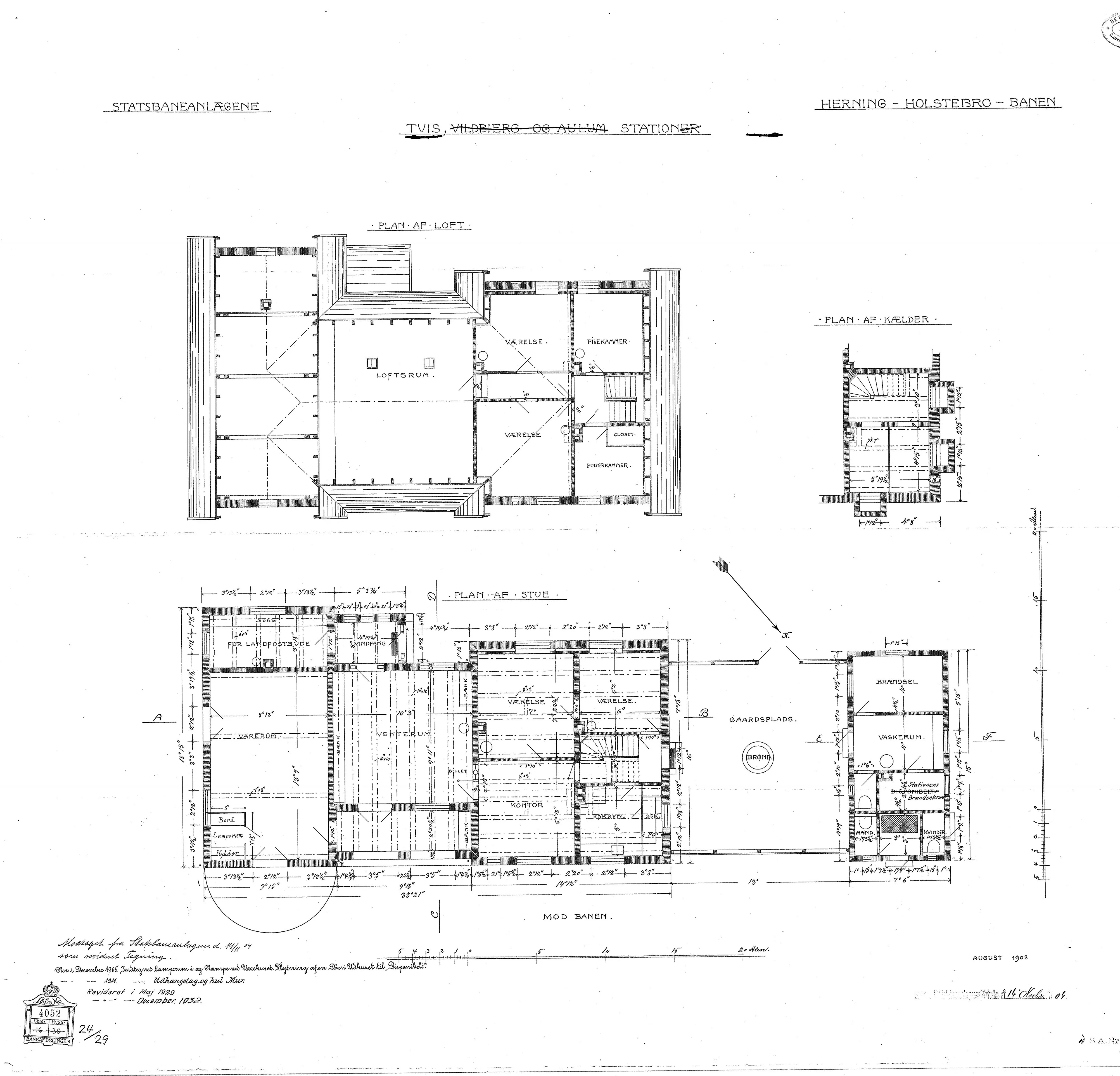
Kilde: Danmarks Jernbanemuseum - Dato: 1903 (august) - LINK til kilde.
Noter til: Tegning af Tvis Station.
Transportselskab/ operatør: Statsbaneanlægene (DSB)
Jernbanested: Holstebro - Herning
Beskrivelse: Stationsbygning: *Tvis, *Vildbjerg og *Avlum.
Infrastrukturejer: Statsbanedriften
Motivdato: 8/1903
Fotograf/ billedkunstner: ukendt
Delsamling: Ulrik T. Jensens samling
Scannummer: DSB-Tvis-mv-scan22469

Kilde: Danmarks Jernbanemuseum - Dato: 1903 (august) - LINK til kilde.
Noter til: Tegning af Tvis Station.
Transportselskab/ operatør: Statsbaneanlægene (DSB)
Jernbanested: Holstebro - Herning
Beskrivelse: Stationsbygning: *Tvis, *Vildbjerg og *Avlum.
Infrastrukturejer: Statsbanedriften
Motivdato: 8/1903
Fotograf/ billedkunstner: ukendt
Delsamling: Ulrik T. Jensens samling
Scannummer: DSB-Tvis-planer-scan27392

Kilde: Danmarks Jernbanemuseum - Dato: 1903 (august) - LINK til kilde.
Noter til: Tegning af Tvis Station.
Transportselskab/ operatør: Statsbaneanlægene (DSB)
Jernbanested: Holstebro - Herning
Beskrivelse: Stationsbygning: *Tvis, *Vildbjerg og *Avlum.
Infrastrukturejer: Statsbanedriften
Motivdato: 8/1903
Fotograf/ billedkunstner: ukendt
Delsamling: Ulrik T. Jensens samling
Scannummer: DSB-Tvis-mv-snit-scan22471

Kilde: Danmarks Jernbanemuseum - Dato: 1903 (august) - LINK til kilde.
Noter til: Tegning af Tvis Station.
Transportselskab/ operatør: Statsbaneanlægene (DSB)
Jernbanested: Holstebro - Herning
Beskrivelse: Stationsbygning: *Tvis, *Vildbjerg og *Avlum.
Infrastrukturejer: Statsbanedriften
Motivdato: 8/1903
Fotograf/ billedkunstner: ukendt
Delsamling: Ulrik T. Jensens samling
Scannummer: DSB-Tvis-Vildbjerg-Aulum-scan22470
Google Street View af Tvis Station
Kilde: © Street View, by Google Maps - Dato: den 18. januar 2022 - LINK til kilde.
Kort over Tvis Station

Kort over Tvis Station - Kilde: Indeholder data fra Styrelsen for Dataforsyning og Effektivisering, skærmkortet, WMS-tjeneste via datafordeler.dk (Ortofoto forår)

Kort over Tvis Station - Kilde: Indeholder data fra Styrelsen for Dataforsyning og Effektivisering, skærmkortet, WMS-tjeneste via datafordeler.dk (Ortofoto forår)

Kort over Tvis Station - Kilde: Indeholder data fra Styrelsen for Dataforsyning og Effektivisering, skærmkortet, WMS-tjeneste via datafordeler.dk (Topgrafisk kort 1980-2001)

Kort over Tvis Station - Kilde: Indeholder data fra Styrelsen for Dataforsyning og Effektivisering, skærmkortet, WMS-tjeneste via datafordeler.dk (Topografisk kort 1953-1976)

Kort over Tvis Station - Kilde: Indeholder data fra Styrelsen for Dataforsyning og Effektivisering, skærmkortet, WMS-tjeneste via datafordeler.dk (Lave Målebordsblade 1901-1971)
Litteratur for: Tvis Station
![]() | Bogtitel Forfatter Udgivelsesår Sidetal Udgivelsessted Forlag ISBN | Midtjyske jernbaner Niels Jensen 1979 116 København J. Fr. Clausen 87-11-03904-3 |
