Varde Vest Station (Vav), en artikel om Varde Vest Station
Varde-Nørre Nebel Jernbane (VNJ) og Varde-Grindsted Jernbane (VGJ), havde allerede fra 1928 fælles overbanemester, men fra 1. april 1952 fik banerne også fælles direktør og Varde-Grindsted Jernbane (VGJ) flyttede deres hovedkvarter ind på Varde Vest station. De to baner blev aldrig helt fusioneret.
Fra 1. april 1953 blev der etablerede et værkstedsfællesskab mellem VNJ og VGJ. Da VGJ blev nedlagt 31. marts 1972, overtog VNJ i foråret 1973 deres remise- og værkstedsbygninger som lå nordøst for Varde Station.
Stamdata for Varde Vest Station
| Andre navne og stavemåder | Før 02.06.1957 Varde Vestbanegaard. |
| Byggeår | 1902 |
| Åbnet | 1903.03.14 |
| Driftstatus | I drift |
| Status | Eksisterer stadig |
| Arkitekt | Heinrich Wenck |
| Adresse | Svinget 11, 6800 Varde |
| Stednavneforkortelse | Vav |
| Højdeplacering over havet | 11,0 meter |
| GPS koordinater | 55.624437,8.476444 |
Oversigt over andre stationer fra Varde
| Foto | Stationens navn | Beskrivelse |
|---|---|---|
| Varde Nord Trinbræt (Vno) | ||
| Varde Kaserne Trinbræt (Vka) | Varde Kaserne Trinbræt som jernbanestop i VestjyllandVarde K... | |
| Varde Vest Station (Vav) | Varde Vest station var hovedkontoret for Varde-Nørre Nebel J... | |
| Varde Station (Va) | Varde station blev indviet 3. oktober 1874 samtidig med jern... |
Varde Vest Station servicerede følgende jernbaner
| Jernbanens navn | Operatør | Længde | Åbnet | Nedlagt |
|---|---|---|---|---|
| Nebelbanen, Varde-Nørre Nebel Jernbane | Arriva (Oprindelig: VNJ) | 37,6 | 1903.03.15 | I drift |
| Varde-Nørre Nebel-Tarm Jernbane | Arriva (Oprindelig: VNTJ) | 67,6 | 1903.03.15 | I drift |
BBR Data for Varde Vest StationBBR DATA fra Danmarks Adressers Web API (DAWA), som Styrelsen for Dataforsyning og Effektivisering (SDFE) har ansvaret for.BBR DATA hentet: 2022-10-30 12:09:06 | |
| BBR Højde over havet | 11,0 meter |
| BBR GPS koordinater | 55.62443627,8.47648621 |
| BBR Byggeår eller konverteringsår | 1902 |
| BBR Seneste ombygning | 1949 |
| BBR Bebygget areal i alt | 602 m2 |
| BBR Bebygget areal hovedbygningen | 301 m2 |
| BBR Samlet boligareal | 274 m2 |
| BBR Samlet erhvervsareal | 608 m2 |
| BBR Antal etager | 2 |
Banedanmarks Data for Varde Vest StationStations DATA fra Banedanmarks Open Data: http://geodata-banedanmark.opendata.arcgis.com/Stations DATA hentet: 2020-05-16 21:22:50 | |
| Afsnits navn | Varde Vest |
| Afsnits type | Station |
| Afsnits forkortelse | Vav |
| Afsnits GPS koordinater | 55.6243283,8.47569952 |
Billede af Varde Vest Station

Fotograf: Jacob Laursen - Dato: den 17. juni 2023 Download billede
Billeder af Varde Vest Station

Fotograf: Jacob Laursen - Dato: den 17. juni 2023 Download billede

Fotograf: Jacob Laursen - Dato: den 17. juni 2023 Download billede

Fotograf: Jacob Laursen - Dato: den 17. juni 2023 Download billede

Fotograf: Jacob Laursen - Dato: den 17. juni 2023 Download billede

Fotograf: Jacob Laursen - Dato: den 31. juli 2010 Download billede

Fotograf: Det Kgl. Bibliotek, Sylvest Jensen Luftfoto - Dato: 1956 - LINK til kilde.
Noter til: Billede af Varde Vest Station.
Titel: - 1956 -
Person: Vestbanen
Bygningsnavn: Varde Vest
Sted: Danmark, Jylland, Varde
Vejnavn: Husnummer: Lokalitet: Postnummer: 6800
By: Varde
Sogn: Matrikelnummer: Ophav: Sylvest Jensen Luftfoto
År: 1956
Note: Id: B02271_013.tif

Fotograf: Det Kgl. Bibliotek, Sylvest Jensen Luftfoto - Dato: 1956 - LINK til kilde.
Noter til: Billede af Varde Vest Stations remise.
Titel: - 1956 -
Person: Bygningsnavn: Sted: Danmark, Jylland, Varde
Vejnavn: Husnummer: Lokalitet: Postnummer: By: Sogn: Matrikelnummer: Ophav: Sylvest Jensen Luftfoto
År: 1956
Note: Id: B02271_018.tif

Fotograf: Jacob Laursen - Dato: den 17. juni 2023 Download billede

Fotograf: Jacob Laursen - Dato: den 17. juni 2023 Download billede

Fotograf: Jacob Laursen - Dato: den 17. juni 2023 Download billede

Fotograf: Jacob Laursen - Dato: den 17. juni 2023 Download billede

Fotograf: Jacob Laursen - Dato: den 17. juni 2023 Download billede

Fotograf: Jacob Laursen - Dato: den 17. juni 2023 Download billede

Fotograf: Jacob Laursen - Dato: den 17. juni 2023 Download billede

Fotograf: Jacob Laursen - Dato: den 17. juni 2023 Download billede

Fotograf: Jacob Laursen - Dato: den 17. juni 2023 Download billede

Fotograf: Jacob Laursen - Dato: den 17. juni 2023 Download billede

Fotograf: Jacob Laursen - Dato: den 17. juni 2023 Download billede

Fotograf: Jacob Laursen - Dato: den 17. juni 2023 Download billede

Fotograf: Jacob Laursen - Dato: den 17. juni 2023 Download billede

Fotograf: Jacob Laursen - Dato: den 17. juni 2023 Download billede

Fotograf: Jacob Laursen - Dato: den 31. juli 2010 Download billede
Tegninger af Varde Vest Station

Kilde: Danmarks Jernbanemuseum - Dato: 1902 (februar) - LINK til kilde.
Noter til: Tegning af Varde Vest Station.
Transportselskab/ operatør: Varde - Nørre Nebel Jernbane (VNJ)
Jernbanested: Varde Vest
Navneændringer: Før 02.06.1957 Varde Vestbanegaard.
På strækningen: Varde - Nørre Nebel
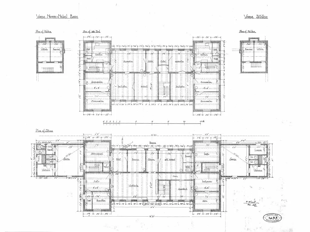
Beskrivelse: Stationsbygning.
Infrastrukturejer: Varde - Nørre Nebel Jernbaneselskab
Motivdato: 2/1902
Fotograf/ billedkunstner: Sign.: H. Wenck
Delsamling: Ulrik T. Jensens samling
Scannummer: VNJ-Varde-scan27580

Kilde: Danmarks Jernbanemuseum - Dato: 1902 (februar) - LINK til kilde.
Noter til: Tegning af Varde Vest Station.
Transportselskab/ operatør: Varde - Nørre Nebel Jernbane (VNJ)
Jernbanested: Varde Vest
Navneændringer: Før 02.06.1957 Varde Vestbanegaard.
På strækningen: Varde - Nørre Nebel
Beskrivelse: Stationsbygning.
Infrastrukturejer: Varde - Nørre Nebel Jernbaneselskab
Motivdato: 2/1902
Fotograf/ billedkunstner: Sign.: H. Wenck
Delsamling: Ulrik T. Jensens samling
Scannummer: VNJ-Varde-3-scan27584

Kilde: Danmarks Jernbanemuseum - Dato: 1902 (februar) - LINK til kilde.
Noter til: Tegning af Varde Vest Station.
Transportselskab/ operatør: Varde - Nørre Nebel Jernbane (VNJ)
Jernbanested: Varde Vest
Navneændringer: Før 02.06.1957 Varde Vestbanegaard.
På strækningen: Varde - Nørre Nebel
Beskrivelse: Stationsbygning. Sign.: H. Wenck.
Infrastrukturejer: Varde - Nørre Nebel Jernbaneselskab
Motivdato: 2/1902
Delsamling: Ulrik T. Jensens samling
Scannummer: VNJ-Varde-2-scan27581

Kilde: Danmarks Jernbanemuseum - Dato: 1902 (februar) - LINK til kilde.
Noter til: Tegning af Varde Vest Station.
Transportselskab/ operatør: Varde - Nørre Nebel Jernbane (VNJ)
Jernbanested: Varde Vest
Navneændringer: Før 02.06.1957 Varde Vestbanegaard.
På strækningen: Varde - Nørre Nebel
Beskrivelse: Stationsbygning. Sign.: H. Wenck.
Infrastrukturejer: Varde - Nørre Nebel Jernbaneselskab
Motivdato: 2/1902
Delsamling: Ulrik T. Jensens samling
Scannummer: VNJ-Varde-3-scan27583

Kilde: Danmarks Jernbanemuseum - Dato: 1902 (februar) - LINK til kilde.
Noter til: Tegning af Varde Vest Station.
Transportselskab/ operatør: Varde - Nørre Nebel Jernbane (VNJ)
Jernbanested: Varde Vest
Navneændringer: Før 02.06.1957 Varde Vestbanegaard.
På strækningen: Varde - Nørre Nebel
Beskrivelse: Stationsbygning. Sign.: H. Wenck.
Infrastrukturejer: Varde - Nørre Nebel Jernbaneselskab
Motivdato: 2/1902
Delsamling: Ulrik T. Jensens samling
Scannummer: VNJ-Varde-2-scan27582

Kilde: Danmarks Jernbanemuseum - Dato: 1902 (februar) - LINK til kilde.
Noter til: Tegning af Varde Vest Station.
Transportselskab/ operatør: Varde - Nørre Nebel Jernbane (VNJ)
Jernbanested: Varde Vest
Navneændringer: Før 02.06.1957 Varde Vestbanegaard.
På strækningen: Varde - Nørre Nebel
Beskrivelse: Stationsbygning. Sign.: H. Wenck.
Infrastrukturejer: Varde - Nørre Nebel Jernbaneselskab
Motivdato: 2/1902
Delsamling: Ulrik T. Jensens samling
Scannummer: VNJ-Varde-scan27579

Kilde: Danmarks Jernbanemuseum - Dato: 1901 (oktober) - LINK til kilde.
Noter til: Tegning af Varde Vest Stations remise.
Transportselskab/ operatør: Varde - Nørre Nebel Jernbane (VNJ)
Jernbanested: Varde Vest
Navneændringer: Før 02.06.1957 Varde Vestbanegaard.
På strækningen: Varde - Nørre Nebel
Beskrivelse: Lokomotivremise.
Infrastrukturejer: Varde - Nørre Nebel Jernbaneselskab
Motivdato: 10/1901
Fotograf/ billedkunstner: Sign.: H. Wenck
Delsamling: Ulrik T. Jensens samling
Scannummer: VNJ-Varde-remise-scan27612

Kilde: Danmarks Jernbanemuseum - Dato: 1901 (oktober) - LINK til kilde.
Noter til: Tegning af Varde Vest Stations remise.
Transportselskab/ operatør: Varde - Nørre Nebel Jernbane (VNJ)
Jernbanested: Varde Vest
Navneændringer: Før 02.06.1957 Varde Vestbanegaard.
På strækningen: Varde - Nørre Nebel
Beskrivelse: Lokomotivremise.
Infrastrukturejer: Varde - Nørre Nebel Jernbaneselskab
Motivdato: 10/1901
Fotograf/ billedkunstner: Sign.: H. Wenck
Delsamling: Ulrik T. Jensens samling
Scannummer: VNJ-Varde-remise-scan27611

Kilde: Danmarks Jernbanemuseum - Dato: 1901 (oktober) - LINK til kilde.
Noter til: Tegning af Varde Vest Stations remise.
Transportselskab/ operatør: Varde - Nørre Nebel Jernbane (VNJ)
Jernbanested: Varde Vest
Navneændringer: Før 02.06.1957 Varde Vestbanegaard.
På strækningen: Varde - Nørre Nebel
Beskrivelse: Lokomotivremise.
Infrastrukturejer: Varde - Nørre Nebel Jernbaneselskab
Motivdato: 10/1901
Fotograf/ billedkunstner: Sign.: H. Wenck
Delsamling: Ulrik T. Jensens samling
Scannummer: VNJ-Varde-remise-scan27602

Kilde: Danmarks Jernbanemuseum - Dato: 1901 (oktober) - LINK til kilde.
Noter til: Tegning af Varde Vest Stations Lokomotivremise. Sign.: H. Wenck.
Transportselskab/ operatør: Varde - Nørre Nebel Jernbane (VNJ)
Jernbanested: Varde Vest
Navneændringer: Før 02.06.1957 Varde Vestbanegaard.
På strækningen: Varde - Nørre Nebel
Beskrivelse: Lokomotivremise. Sign.: H. Wenck.
Infrastrukturejer: Varde - Nørre Nebel Jernbaneselskab
Motivdato: 10/1901
Delsamling: Ulrik T. Jensens samling
Scannummer: VNJ-Varde-remise-scan27601
Google Street View af Varde Vest Station
Kilde: © Street View, by Google Maps - Dato: den 19. januar 2022 - LINK til kilde.
Kort over Varde Vest Station

Kort over Varde Vest Station - Kilde: Indeholder data fra Styrelsen for Dataforsyning og Effektivisering, skærmkortet, WMS-tjeneste via datafordeler.dk (Ortofoto forår)

Kort over Varde Vest Station - Kilde: Indeholder data fra Styrelsen for Dataforsyning og Effektivisering, skærmkortet, WMS-tjeneste via datafordeler.dk (Ortofoto forår)

Kort over Varde Vest Station - Kilde: Indeholder data fra Styrelsen for Dataforsyning og Effektivisering, skærmkortet, WMS-tjeneste via datafordeler.dk (Topgrafisk kort 1980-2001)

Kort over Varde Vest Station - Kilde: Indeholder data fra Styrelsen for Dataforsyning og Effektivisering, skærmkortet, WMS-tjeneste via datafordeler.dk (Topografisk kort 1953-1976)

Kort over Varde Vest Station - Kilde: Indeholder data fra Styrelsen for Dataforsyning og Effektivisering, skærmkortet, WMS-tjeneste via datafordeler.dk (Lave Målebordsblade 1901-1971)
Litteratur for: Varde Vest Station
![]() | Bogtitel Forfatter Udgivelsesår Sidetal Udgivelsessted Forlag ISBN | Fra Vestbanen til Arriva – en lokalbane gennem 100 år (Dansk Jernbane-Klub: 54) Ole-Chr. Munk Plum 2003 236 Dansk Jernbane-Klub 9788787050463 |
![]() | Bogtitel Forfatter Udgivelsesår Sidetal Udgivelsessted Forlag ISBN | Vestbanen 1903-1978 (Dansk Jernbane-Klub: 41) Ole-Chr. M. Plum & Birger Wilcke 1978 167 Dansk Jernbane-Klub 87-87050-06-4 |

