Videbæk Station (Dæ), en artikel om Videbæk Station
Stamdata for Videbæk Station
| Byggeår | 1919 |
| Åbnet | 1920.11.15 |
| Nedlagt | 1955.10.02 |
| Status | Eksisterer stadig |
| Arkitekt | Heinrich Wenck |
| Adresse | Stationsvej 40, 6920 Videbæk |
| Stednavneforkortelse | Dæ |
| Højdeplacering over havet | 32,6 meter |
| GPS koordinater | 56.094871,8.638705 |
Videbæk Station servicerede følgende jernbaner
| Jernbanens navn | Operatør | Længde | Åbnet | Nedlagt |
|---|---|---|---|---|
| Skjern-Videbæk | DSB | 19,5 | 1920.11.15 | 1981.06.01 |
BBR Data for Videbæk StationBBR DATA fra Danmarks Adressers Web API (DAWA), som Styrelsen for Dataforsyning og Effektivisering (SDFE) har ansvaret for.BBR DATA hentet: 2020-05-21 23:25:36 | |
| BBR Højde over havet | 32,6 meter |
| BBR GPS koordinater | 56.0948904,8.63865488 |
| BBR Byggeår eller konverteringsår | 1919 |
| BBR Seneste ombygning | 1976 |
| BBR Bebygget areal i alt | 160 m2 |
| BBR Bebygget areal hovedbygningen | 160 m2 |
| BBR Samlet boligareal | 260 m2 |
| BBR Antal etager | 1 |
Billede af Videbæk Station

Fotograf: Det Kgl. Bibliotek, Dana Luftfoto/Odense Luftfoto - Dato: 1953 - LINK til kilde.
Noter til: Billede af Videbæk Station.
Titel: Videbæk Station
Person: Bygningsnavn: Videbæk Station
Sted: 6920 Videbæk
Vejnavn: Husnummer: Lokalitet: Postnummer: By: Sogn: Matrikelnummer: Ophav: Odense Luftfoto
År: 1953
Note: Persontrafikken nedlagt i 1955, og godsstation flyttet til ny
placering syd for hovedvej 15.
Id: OD01108_015.tif
Billeder af Videbæk Station

Fotograf: Jacob Laursen - Dato: den 13. juli 2023 Download billede

Fotograf: Jacob Laursen - Dato: den 13. juli 2023 Download billede

Fotograf: Jacob Laursen - Dato: den 13. juli 2023 Download billede

Fotograf: Det Kgl. Bibliotek, Sylvest Jensen Luftfoto - Dato: 1948 - LINK til kilde.
Noter til: Billede af Videbæk Station.
Titel: Videbæk station - 1948
Person: Madsen, O., stationsforst.
Bygningsnavn: Videbæk station
Sted: Danmark, Jylland, Videbæk
Vejnavn: Husnummer: Lokalitet: Postnummer: By: Sogn: Matrikelnummer: Ophav: Sylvest Jensen Luftfoto
År: 1948
Note: Id: L02898_34.tif
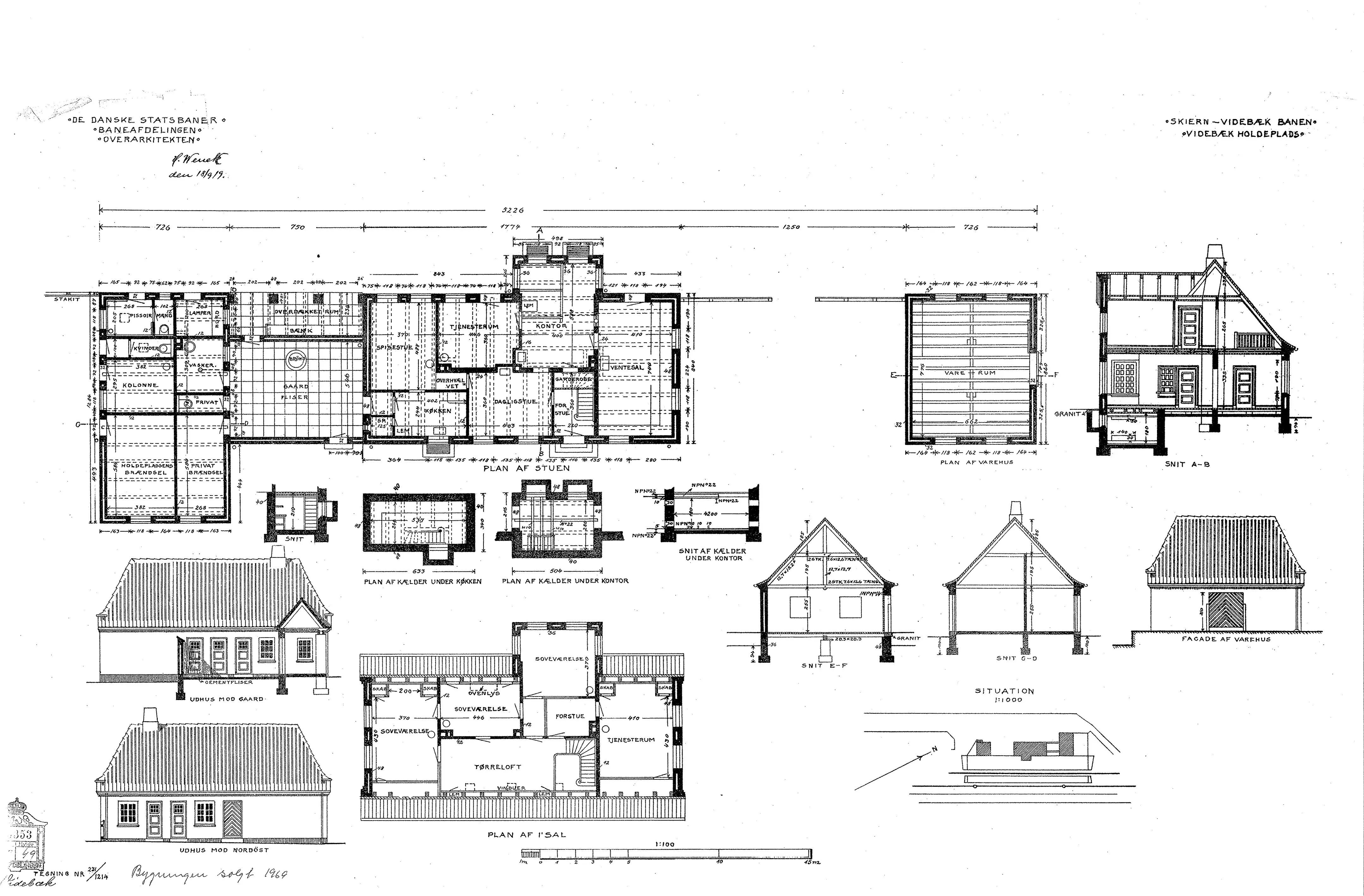
Tegninger af Videbæk Station

Kilde: Danmarks Jernbanemuseum - Dato: 18. sep. 1919 - LINK til kilde.
Noter til: Tegning af Videbæk Station.
Transportselskab/ operatør: De danske Statsbaner (DSB)
Jernbanested: Videbæk (1.)
På strækningen: Skjern - Videbæk
Beskrivelse: Stationsbygning.
Infrastrukturejer: De danske Statsbaner
Motivdato: 18. sep. 1919
Fotograf/ billedkunstner: Sign.: H. Wenck
Delsamling: Ulrik T. Jensens samling
Scannummer: DSB-Videbak-scan27403

Kilde: Danmarks Jernbanemuseum - Dato: 18. sep. 1919 - LINK til kilde.
Noter til: Tegning af Videbæk Station.
Transportselskab/ operatør: De danske Statsbaner (DSB)
Jernbanested: Videbæk (1.)
På strækningen: Skjern - Videbæk
Beskrivelse: Stationsbygning.
Infrastrukturejer: De danske Statsbaner
Motivdato: 18. sep. 1919
Fotograf/ billedkunstner: Sign.: H. Wenck
Delsamling: Ulrik T. Jensens samling
Scannummer: DSB-Videbak-scan27412

Kilde: Danmarks Jernbanemuseum - Dato: 18. sep. 1919 - LINK til kilde.
Noter til: Tegning af Videbæk Station.
Transportselskab/ operatør: De danske Statsbaner (DSB)
Jernbanested: Videbæk (1.)
På strækningen: Skjern - Videbæk
Beskrivelse: Stationsbygning.
Infrastrukturejer: De danske Statsbaner
Motivdato: 18. sep. 1919
Fotograf/ billedkunstner: Sign.: H. Wenck
Delsamling: Ulrik T. Jensens samling
Scannummer: DSB-Videbak-scan27416

Kilde: Danmarks Jernbanemuseum - Dato: 13. jul. 1920 - LINK til kilde.
Noter til: Tegning af Videbæk Stations remise.
Transportselskab/ operatør: De danske Statsbaner (DSB)
Jernbanested: Videbæk (1.)
På strækningen: Skjern - Videbæk
Beskrivelse: Lokomotivremise.
Infrastrukturejer: De danske Statsbaner
Motivdato: 13. jul. 1920
Fotograf/ billedkunstner: Sign.: H. Wenck
Delsamling: Ulrik T. Jensens samling
Scannummer: DSB-Videbak-remise-scan27404
Google Street View af Videbæk Station
Kilde: © Street View, by Google Maps - Dato: den 24. januar 2022 - LINK til kilde.
Kort over Videbæk Station

Kort over Videbæk Station - Kilde: Indeholder data fra Styrelsen for Dataforsyning og Effektivisering, skærmkortet, WMS-tjeneste via datafordeler.dk (Ortofoto forår)

Kort over Videbæk Station - Kilde: Indeholder data fra Styrelsen for Dataforsyning og Effektivisering, skærmkortet, WMS-tjeneste via datafordeler.dk (Ortofoto forår)

Kort over Videbæk Station - Kilde: Indeholder data fra Styrelsen for Dataforsyning og Effektivisering, skærmkortet, WMS-tjeneste via datafordeler.dk (Topgrafisk kort 1980-2001)

Kort over Videbæk Station - Kilde: Indeholder data fra Styrelsen for Dataforsyning og Effektivisering, skærmkortet, WMS-tjeneste via datafordeler.dk (Topografisk kort 1953-1976)

Kort over Videbæk Station - Kilde: Indeholder data fra Styrelsen for Dataforsyning og Effektivisering, skærmkortet, WMS-tjeneste via datafordeler.dk (Lave Målebordsblade 1901-1971)
Litteratur for: Videbæk Station
![]() | Bogtitel Forfatter Udgivelsesår Sidetal Udgivelsessted Forlag ISBN | Vestjyske jernbaner Niels Jensen 1977 110 København J. Fr. Clausen 87-11-03821-7 |
