Femhøj Billetsalgssted (Fm), en artikel om Femhøj Billetsalgssted
Femhøj Billetsalgssteds Historie
Femhøj Billetsalgssted blev anlagt i et ret ensomt område, omkring en kilometer fra den betydelige landsby Gerlev. Stationens placering blev i høj grad bestemt af Femhøj Centralskole, som lå i nærheden, men skoler var sjældent en betydelig indtægtskilde for jernbanen. Gerlev-Dråby Kommune investerede betydelige summer i stationsområdet, men resultatet var ikke i overensstemmelse med de forventede fordele.Infrastruktur og Stationsbygning
Den oprindelige plan var, at Femhøj Billetsalgssted skulle have en stationsbygning svarende til dem i Ortved og Oldgård. Dog insisterede kommunen på en større bygning, der matchede Krogstrups. Dette resulterede i en stationsbygning af betydelig størrelse, selvom Femhøj officielt blev kategoriseret som et billetsalgssted. For udenforstående var det dog ikke tydeligt, at Femhøj ikke havde fuld stationsstatus.Passagertrafik og Lokalsamfundets Betydning
Selvom Femhøj var tættere på Gerlev end på andre landsbyer, var der kun begrænset lokal passagertrafik. Den lille landsby Landerslev, der lå ca. to kilometer vest for banen, bidrog ikke væsentligt til stationens trafik. Femhøj Centralskole spillede sandsynligvis en rolle i passagertallene, men uden at skabe en stabil og lønsom trafikstrøm.Godstrafik og Industriens Fravær
For at stimulere godstransporten blev der i 1929 opstillet en galgekran ved stationen. Denne investering viste sig dog at være næsten uden effekt, da der ikke fandtes nogen industri i området, hverken i Gerlev eller i de omkringliggende landsbyer. Gerlev bestod primært af en kirke og en skole, hvilket ikke genererede væsentlige godstransporter.Gerlev og Dets Betydning for Området
Gerlev er en mindre by i Nordsjælland, beliggende på Hornsherred, ca. fem kilometer syd for Jægerspris og seks kilometer sydvest for Frederikssund. Byen har i dag omkring 1.036 indbyggere (2024) og ligger i Frederikssund Kommune i Region Hovedstaden. Gerlev er en del af Gerlev Sogn, hvor Gerlev Kirke er en central del af lokalsamfundet.Femhøj Billetsalgssteds Historiske Betydning
Femhøj Billetsalgssted er et eksempel på de mange mindre jernbanestationer og billetsalgssteder, der blev oprettet for at betjene lokalsamfundene, men som aldrig fik den ventede betydning. Trods investeringer i infrastruktur og faciliteter var stationen aldrig en central transportknudepunkt, hvilket viser de udfordringer, der fulgte med jernbanens ekspansion i landdistrikterne.Stamdata for Femhøj Billetsalgssted
| Byggeår | 1928 |
| Åbnet | 1928.11.17 |
| Nedlagt | 1936.05.15 |
| Status | Eksisterer stadig |
| Arkitekt | K.T. Seest |
| Adresse | Femhøj Stationsvej 21, 3630 Jægerspris |
| Stednavneforkortelse | Fm |
| Højdeplacering over havet | 16,1 meter |
| GPS koordinater | 55.820494,12.001843 |
Femhøj Billetsalgssted servicerede følgende jernbaner
| Jernbanens navn | Operatør | Længde | Åbnet | Nedlagt |
|---|---|---|---|---|
| Midtbanen på Sjælland | DSB | 83,8 | Næstved - Ringsted den 1. juni 1924, Ringsted - Hvalsø den 15. august 1925 og Hvalsø - Frederikssund den 17. november 1928 | 1936.05.14 |
Billede af Femhøj Billetsalgssted

Fotograf: Jacob Laursen - Dato: den 18. juli 2023 Download billede
Billeder af Femhøj Billetsalgssted

Fotograf: Jacob Laursen - Dato: den 18. juli 2023 Download billede

Fotograf: Jacob Laursen - Dato: den 16. oktober 2009 Download billede
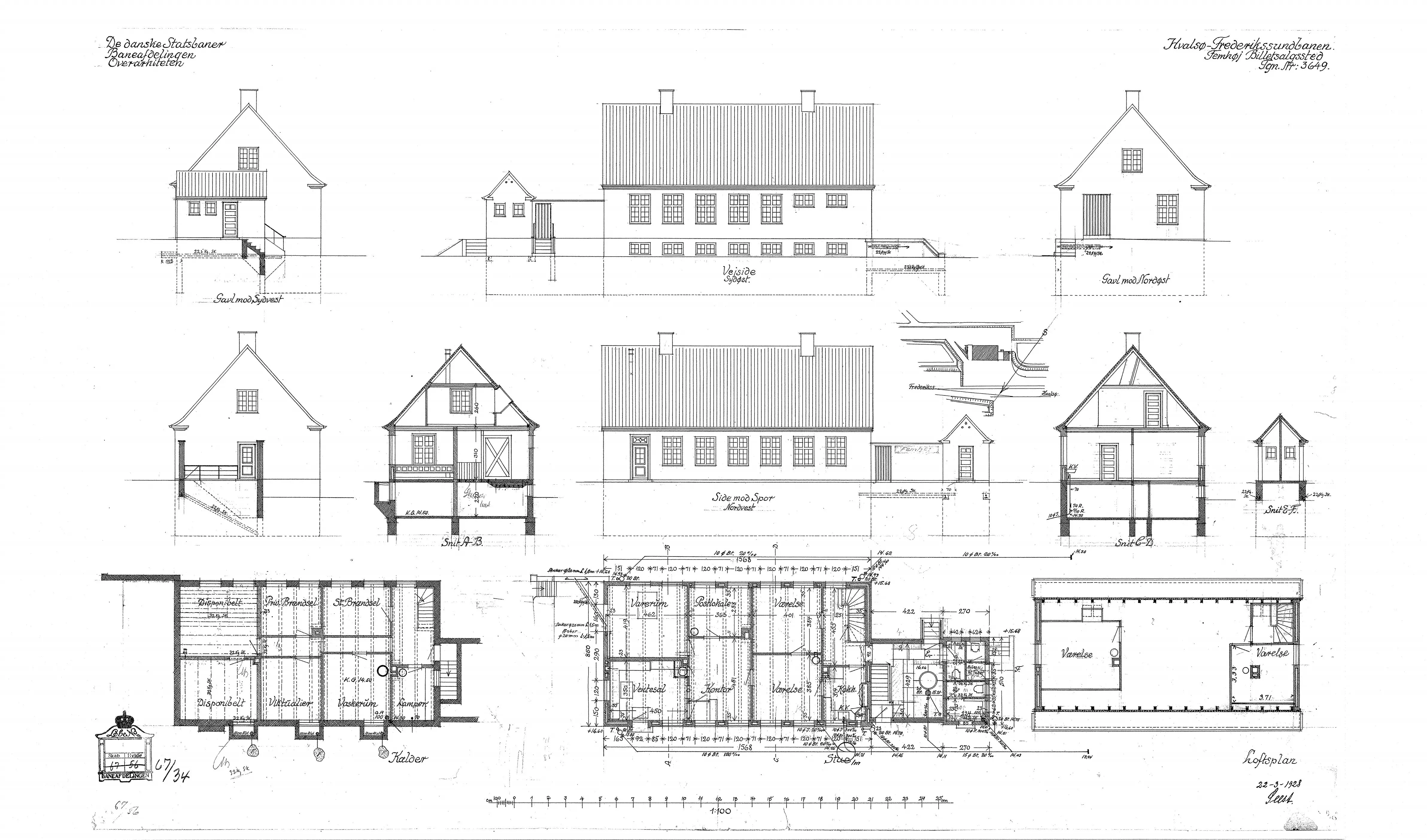
Tegninger af Femhøj Billetsalgssted

Kilde: Danmarks Jernbanemuseum - Dato: 22. mar. 1928 - LINK til kilde.
Noter til: Tegning af Femhøj Billetsalgssted.
Transportselskab/ operatør: De danske Statsbaner (DSB)
Jernbanested: Femhøj
På strækningen: Hvalsø - Frederikssund
Beskrivelse: Stationsbygning.
Infrastrukturejer: De danske Statsbaner
Motivdato: 22. mar. 1928
Fotograf/ billedkunstner: Sign.: Seest
Delsamling: Ulrik T. Jensens samling
Scannummer: DSB-Rg-Fs-Femhoj-scan27878

Kilde: Danmarks Jernbanemuseum - Dato: 22. mar. 1928 - LINK til kilde.
Noter til: Tegning af Femhøj Billetsalgssted.
Transportselskab/ operatør: De danske Statsbaner (DSB)
Jernbanested: Femhøj
På strækningen: Hvalsø - Frederikssund
Beskrivelse: Stationsbygning.
Infrastrukturejer: De danske Statsbaner
Motivdato: 22. mar. 1928
Fotograf/ billedkunstner: Sign.: Seest
Delsamling: Ulrik T. Jensens samling
Scannummer: DSB-Rg-Fs-Femhoj-scan27881
Google Street View af Femhøj Billetsalgssted
Kilde: © Street View, by Google Maps - Dato: den 26. december 2021 - LINK til kilde.
Kort over Femhøj Billetsalgssted

Kort over Femhøj Billetsalgssted - Kilde: Indeholder data fra Styrelsen for Dataforsyning og Effektivisering, skærmkortet, WMS-tjeneste via datafordeler.dk (Ortofoto forår)

Kort over Femhøj Billetsalgssted - Kilde: Indeholder data fra Styrelsen for Dataforsyning og Effektivisering, skærmkortet, WMS-tjeneste via datafordeler.dk (Ortofoto forår)

Kort over Femhøj Billetsalgssted - Kilde: Indeholder data fra Styrelsen for Dataforsyning og Effektivisering, skærmkortet, WMS-tjeneste via datafordeler.dk (Topgrafisk kort 1980-2001)

Kort over Femhøj Billetsalgssted - Kilde: Indeholder data fra Styrelsen for Dataforsyning og Effektivisering, skærmkortet, WMS-tjeneste via datafordeler.dk (Topografisk kort 1953-1976)

Kort over Femhøj Billetsalgssted - Kilde: Indeholder data fra Styrelsen for Dataforsyning og Effektivisering, skærmkortet, WMS-tjeneste via datafordeler.dk (Lave Målebordsblade 1901-1971)
Litteratur for: Femhøj Billetsalgssted
>> Husk at støtte de hårdarbejdende forfattere, som bruger meget tid på at sikre vores danske jernbanehistorie. <<
![]() | Bogtitel Forfatter Udgivelsesår Sidetal Udgivelsessted Forlag ISBN | Midtbanen Kurt Kristensen 2008 40 87-91109-16-7 |
![]() | Bogtitel Forfatter Udgivelsesår Sidetal Udgivelsessted Forlag ISBN | MIDTBANEN - (Karrebæksminde)-Næstved-Ringsted-Hvalsø-Frederikssund-(Hillerød) P. Thomassen 1977 143 |
![]() | Bogtitel Forfatter Udgivelsesår Sidetal Udgivelsessted Forlag ISBN | Vestsjællandske jernbaner Niels Jensen 1978 103 København J. Fr. Clausen 87-11-03879-9 |


