Ortved Billetsalgssted (Ort), en artikel om Ortved Billetsalgssted
Ortved Billetsalgssteds Historie
Ortved Billetsalgssted blev anlagt trods protester fra lokalbefolkningen, som mente, at stationens placering var uhensigtsmæssig. I stedet for at placere stationen ved landevejen Ringsted-Roskilde, hvor den ville have haft en langt bedre tilgængelighed, blev den opført inde på en mark, hvilket gjorde den svært tilgængelig for beboerne i Ortved. For at komme til stationen fra landsbyen var det nødvendigt at gå en omvej på næsten to kilometer, hvilket gjorde stationen mindre attraktiv for lokale rejsende. Samtidig var der rutebiler, som kørte direkte igennem Ortved, hvilket yderligere reducerede behovet for togtransport.Stationsbygningen og Infrastruktur
Stationsbygningen var af samme type som dem i Rislev og Englerup, hvilket var en standardiseret bygningsstil på mindre billetsalgssteder. Der var bompasning, men kun for vejen til læssesporet. For anlægget af dette spor bidrog Vigersted Kommune med 25.000 kr. Stationen blev beboet af en banevagt, og det var vagtens hustru, der stod for billetsalget og postekspeditionen. Dette var en del af DSB's forsøg med "konestationer", hvor kvinder blev sat til at bestyre mindre stationsbygninger. Erfaringerne fra Midtbanen viste, at denne model fungerede særdeles godt, og Ortved blev et forbillede inden for etaten.En Station i Perfekt Stand
Fru Jensen, som stod for billetsalgsstedet i Ortved, holdt stationen i en exceptionel god stand, både udvendigt og indvendigt. Hendes arbejde blev så anerkendt, at Ortved i 1931 blev udvalgt som besøgsmål for en engelsk jernbanemand udsendt af London and North Eastern Railway (L.N.E.R.). Han besøgte Midtbanen sammen med en DSB-trafikinspektør og gjorde stop i Ortved for at besigtige stationens tilstand. Han blev synligt imponeret og komplimenterede Fru Jensen for hendes arbejde. Han fandt det bemærkelsesværdigt, at DSB's udgifter til billetsalg, godsekspedition, bompasning og rengøring kun udgjorde nogle få hundrede kroner om året samt en fribolig til stationsbestyreren.Nedlæggelsen af Ortved Billetsalgssted
Den 14. maj 1936 blev banen nedlagt, hvilket også betød lukningen af Ortved Billetsalgssted. Da stationen havde haft et begrænset antal rejsende, var der ikke mange protester over dens nedlæggelse. Derimod var postekspeditionens placering af større betydning for lokalbefolkningen. Indtil 1925 havde Ortved haft et brevsamlingssted i landsbyen, men det blev flyttet til stationen. Efter stationens lukning blev brevsamlingsstedet igen flyttet tilbage til landsbyen, hvilket var en fordel for beboerne, da posttjenesterne var langt vigtigere end den reelle togforbindelse.Jernbanens Rolle i Ortved
Ortved Billetsalgssted blev aldrig den succes, som nogle havde håbet på. Den uhensigtsmæssige placering gjorde det svært for lokalbefolkningen at udnytte stationen fuldt ud, og konkurrencen fra rutebilerne gjorde togtransport mindre attraktiv.Stamdata for Ortved Billetsalgssted
| Byggeår | 1925 |
| Åbnet | 1925.08.15 |
| Nedlagt | 1936.05.15 |
| Status | Eksisterer stadig |
| Arkitekt | K.T. Seest |
| Adresse | Ortved Stationsvej 35, 4100 Ringsted |
| Stednavneforkortelse | Ort |
| Højdeplacering over havet | 44,0 meter |
| GPS koordinater | 55.483083,11.857004 |
Ortved Billetsalgssted servicerede følgende jernbaner
| Jernbanens navn | Operatør | Længde | Åbnet | Nedlagt |
|---|---|---|---|---|
| Midtbanen på Sjælland | DSB | 83,8 | Næstved - Ringsted den 1. juni 1924, Ringsted - Hvalsø den 15. august 1925 og Hvalsø - Frederikssund den 17. november 1928 | 1936.05.14 |
BBR Data for Ortved BilletsalgsstedBBR DATA fra Danmarks Adressers Web API (DAWA), som Styrelsen for Dataforsyning og Effektivisering (SDFE) har ansvaret for.BBR DATA hentet: 2020-05-21 23:24:50 | |
| BBR Højde over havet | 44,0 meter |
| BBR GPS koordinater | 55.48306815,11.85683648 |
| BBR Byggeår eller konverteringsår | 1910 |
| BBR Seneste ombygning | 1975 |
| BBR Bebygget areal i alt | 210 m2 |
| BBR Bebygget areal hovedbygningen | 210 m2 |
| BBR Samlet boligareal | 305 m2 |
| BBR Indbygget garage areal | 45 m2 |
| BBR Antal etager | 1 |
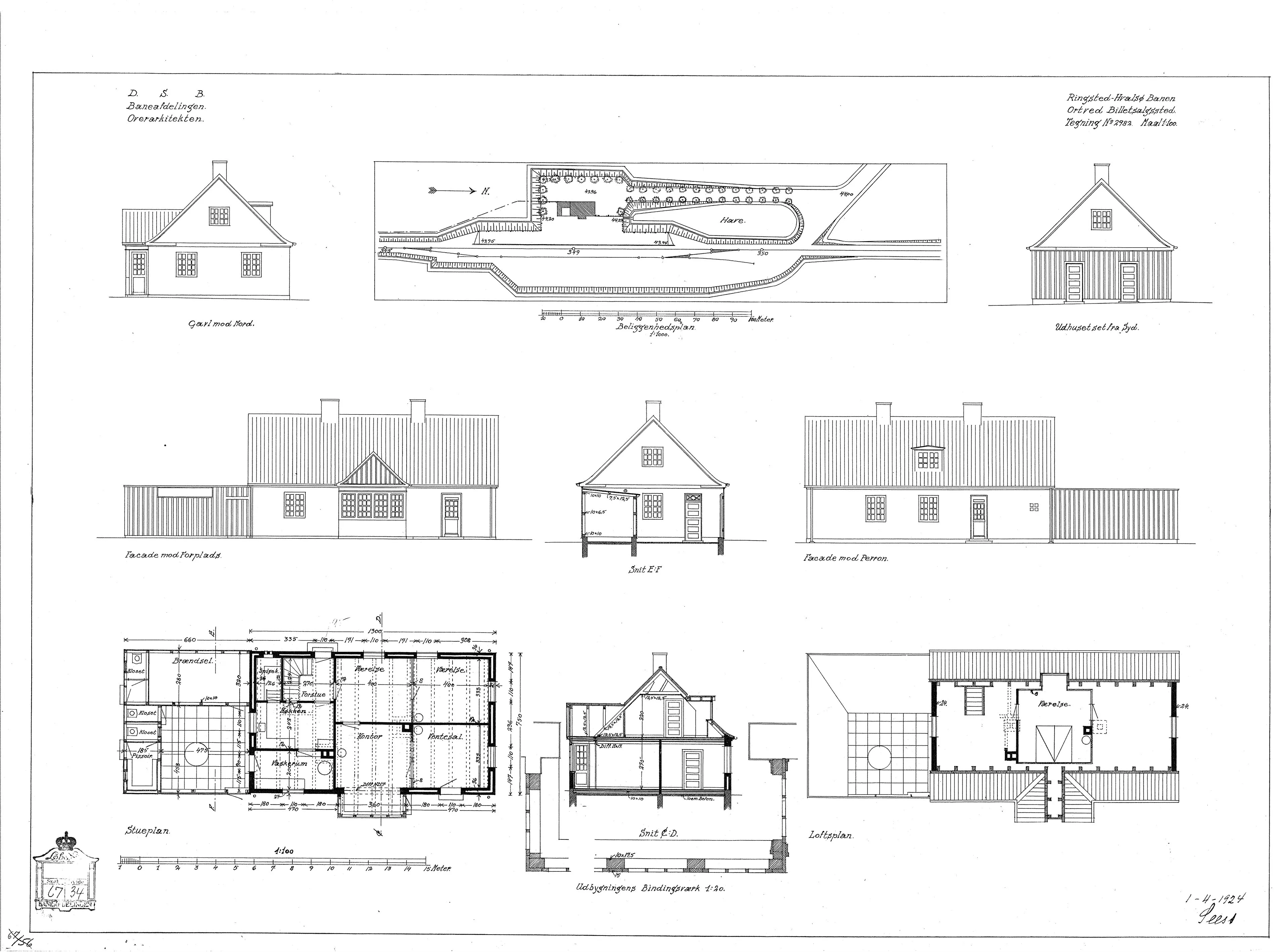
Tegninger af Ortved Billetsalgssted

Kilde: Danmarks Jernbanemuseum - Dato: 1. apr. 1924 - LINK til kilde.
Noter til: Tegning af Ortved Billetsalgssted.
Transportselskab/ operatør: De danske Statsbaner (DSB)
Jernbanested: Ortved
På strækningen: Ringsted - Hvalsø
Beskrivelse: Stationsbygning.
Infrastrukturejer: De danske Statsbaner
Motivdato: 1. apr. 1924
Fotograf/ billedkunstner: Sign.: Seest
Delsamling: Ulrik T. Jensens samling
Scannummer: DSB-Rg-Fs-Ortved-scan27872
Kort over Ortved Billetsalgssted

Kort over Ortved Billetsalgssted - Kilde: Indeholder data fra Styrelsen for Dataforsyning og Effektivisering, skærmkortet, WMS-tjeneste via datafordeler.dk (Ortofoto forår)

Kort over Ortved Billetsalgssted - Kilde: Indeholder data fra Styrelsen for Dataforsyning og Effektivisering, skærmkortet, WMS-tjeneste via datafordeler.dk (Ortofoto forår)

Kort over Ortved Billetsalgssted - Kilde: Indeholder data fra Styrelsen for Dataforsyning og Effektivisering, skærmkortet, WMS-tjeneste via datafordeler.dk (Topgrafisk kort 1980-2001)

Kort over Ortved Billetsalgssted - Kilde: Indeholder data fra Styrelsen for Dataforsyning og Effektivisering, skærmkortet, WMS-tjeneste via datafordeler.dk (Topografisk kort 1953-1976)

Kort over Ortved Billetsalgssted - Kilde: Indeholder data fra Styrelsen for Dataforsyning og Effektivisering, skærmkortet, WMS-tjeneste via datafordeler.dk (Lave Målebordsblade 1901-1971)
Litteratur for: Ortved Billetsalgssted
>> Husk at støtte de hårdarbejdende forfattere, som bruger meget tid på at sikre vores danske jernbanehistorie. <<
![]() | Bogtitel Forfatter Udgivelsesår Sidetal Udgivelsessted Forlag ISBN | Midtbanen Kurt Kristensen 2008 40 87-91109-16-7 |
![]() | Bogtitel Forfatter Udgivelsesår Sidetal Udgivelsessted Forlag ISBN | MIDTBANEN - (Karrebæksminde)-Næstved-Ringsted-Hvalsø-Frederikssund-(Hillerød) P. Thomassen 1977 143 |
![]() | Bogtitel Forfatter Udgivelsesår Sidetal Udgivelsessted Forlag ISBN | Vestsjællandske jernbaner Niels Jensen 1978 103 København J. Fr. Clausen 87-11-03879-9 |


