Herlufmagle Station (Rm), en artikel om Herlufmagle Station
Herlufmagle Station – En Historisk Milepæl
Herlufmagle Station, opført i 1924 under ledelse af arkitekten K.T. Seest, var et symbol på den spirende jernbanetrafik og den industrielle udvikling, der prægede det danske landskab i det 20. århundrede.Herlufmagles Placering og Forventninger
Herlufmagle Station lå ca. 600 meter vest for landsbyen Herlufmagle, og man havde forventet at Herlufmagle Station blev et vigtigt knudepunkt for både godstransport og personbefordring. Til trods for den lidet tilfredsstillende placering, som krævede en broovergang og en kort gåtur for at nå selve stationen, blev Herlufmagle Station et centralt element i lokalsamfundet.Industri, Handel og Begrænset Passagertrafik
Herlufmagle var med sine ca. 250 indbyggere i 1924, flere industri- og handelsforetagender, herunder et dampsavskæreri, et bryggeri, og et andelsmejeri. Selvom stationen tilbød godstransport af en høj standard, var passagertrafikken begrænset, da beboerne ofte foretrak de mere bekvemme rutebiler og dagsvogne, der dækkede behovet for transport til og fra landsbyen.Navnestrid og Traditioner
Navnet Herlufmagle gav i årevis anledning til forvirring og trakasserier mellem stednavneudvalget og lokalsamfundet. Forsøg på at ændre navnet til Hellevmagle og Hellevlille blev mødt med modstand fra beboerne, der ønskede at bevare deres traditionsrige navn.Stationsbygningen og Personalets Boliger
Den imponerende stationsbygning var designet af K.T. Seest og tjente som et symbol på jernbanens indflydelse på lokalsamfundene. Boligen til stationsforstanderen, beliggende på første sal, var beskedent indrettet med fire værelser og et pigeværelse. I 1926 blev en portørbolig tilføjet for at imødekomme behovet for boliger til personalet.Nedlæggelsen af Herlufmagle Station
I midten af 1950'erne begyndte DSB at overveje nedlæggelse af en række mellemstationer, herunder Herlufmagle Station, som blev nedlagt den 22. maj 1962. Denne beslutning afspejlede en æra med omfattende rationaliseringer og ændringer i jernbanens struktur og drift. I november 2013 blev Herlufmagle Station nedrevet, hvilket markerede afslutningen på et kapitel i dansk jernbanehistorie.Stamdata for Herlufmagle Station
| Andre navne og stavemåder | Før 15.05.1934 Hellevmagle, før 15.05.1933 Herlufmagle. |
| Byggeår | 1924 |
| Åbnet | 1924.06.01 |
| Nedlagt | 1966.05.22 |
| Nedrevet | 2013 November |
| Arkitekt | K.T. Seest |
| Stednavneforkortelse | Rm |
| Højdeplacering over havet | 29,3 meter |
| GPS koordinater | 55.315631,11.744404 |
Herlufmagle Station servicerede følgende jernbaner
| Jernbanens navn | Operatør | Længde | Åbnet | Nedlagt |
|---|---|---|---|---|
| Midtbanen på Sjælland | DSB | 83,8 | Næstved - Ringsted den 1. juni 1924, Ringsted - Hvalsø den 15. august 1925 og Hvalsø - Frederikssund den 17. november 1928 | 1936.05.14 |
| Ringsted-Næstved Jernbane | DSB | 26,8 | 1924.06.01 | I drift |
Billede af Herlufmagle Station

Fotograf: Det Kgl. Bibliotek, Sylvest Jensen Luftfoto - Dato: 1949 - LINK til kilde.
Noter til: Billede af Herlufmagle Station.
Titel:- 1949 - Herlufmagle Station
Bygningsnavn:Herlufmagle Station
Sted:Danmark, Sjælland, Herlufmagle
Vejnavn:Hedevej
Husnummer:6
Lokalitet:Herlufmagle By
Postnummer:4160
By:Herlufmagle
Sogn:Herlufmagle Sogn
Matrikelnummer:91
Ophav:Sylvest Jensen Luftfoto
År:1949
Id:L04731_008.tif
Billeder af Herlufmagle Station

Fotograf: Jacob Laursen - Dato: den 7. april 2009 Download billede
Tegninger af Herlufmagle Station

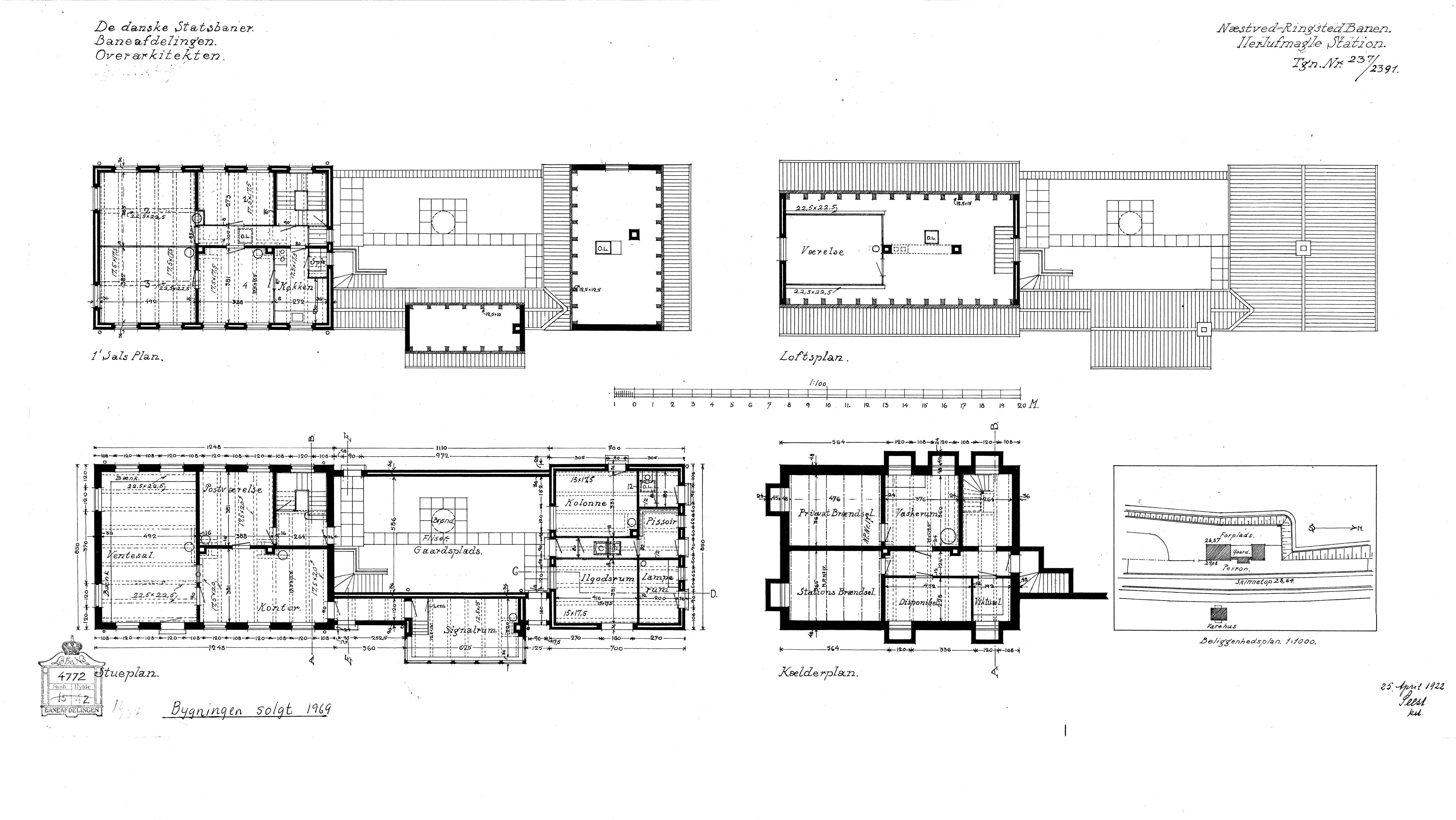
Kilde: Danmarks Jernbanemuseum - Dato: 25. nov. 1922 - LINK til kilde.
Noter til: Tegning af Herlufmagle Station.
Transportselskab/ operatør: De danske Statsbaner (DSB)
Jernbanested: Herlufmagle
Navneændringer: Før 15.05.1934 Hellevmagle, før 15.05.1933 Herlufmagle.
På strækningen: Næstved - Ringsted
Beskrivelse: Stationsbygning.
Infrastrukturejer: De danske Statsbaner
Motivdato: 25. nov. 1922
Fotograf/ billedkunstner: Sign.: Seest (kst.)
Delsamling: Ulrik T. Jensens samling
Scannummer: DSB-Rg-Na-Herlufmagle-plan-scan480

Kilde: Danmarks Jernbanemuseum - Dato: 25. apr. 1922 - LINK til kilde.
Noter til: Tegning af Herlufmagle Stations varehus.
Transportselskab/ operatør: De danske Statsbaner (DSB)
Jernbanested: Herlufmagle
Navneændringer: Før 15.05.1934 Hellevmagle, før 15.05.1933 Herlufmagle.
På strækningen: Næstved - Ringsted
Beskrivelse: Varehus.
Infrastrukturejer: De danske Statsbaner
Motivdato: 25. apr. 1922
Fotograf/ billedkunstner: Sign.: Seest (kst.)
Delsamling: Ulrik T. Jensens samling
Scannummer: DSB-Rg-Na-Herlufmagle-varehus-scan479

Kilde: Danmarks Jernbanemuseum - Dato: 25. apr. 1922 - LINK til kilde.
Noter til: Tegning af Herlufmagle Station.
Transportselskab/ operatør: De danske Statsbaner (DSB)
Jernbanested: Herlufmagle
Navneændringer: Før 15.05.1934 Hellevmagle, før 15.05.1933 Herlufmagle.
På strækningen: Næstved - Ringsted
Beskrivelse: Stationsbygning.
Infrastrukturejer: De danske Statsbaner
Motivdato: 25. apr. 1922
Fotograf/ billedkunstner: Sign.: Seest (kst)
Delsamling: Ulrik T. Jensens samling
Scannummer: DSB-Herlufmagle-scan26850
Kort over Herlufmagle Station

Kort over Herlufmagle Station - Kilde: Indeholder data fra Styrelsen for Dataforsyning og Effektivisering, skærmkortet, WMS-tjeneste via datafordeler.dk (Ortofoto forår)

Kort over Herlufmagle Station - Kilde: Indeholder data fra Styrelsen for Dataforsyning og Effektivisering, skærmkortet, WMS-tjeneste via datafordeler.dk (Ortofoto forår)

Kort over Herlufmagle Station - Kilde: Indeholder data fra Styrelsen for Dataforsyning og Effektivisering, skærmkortet, WMS-tjeneste via datafordeler.dk (Topgrafisk kort 1980-2001)

Kort over Herlufmagle Station - Kilde: Indeholder data fra Styrelsen for Dataforsyning og Effektivisering, skærmkortet, WMS-tjeneste via datafordeler.dk (Topografisk kort 1953-1976)

Kort over Herlufmagle Station - Kilde: Indeholder data fra Styrelsen for Dataforsyning og Effektivisering, skærmkortet, WMS-tjeneste via datafordeler.dk (Lave Målebordsblade 1901-1971)
Litteratur for: Herlufmagle Station
![]() | Bogtitel Forfatter Udgivelsesår Sidetal Udgivelsessted Forlag ISBN | MIDTBANEN - (Karrebæksminde)-Næstved-Ringsted-Hvalsø-Frederikssund-(Hillerød) P. Thomassen 1977 143 |
![]() | Bogtitel Forfatter Udgivelsesår Sidetal Udgivelsessted Forlag ISBN | Vestsjællandske jernbaner Niels Jensen 1978 103 København J. Fr. Clausen 87-11-03879-9 |

