Løgumkloster Statsbanegård (Øu), en artikel om Løgumkloster Statsbanegård
Løgumkloster Statsbanegård blev ombygget fra endestation til krydsningsstation i1927 da man nedlagden den gamle kringlede amtsbane fra Aabenraa-Løgumkloster og lavede en mere ret bane fra Rødekro-Bredebro.
Stamdata for Løgumkloster Statsbanegård
| Andre navne og stavemåder | Før 17.06.1920 Lugumkloster. |
| Byggeår | 1888 |
| Åbnet | 1888.09.21 |
| Nedlagt | 1936.05.15 |
| Status | Eksisterer stadig |
| Adresse | Stationsvej 16A, 6240 Løgumkloster |
| Stednavneforkortelse | Øu |
| Højdeplacering over havet | 13,5 meter |
| GPS koordinater | 55.053399,8.949513 |
Oversigt over andre stationer fra Løgumkloster
| Foto | Stationens navn | Beskrivelse |
|---|---|---|
| Løgumkloster Amtsbanegård | Løgumkloster Amtsbanegård som lokal jernbaneknudepunktLøgumk... | |
| Løgumkloster Holmplads Trinbræt | Løgumkloster Holmplads Trinbræt – Central station midt i Løg... | |
| Løgumkloster Statsbanegård (Øu) | Løgumkloster var endestation for statsbanestrækningen fra Br... |
Løgumkloster Statsbanegård servicerede følgende jernbaner
| Jernbanens navn | Operatør | Længde | Åbnet | Nedlagt |
|---|---|---|---|---|
| Bredebro-Løgumkloster (Klosterbanen) | DSB | 9,2 | 1888.09.21 | 1936.05.15 |
| Rødekro-Bredebro | DSB | 36,5 | 1936.05.15 |
BBR Data for Løgumkloster StatsbanegårdBBR DATA fra Danmarks Adressers Web API (DAWA), som Styrelsen for Dataforsyning og Effektivisering (SDFE) har ansvaret for.BBR DATA hentet: 2020-05-25 18:32:48 | |
| BBR Højde over havet | 13,5 meter |
| BBR GPS koordinater | 55.0534007,8.94926706 |
| BBR Byggeår eller konverteringsår | 1890 |
| BBR Bebygget areal i alt | 364 m2 |
| BBR Bebygget areal hovedbygningen | 364 m2 |
| BBR Samlet boligareal | 301 m2 |
| BBR Antal etager | 1 |
Billede af Løgumkloster Statsbanegård

Fotograf: Jacob Laursen - Dato: den 8. september 2019 Download billede
Billeder af Løgumkloster Statsbanegård

Fotograf: Det Kgl. Bibliotek, Sylvest Jensen Luftfoto - Dato: 1970-1986 - LINK til kilde.
Noter til: Billede af Løgumkloster Statsbanegård.
Titel: Løgumkloster Højskole
Person: Bygningsnavn: Løgumkloster Højskole
Sted: Danmark, Jylland, Løgomkloster
Vejnavn: Husnummer: Lokalitet: Postnummer: By: Sogn: Matrikelnummer: Ophav: Sylvest Jensen Luftfoto
År: 1970-1986
Note: Id: F00233_004.tif

Fotograf: Det Kgl. Bibliotek, Aalborg Luftfoto - Dato: 1948-1952 - LINK til kilde.
Noter til: Billede af Løgumkloster Statsbanegård.
Titel: - 1948-1952 -
Person: Bygningsnavn: Løgumkloster statsbanestation
Sted: Danmark, Jylland, Løgumkloster
Vejnavn: Husnummer: Lokalitet: Postnummer: By: Sogn: Matrikelnummer: Ophav: Aalborg Luftfoto
År: 1948-1952
Note: Id: AAL_BL51-A1_036_017.tif

Fotograf: Det Kgl. Bibliotek, Sylvest Jensen Luftfoto - Dato: 1948 - LINK til kilde.
Noter til: Billede af Løgumkloster Statsbanegård.
Titel: - 1948 -
Person: Bygningsnavn: Sted: Danmark, Jylland, Løgumkloster
Vejnavn: Husnummer: Lokalitet: Postnummer: By: Sogn: Matrikelnummer: Ophav: Sylvest Jensen Luftfoto
År: 1948
Note: Id: L03009_007.tif

Fotograf: Jacob Laursen - Dato: den 25. april 2020 Download billede

Fotograf: Jacob Laursen - Dato: den 25. april 2020 Download billede
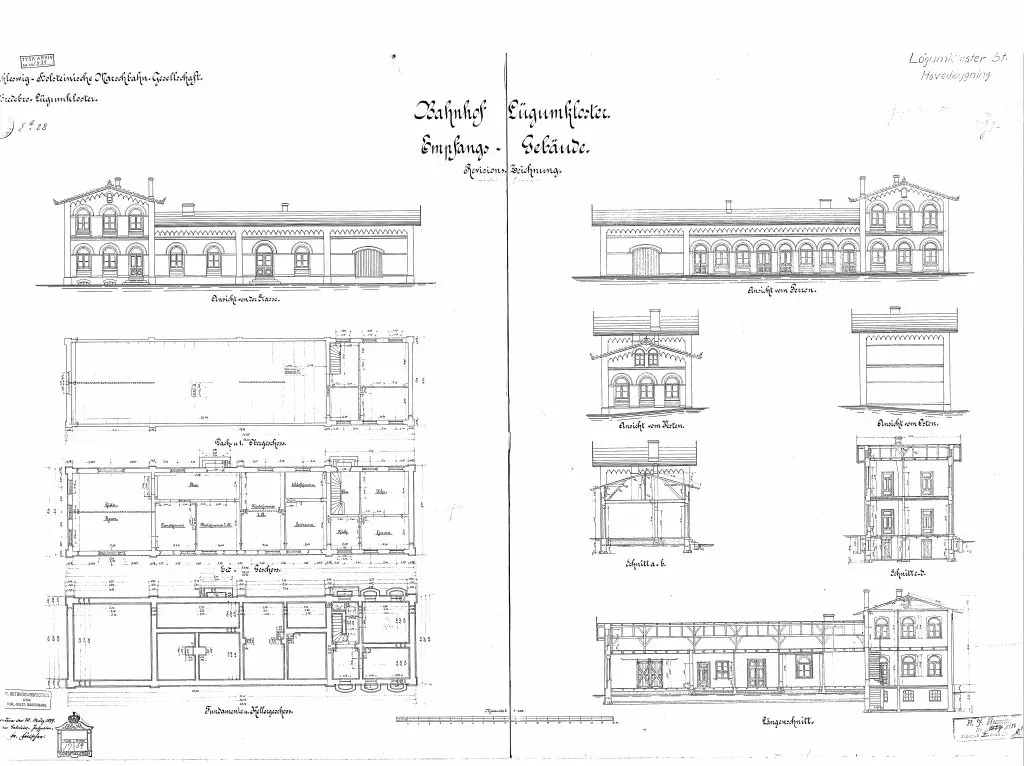
Tegninger af Løgumkloster Statsbanegård

Kilde: Danmarks Jernbanemuseum - Dato: 1887 - LINK til kilde.
Noter til: Tegning af Løgumkloster Statsbanegård.
Transportselskab/ operatør: Schleswig-Holsteinische Marschbahn-Gesellschaft (SHMG)
Jernbanested: Løgumkloster
Navneændringer: Før 17.06.1920 Lugumkloster.
På strækningen: Bredebro - Løgumkloster
Beskrivelse: Stationsbygning.
Infrastrukturejer: Schleswig-Holsteinische Marschbahn-Gesellschaft
Motivdato: 1887
Anslået motivdato: ca. 1887
Delsamling: Ulrik T. Jensens samling
Scannummer: DSB-Logumkloster-scan22559

Kilde: Danmarks Jernbanemuseum - Dato: 1887 - LINK til kilde.
Noter til: Tegning af Løgumkloster Statsbanegård.
Transportselskab/ operatør: Schleswig-Holsteinische Marschbahn-Gesellschaft (SHMG)
Jernbanested: Løgumkloster
Navneændringer: Før 17.06.1920 Lugumkloster.
På strækningen: Bredebro - Løgumkloster
Beskrivelse: Stationsbygning.
Infrastrukturejer: Schleswig-Holsteinische Marschbahn-Gesellschaft
Motivdato: 1887
Anslået motivdato: ca. 1887
Delsamling: Ulrik T. Jensens samling
Scannummer: DSB-Logumkloster-scan22560

Kilde: Danmarks Jernbanemuseum - Dato: 1887 - LINK til kilde.
Noter til: Tegning af Løgumkloster Statsbanegård.
Transportselskab/ operatør: Schleswig-Holsteinische Marschbahn-Gesellschaft (SHMG)
Jernbanested: Løgumkloster
Navneændringer: Før 17.06.1920 Lugumkloster.
På strækningen: Bredebro - Løgumkloster
Beskrivelse: Stationsbygning.
Infrastrukturejer: Schleswig-Holsteinische Marschbahn-Gesellschaft
Motivdato: 1887
Anslået motivdato: ca. 1887
Fotograf/ billedkunstner: ukendt
Delsamling: Ulrik T. Jensens samling
Scannummer: DSB-Logumkloster-scan26874
Google Street View af Løgumkloster Statsbanegård
Kilde: © Street View, by Google Maps - Dato: den 1. januar 2022 - LINK til kilde.
Kort over Løgumkloster Statsbanegård

Kort over Løgumkloster Statsbanegård - Kilde: Indeholder data fra Styrelsen for Dataforsyning og Effektivisering, skærmkortet, WMS-tjeneste via datafordeler.dk (Ortofoto forår)

Kort over Løgumkloster Statsbanegård - Kilde: Indeholder data fra Styrelsen for Dataforsyning og Effektivisering, skærmkortet, WMS-tjeneste via datafordeler.dk (Ortofoto forår)

Kort over Løgumkloster Statsbanegård - Kilde: Indeholder data fra Styrelsen for Dataforsyning og Effektivisering, skærmkortet, WMS-tjeneste via datafordeler.dk (Topgrafisk kort 1980-2001)

Kort over Løgumkloster Statsbanegård - Kilde: Indeholder data fra Styrelsen for Dataforsyning og Effektivisering, skærmkortet, WMS-tjeneste via datafordeler.dk (Topografisk kort 1953-1976)

Kort over Løgumkloster Statsbanegård - Kilde: Indeholder data fra Styrelsen for Dataforsyning og Effektivisering, skærmkortet, WMS-tjeneste via datafordeler.dk (Lave Målebordsblade 1901-1971)

Kort over Løgumkloster Statsbanegård - Kilde: Indeholder data fra Styrelsen for Dataforsyning og Effektivisering, skærmkortet, WMS-tjeneste via datafordeler.dk (Preussiske målebordsblade 1899 - 1920)
Litteratur for: Løgumkloster Statsbanegård
![]() | Bogtitel Forfatter Udgivelsesår Sidetal Udgivelsessted Forlag ISBN | Klosterbanen og Rømøbanen P. Thomassen 1982 68 pt BØGER |
![]() | Bogtitel Forfatter Udgivelsesår Sidetal Udgivelsessted Forlag ISBN | Sønderjyske jernbaner Niels Jensen 1975 80 København J. Fr. Clausen 87-11-03697-4 |

