Springforbi Billetsalgssted (Sf), en artikel om Springforbi Billetsalgssted
Springforbi Billetsalgssted – En Historisk Udflugtsstation
Springforbi Billetsalgssted åbnede sammen med Kystbanen den 2. august 1897. Stationen lå nord for Taarbæk ved København og var fra starten en beskeden sommerstation, som kun var åben i dagtimerne. Placeringen ved Kystbanen gjorde det muligt for københavnere og turister at besøge de naturskønne områder ved Dyrehaven.Udviklingen af Stationen
I 1900 blev billetsalgsstedet åbnet året rundt, hvilket gjorde det til et mere fast element i jernbanens infrastruktur. I 1909 blev stationens funktion yderligere udvidet, da den fik status af "holdeplads" og kunne håndtere stykgods. Dette betød, at den ikke kun var en passagerstation, men også spillede en rolle i godstransporten.Stationsbygninger og Postekspedition
Springforbi Billetsalgssted bestod af to næsten symmetriske træbygninger, hvor der fra starten var ekspedition i begge. Med tiden blev ekspeditionen samlet i bygningen på vestsiden (skovsiden), hvilket skabte en mere effektiv drift. I 1924 blev en beskeden postekspedition etableret på stationen, hvilket tilføjede en ekstra service for de lokale og besøgende.En Udflugtsstation med Særlige Traditioner
Springforbi var en typisk udflugtsstation, der var ideelt beliggende ved den fredelige østlige del af Dyrehaven. Området var kendt for sine gamle hvidtjørne og smukke landskaber, hvilket gjorde stationen populær blandt skovgæster. På pinsemorgener kunne der dog være alt andet end fredeligt på stationen, hvor feststemte besøgende skabte en livlig atmosfære omkring stationen og det nærliggende skovløberhus.Trafikmønstre og Statistik
Springforbi Billetsalgssted var i mange år en velbesøgt station. I løbet af sine første 50 leveår solgte stationen imponerende 2.680.000 billetter. Dertil blev der afsendt 2.385 tons gods og ankom 2.718 tons gods, hvilket understreger stationens betydning for både passager- og godstrafik.Nedgang og Lukning
Efter besættelsen ændrede danskernes rejsevaner sig markant. Det blev ikke længere moderne at tage toget til skoven, og passagertallet svandt ind. Med faldende trafik besluttede DSB at lukke Springforbi Billetsalgssted den 26. maj 1968. Bygningerne blev revet ned samme år, og stationen blev dermed den eneste nedlagte station på Kystbanen.Oprindelsen af Navnet Springforbi
Navnet Springforbi menes at stamme fra en tidligere kro ved Strandvejen, oprindeligt kaldet "Spring-ej-forbi". Kroen lå nær det sted, hvor billetsalgsstedet blev etableret, og navnet levede videre i stationens betegnelse.Stamdata for Springforbi Billetsalgssted
| Byggeår | 1897 |
| Åbnet | 1897.08.02 |
| Nedlagt | 1968.05.26 |
| Nedrevet | 1968 |
| Arkitekt | Heinrich Wenck |
| Stednavneforkortelse | Sf |
| Højdeplacering over havet | 14,7 meter |
| GPS koordinater | 55.801831,12.583543 |
Springforbi Billetsalgssted servicerede følgende jernbaner
| Jernbanens navn | Operatør | Længde | Åbnet | Nedlagt |
|---|---|---|---|---|
| København-Helsingør (Den sjællandske Kystbane) | DSB | 46,2 | 1897.08.02 | I drift |
Billede af Springforbi Billetsalgssted

Fotograf: Det Kgl. Bibliotek, Aero Ekspress - Dato: 1932-1950 - LINK til kilde.
Noter til: Billede af Springforbi Billetsalgssted.
Titel:- 1932-1950 -
Sted:Danmark, Sjælland, Klampenborg, Strandvejen
Ophav:Aero Ekspress
År:1932-1950
Id:AE_01834.tif
Billeder af Springforbi Billetsalgssted

Fotograf: Det Kgl. Bibliotek, Landinspektørens Luftfoto Opmåling - Dato: 1965 - LINK til kilde.
Noter til: Billede af Springforbi Billetsalgssted.
Titel:Strandvejen
Bygningsnavn:Strandvejen
Sted:Danmark, Sjælland, Springforbi
Ophav:Landinspektørernes Luftfoto Opmåling
År:1965
Id:LLOA202-65_8321.tif

Fotograf: Det Kgl. Bibliotek, Landinspektørens Luftfoto Opmåling - Dato: 1965 - LINK til kilde.
Noter til: Billede af Springforbi Billetsalgssted.
Titel:Strandvejen
Bygningsnavn:Strandvejen
Sted:Danmark, Sjælland, Taarbæk
Ophav:Landinspektørernes Luftfoto Opmåling
År:1965
Id:LLOA202-65_8322.tif

Fotograf: Jacob Laursen - Dato: den 20. april 2020 Download billede
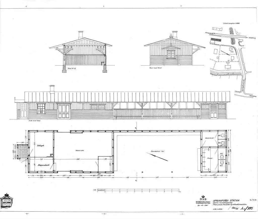
Tegninger af Springforbi Billetsalgssted

Kilde: Danmarks Jernbanemuseum - Dato: den 24. oktober 1961 - LINK til kilde.
Noter til: Tegning af Springforbi Billetsalgssted.
Transportselskab/ operatør: Danske Statsbaner (DSB)
Jernbanested: Springforbi
På strækningen: Klampenborg - Snekkersten
Beskrivelse: Stationsbygning.
Infrastrukturejer: Danske Statsbaner
Motivdato: 24. okt. 1961
Delsamling: Ulrik T. Jensens samling
Scannummer: DSB-springforbi-scan28437

Kilde: Danmarks Jernbanemuseum - Dato: den 24. oktober 1961 - LINK til kilde.
Noter til: Tegning af Springforbi Billetsalgssted.
Transportselskab/ operatør: Danske Statsbaner (DSB)
Jernbanested: Springforbi
På strækningen: Klampenborg - Snekkersten
Beskrivelse: Stationsbygning.
Infrastrukturejer: Danske Statsbaner
Motivdato: 24. okt. 1961
Delsamling: Ulrik T. Jensens samling
Scannummer: DSB-springforbi-scan28440

Kilde: Danmarks Jernbanemuseum - Dato: 1901 - LINK til kilde.
Noter til: Tegning af Springforbi Billetsalgssted - Forslag til hovedbygning.
Transportselskab/ operatør: Statsbaneanlægene (DSB)
Jernbanested: Springforbi
På strækningen: Klampenborg - Snekkersten
Beskrivelse: Forslag til hovedbygning.
Infrastrukturejer: Statsbanedriften
Motivdato: 1901
Fotograf/ billedkunstner: Sign.: Th. Arboe
Delsamling: Ulrik T. Jensens samling
Scannummer: DSB-Springforbi-forslag-billetsalgssted-scan466

Kilde: Danmarks Jernbanemuseum - Dato: 1901 - LINK til kilde.
Noter til: Tegning af Springforbi Billetsalgssted - Forslag til hovedbygning.
Transportselskab/ operatør: Statsbaneanlægene (DSB)
Jernbanested: Springforbi
På strækningen: Klampenborg - Snekkersten
Beskrivelse: Forslag til hovedbygning.
Infrastrukturejer: Statsbanedriften
Motivdato: 1901
Fotograf/ billedkunstner: Sign.: Th. Arboe
Delsamling: Ulrik T. Jensens samling
Scannummer: DSB-Springforbi-forslag-billetsalgssted-scan467
Google Street View af Springforbi Billetsalgssted
Kilde: © Street View, by Google Maps - Dato: den 10. januar 2022 - LINK til kilde.
Kort over Springforbi Billetsalgssted

Kort over Springforbi Billetsalgssted - Kilde: Indeholder data fra Styrelsen for Dataforsyning og Effektivisering, skærmkortet, WMS-tjeneste via datafordeler.dk (Ortofoto forår)

Kort over Springforbi Billetsalgssted - Kilde: Indeholder data fra Styrelsen for Dataforsyning og Effektivisering, skærmkortet, WMS-tjeneste via datafordeler.dk (Ortofoto forår)

Kort over Springforbi Billetsalgssted - Kilde: Indeholder data fra Styrelsen for Dataforsyning og Effektivisering, skærmkortet, WMS-tjeneste via datafordeler.dk (Topgrafisk kort 1980-2001)

Kort over Springforbi Billetsalgssted - Kilde: Indeholder data fra Styrelsen for Dataforsyning og Effektivisering, skærmkortet, WMS-tjeneste via datafordeler.dk (Topografisk kort 1953-1976)

Kort over Springforbi Billetsalgssted - Kilde: Indeholder data fra Styrelsen for Dataforsyning og Effektivisering, skærmkortet, WMS-tjeneste via datafordeler.dk (Lave Målebordsblade 1901-1971)
Litteratur for: Springforbi Billetsalgssted
![]() | Bogtitel Forfatter Udgivelsesår Sidetal Udgivelsessted Forlag ISBN | Forsvundne stationer Peer Thomassen 1988 80 Bane Bøger 87-88632-19-9 |
![]() | Bogtitel Forfatter Udgivelsesår Sidetal Udgivelsessted Forlag ISBN | Kystbanen 1897-1972 P. Thomassen 1972 311 Historisk Topografisk selskab for Søllerød kommune |
![]() | Bogtitel Forfatter Udgivelsesår Sidetal Udgivelsessted Forlag ISBN | Nordbanen John Poulsen 2020 316 Bane Bøger 978-87-91434-56-3 |
![]() | Bogtitel Forfatter Udgivelsesår Sidetal Udgivelsessted Forlag ISBN | Nordsjællandske jernbaner Niels Jensen 1975 80 København J. Fr. Clausen 87-11-03671-0 |



