Hammelev (Sønderjylland) Station (Hmm) [1922-1953], en artikel om Hammelev Station
Billetsalgsstedet blev ophøjet til station fra 1922 med fuld ekspedition af passagerer og gods frem til slutningen af 1953, og var derefter trinbræt uden sidespor. Sidesporet blev dog genåbnet 3 måneder senere og var åbent frem til1963.
Fra og med den 2. januar 1974 indstillede DSB persontrafikken mellem Vojens og Haderslev "midlertidigt" pga. oliekrisen, og erstattede togene med rutebiler. Ved samme anledning nedlagdes Styding og Hammelev trinbræt "midlertidigt" og permanent fra 1978.
Hammelev Billetsalgssted blev nedrevet i slutningen af 1950'erne.
Links til supplerende læsning:
veteranbanen-haderslev-vojens.dk (Link til hjemmesiden for: Vojens-Haderslev Veteranjernbane )Stamdata for Hammelev (Sønderjylland) Station [1922-1953]
| Andre navne og stavemåder | Før 17.06.1920 Hammeleff. |
| Byggeår | 1866 |
| Åbnet | 1922 |
| Nedlagt | 1953 (i slutningen af året) |
| Nedrevet | Nedrevet (Stationsbygningen blev revet ned engang efter 1954) |
| Stednavneforkortelse | Hmm |
| Højdeplacering over havet | 36,0 meter |
| GPS koordinater | 55.247446,9.389233 |
Oversigt over andre stationer fra Hammelev (Sønderjylland)
| Foto | Stationens navn | Beskrivelse |
|---|---|---|
| Hammelev (Sønderjylland) Trinbræt (Hmm) | Hammelev Billetsalgssted var med sidespor, senere også stykg... | |
| Hammelev (Sønderjylland) Station (Hmm) [1922-1953] | Hammelev Billetsalgssted var med sidespor, senere også stykg... | |
| Hammelev (Sønderjylland) Billetsalgssted med Sidespor (Hmm) [1866-1922] | Hammelev Billetsalgssted var med sidespor, senere også stykg... |
Billede af Hammelev (Sønderjylland) Station [1922-1953]

Fotograf: Jacob Laursen - Dato: den 29. marts 2020 Download billede
Billeder af Hammelev (Sønderjylland) Station [1922-1953]

Fotograf: Det Kgl. Bibliotek, Dana Luftfoto/Odense Luftfoto - Dato: 1953 - LINK til kilde.
Noter til: Billede af Hammelev (Sønderjylland) Station.
Titel: - 1953 -
Person: Bygningsnavn: Hammelev Station
Sted: Danmark, Jylland, Hammelev
Vejnavn: Husnummer: Lokalitet: Postnummer: By: Hammelev
Sogn: Hammelev
Matrikelnummer: Ophav: Odense Luftfoto
År: 1953
Note: Id: OD01114_004.tif

Fotograf: Det Kgl. Bibliotek, Dana Luftfoto/Odense Luftfoto - Dato: 1953 - LINK til kilde.
Noter til: Billede af Hammelev (Sønderjylland) Station.
Titel: - 1953 -
Person: Bygningsnavn: Sted: Danmark, Jylland, Styding
Vejnavn: Husnummer: Lokalitet: Postnummer: By: Sogn: Matrikelnummer: Ophav: Odense Luftfoto
År: 1953
Note: Id: OD01114_006.tif
Tegninger af Hammelev (Sønderjylland) Station [1922-1953]

Kilde: Danmarks Jernbanemuseum - Dato: Ukendt - LINK til kilde.
Noter til: Tegning af Hammelev (Sønderjylland) Station.
Transportselskab/ operatør: Königliche Eisenbahn-Direktion zu Altona (KPEV) (KPEV fra 01.03.1885)
Jernbanested: Hammelev
Navneændringer: Før 17.06.1920 Hammeleff.
På strækningen: Vojens - Haderslev
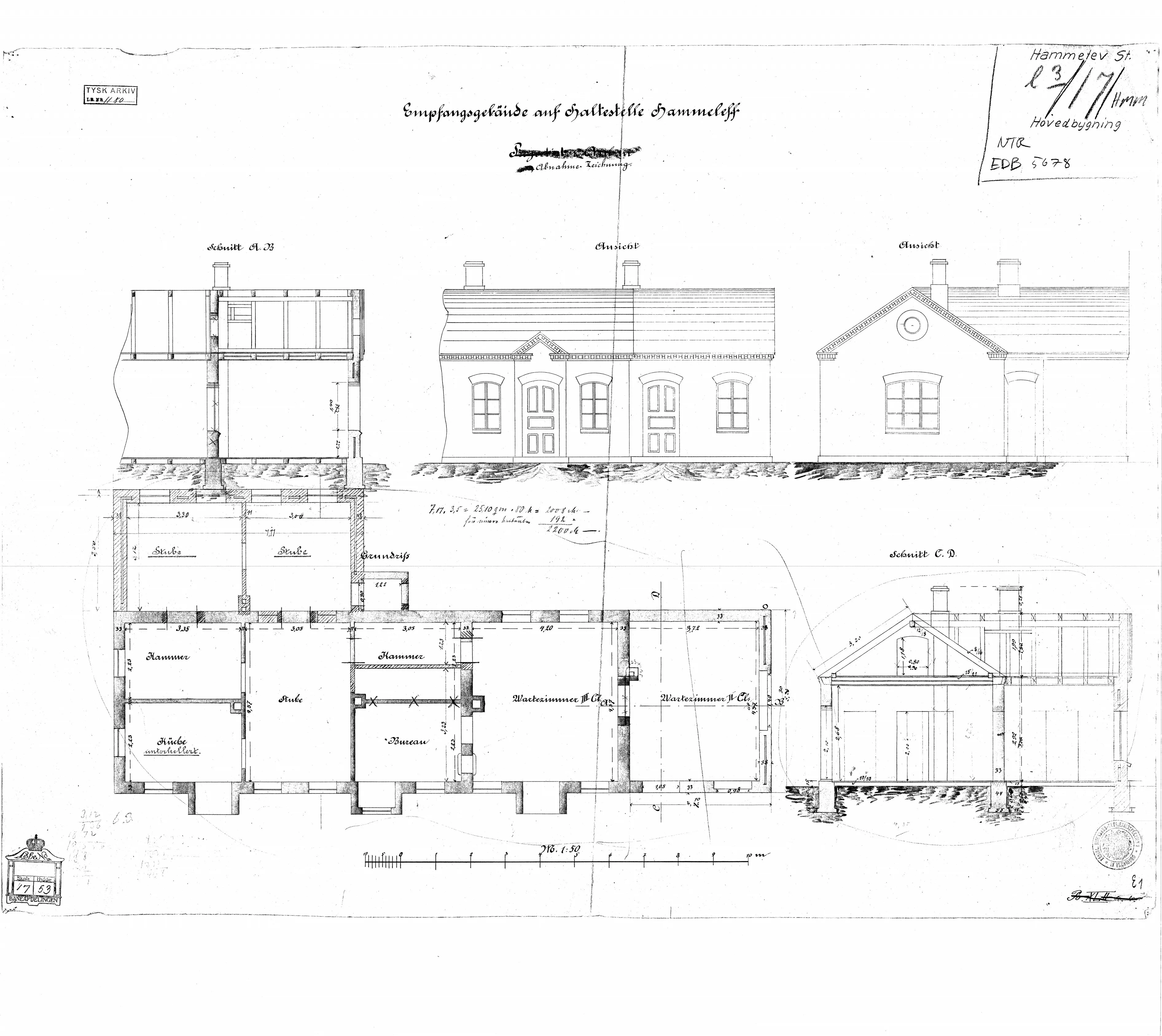
Beskrivelse: Stationsbygning. Projekt til udvidelse.
Anslået motivdato: u.a.
Fotograf/ billedkunstner: ukendt
Delsamling: Ulrik T. Jensens samling
Scannummer: DSB-Hammelev-Emfangsgebaude-scan777

Kilde: Danmarks Jernbanemuseum - Dato: Ukendt - LINK til kilde.
Noter til: Tegning af Hammelev (Sønderjylland) Station.
Transportselskab/ operatør: Königliche Eisenbahn-Direktion zu Altona (KPEV) (KPEV fra 01.03.1885)
Jernbanested: Hammelev
Navneændringer: Før 17.06.1920 Hammeleff.
På strækningen: Vojens - Haderslev
Beskrivelse: Stationsbygning. Projekt til udvidelse.
Infrastrukturejer: Preußische Staatseisenbahnen
Anslået motivdato: u.a.
Fotograf/ billedkunstner: ukendt
Delsamling: Ulrik T. Jensens samling
Scannummer: DSB-Hammelev-hovedbygning-scan778

Kilde: Danmarks Jernbanemuseum - Dato: 1867 - LINK til kilde.
Noter til: Tegning af Hammelev (Sønderjylland) Station.
Transportselskab/ operatør: Schleswigsche Eisenbahn (SE)
Jernbanested: Hammelev
Navneændringer: Før 17.06.1920 Hammeleff.
På strækningen: Vojens - Haderslev
Beskrivelse: Stationsbygning.
Infrastrukturejer: Schleswigsche Eisenbahn
Motivdato: 1867
Delsamling: Ulrik T. Jensens samling
Scannummer: DSB-Hammelev-Had_Oj-scan820
Google Street View af Hammelev (Sønderjylland) Station [1922-1953]
Kilde: © Street View, by Google Maps - Dato: den 28. december 2021 - LINK til kilde.
Kort over Hammelev (Sønderjylland) Station [1922-1953]
![Historisk kort over Hammelev (Sønderjylland) Station [1922-1953] Historisk kort over Hammelev (Sønderjylland) Station [1922-1953]](./kort/2924_ZOOM.webp)
Kort over Hammelev (Sønderjylland) Station [1922-1953] - Kilde: Indeholder data fra Styrelsen for Dataforsyning og Effektivisering, skærmkortet, WMS-tjeneste via datafordeler.dk (Ortofoto forår)
![Historisk kort over Hammelev (Sønderjylland) Station [1922-1953] Historisk kort over Hammelev (Sønderjylland) Station [1922-1953]](./kort/2924_ORTO.webp)
Kort over Hammelev (Sønderjylland) Station [1922-1953] - Kilde: Indeholder data fra Styrelsen for Dataforsyning og Effektivisering, skærmkortet, WMS-tjeneste via datafordeler.dk (Ortofoto forår)
![Historisk kort over Hammelev (Sønderjylland) Station [1922-1953] Historisk kort over Hammelev (Sønderjylland) Station [1922-1953]](./kort/2924_1980.webp)
Kort over Hammelev (Sønderjylland) Station [1922-1953] - Kilde: Indeholder data fra Styrelsen for Dataforsyning og Effektivisering, skærmkortet, WMS-tjeneste via datafordeler.dk (Topgrafisk kort 1980-2001)
![Historisk kort over Hammelev (Sønderjylland) Station [1922-1953] Historisk kort over Hammelev (Sønderjylland) Station [1922-1953]](./kort/2924_1953.webp)
Kort over Hammelev (Sønderjylland) Station [1922-1953] - Kilde: Indeholder data fra Styrelsen for Dataforsyning og Effektivisering, skærmkortet, WMS-tjeneste via datafordeler.dk (Topografisk kort 1953-1976)
![Historisk kort over Hammelev (Sønderjylland) Station [1922-1953] Historisk kort over Hammelev (Sønderjylland) Station [1922-1953]](./kort/2924_1901.webp)
Kort over Hammelev (Sønderjylland) Station [1922-1953] - Kilde: Indeholder data fra Styrelsen for Dataforsyning og Effektivisering, skærmkortet, WMS-tjeneste via datafordeler.dk (Lave Målebordsblade 1901-1971)
![Historisk kort over Hammelev (Sønderjylland) Station [1922-1953] Historisk kort over Hammelev (Sønderjylland) Station [1922-1953]](./kort/2924_1899.webp)
Kort over Hammelev (Sønderjylland) Station [1922-1953] - Kilde: Indeholder data fra Styrelsen for Dataforsyning og Effektivisering, skærmkortet, WMS-tjeneste via datafordeler.dk (Preussiske målebordsblade 1899 - 1920)
Litteratur for: Hammelev (Sønderjylland) Station [1922-1953]
![]() | Bogtitel Forfatter Udgivelsesår Sidetal Udgivelsessted Forlag ISBN | Flere forsvundne stationer Morten Flindt Larsen 1994 80 Bane Bøger 87-88632-49-0 |
