Stenlille Station (Stl) [1901-2001], en artikel om Stenlille Station
Stenlille Stations Historie
Stenlille Station blev etableret i den lille by Stenlille, hvor jernbanen bidrog markant til byens udvikling. Omkring år 1900 havde Stenlille Kommune cirka 1.000 indbyggere, hvoraf omkring 250 boede i selve stationsbyen. Med jernbanens ankomst voksede byen hurtigt, og i 1920 var befolkningstallet steget til 540. Tre årtier senere, i 1950, var der 863 indbyggere, og i år 2000 nåede byen op på omkring 1.800 indbyggere. Kommunen, der i 2001 havde omkring 5.300 indbyggere, havde rådhuset placeret i Stenlille. Byens vækst har historisk set primært foregået både nord og syd for jernbanen, hvor nye villakvarterer er blevet opført næsten hvert årti. Området omkring Stenlille inkluderer store naturområder såsom Åmose-lavningen, Sandlyng Mose og Bodal Mose.Automatiske Bomanlæg og Infrastrukturændringer
I 1969 blev det første automatiske halvbomanlæg ved Høng-Tølløse Jernbane (HTJ) etableret cirka 300 meter øst for Stenlille Station. Dette skete i forbindelse med anlæggelsen af en omfartsvej rundt om Stenlille By, hvilket var en del af en større infrastrukturudvikling relateret til landevejen Holbæk-Sorø.Forretningskvarter og Lokale Erhverv
Efter 1901 udviklede der sig et forretningskvarter langs Hovedgaden og Stationsvej. Stenlille Hotel, som åbnede i 1897, var en vigtig samlingspunkt for jernbanearbejdere under anlægsperioden. Hotellet blev ombygget og udvidet i 1906. Det blev dog revet ned i 1994 for at give plads til en SuperBrugs, der åbnede samme år. Overfor lå byens afholdshotel, som i en årrække husede en lokalredaktion for Dagbladet. Stenlille fik desuden et apotek i 1903, mens byen tidligere har haft et mejeri, savværk og en mølle. I dag findes en forkromningsvirksomhed i de gamle mejeribygninger.Uddannelsesinstitutioner og Skolehistorie
En privat mellem- og realskole blev etableret i 1905, mens den nuværende kommuneskoles ældste bygninger stammer fra 1924. Stenlille Realskole tiltrak mange elever fra nærliggende stationsbyer og bidrog til jernbanens trafik, indtil skolen lukkede i 1961. Skolebygningen ejes i dag af Stenlille Kommune.Industri og Sidespor
Ved Petersminde, på banens sydside, blev en kalksandstensfabrik anlagt i 1899. I 1903 opførtes et større fabrikskompleks, og samme år etablerede Dansk Kalksandstensfabrik et privat sidespor til området. Sporet, der forbandt fabrikken med jernbanens hovedspor vest for Hovedgaden, blev fjernet i 1958, da fabrikken lukkede. Efterfølgende blev bygningerne solgt til en gummivarefabrik, Janus Hansens Gummifabrik A/S, som eksisterede indtil 1999.Grusgrave og Banens Vedligeholdelse
Stenlille ligger på en åsstump og har historisk haft flere store grusgrave. Ved banens anlæg blev grus hentet fra en grusgrav nord for banen, og for at sikre fremtidig vedligeholdelse købte HTJ i 1901 et grusgravsareal vest for Stenlille Station. I 1903 anlagdes et sidespor fra stationen til grusgraven, men efter 1960 ophørte gravningen, og sporet blev senere brugt til hensættelse af udrangeret materiel. Sporet blev fjernet i 1966, og området er i dag omdannet til et parkanlæg med parkeringsplads og en genbrugsstation.Stationsbygningen og Dens Udvikling
Stenlille Station var fra starten identisk med Store Merløse Station både i forhold til bygninger og spor. Stationen havde en stationsforstander, og i 1902 blev der etableret brevsamlingssted. Fra 1907 blev Stenlille også postmæssigt ophøjet til jernbanepostekspedition, og i 1960 blev stationens leder ansat som stationsmester. Ventesalen blev udvidet i 1920'erne, mens en større ombygning i 1953 blev gennemført af hensyn til postvæsenet. Senere, i 1980, blev stationen igen ombygget med nye postfaciliteter, herunder en ny budstue, postboksanlæg og offentlige toiletter.Den seneste større ombygning fandt sted i 1988, hvor bygningen blev udvidet mod øst og vest. Der blev indrettet en ny ventesal og større ekspeditionslokaler for både jernbanen og postvæsenet. På første sal blev der etableret en moderne lejlighed. Stationen blev genindviet den 28. januar 1989. Pakhuset blev istandsat i 1991 og indrettet til cykelparkering. I 1993 blev stationsbygningens gamle skifertag udskiftet med et nyt tegltag.
Nedlukning af Jernbane- og Postekspedition
Den 21. juli 2001 lukkede jernbane- og postekspeditionen, hvilket betød, at kunder fremover måtte købe billetter og postydelser i kiosken på Stationsvej.Perroner og Infrastrukturændringer
Allerede i 1901 havde Stenlille et krydsningsspor på banens nordside, mens der på sydsiden fandtes et læssespor med en enderampe øst for stationsbygningen. I 1903 blev der opført et vandtårn øst for vejskæringen med Hovedgaden, men det blev fjernet i 1952 efter anmodning fra Borgerforeningen. Det blev erstattet af en vandkran, som var i brug indtil 1982.I 1978-1979 blev krydsningssporet flyttet længere væk fra hovedsporet for at gøre plads til en ny perron. Der blev installeret elektriske sporskifter i forbindelse med etableringen af banens første fjernstyringsanlæg. I 1980 blev forbindelsen til læssesporet afbrudt fra vest, mens perronerne blev renoveret i 1984 med nye betonforkanter og asfalt. Mellem 1986 og 1988 blev sporene forstærket, og enderampen fik nye betonkanter og asfalt, hvilket afsluttede en længere modernisering af stationens infrastruktur.
Links til supplerende læsning:
da.wikipedia.org (Beskrivelse af Høng-Tølløse Jernbane )Stamdata for Stenlille Station [1901-2001]
| Byggeår | 1900 |
| Åbnet | 1901.12.22 |
| Nedlagt | 2001.07.21 |
| Status | Eksisterer stadig |
| Arkitekt | Heinrich Wenck |
| Adresse | Stationsvej 1, 4295 Stenlille |
| Stednavneforkortelse | Stl |
| Højdeplacering over havet | 34,7 meter |
| GPS koordinater | 55.539004,11.591516 |
Oversigt over andre stationer fra Stenlille
| Foto | Stationens navn | Beskrivelse |
|---|---|---|
| Stenlille Trinbræt (Stl) | Stenlille Trinbræt og dets HistorieStenlille Trinbræt blev e... | |
| Stenlille Station (Stl) [1901-2001] | Stenlille Stations HistorieStenlille Station blev etableret ... |
BBR Data for Stenlille Station [1901-2001]BBR DATA fra Danmarks Adressers Web API (DAWA), som Styrelsen for Dataforsyning og Effektivisering (SDFE) har ansvaret for.BBR DATA hentet: 2024-01-02 19:52:46 | |
| BBR Højde over havet | 34,7 meter |
| BBR GPS koordinater | 55.53899052,11.59144817 |
| BBR Byggeår eller konverteringsår | 1900 |
| BBR Seneste ombygning | 1988 |
| BBR Bebygget areal i alt | 218 m2 |
| BBR Bebygget areal hovedbygningen | 218 m2 |
| BBR Samlet boligareal | 84 m2 |
| BBR Samlet erhvervsareal | 218 m2 |
| BBR Antal etager | 1 |
Billede af Stenlille Station [1901-2001]

Fotograf: Jacob Laursen - Dato: den 15. juli 2021 Download billede
Video fra Stenlille Station [1901-2001]
Kilde: Jacob Laursen - Dato: den 19. juli 2023
Billeder af Stenlille Station [1901-2001]

Fotograf: Jacob Laursen - Dato: den 19. juli 2023 Download billede

Fotograf: Jacob Laursen - Dato: den 19. juli 2023 Download billede

Fotograf: Jacob Laursen - Dato: den 19. juli 2023 Download billede

Fotograf: Jacob Laursen - Dato: den 19. juli 2023 Download billede

Fotograf: Jacob Laursen - Dato: den 19. juli 2023 Download billede

Fotograf: Jacob Laursen - Dato: den 19. juli 2023 Download billede

Fotograf: Jacob Laursen - Dato: den 19. juli 2023 Download billede

Fotograf: Jacob Laursen - Dato: den 19. juli 2023 Download billede

Fotograf: Jacob Laursen - Dato: den 25. juli 2022 Download billede

Fotograf: Jacob Laursen - Dato: den 25. juli 2022 Download billede

Fotograf: Jacob Laursen - Dato: den 15. juli 2021 Download billede

Fotograf: Jacob Laursen - Dato: den 15. juli 2021 Download billede

Fotograf: Jacob Laursen - Dato: den 15. juli 2021 Download billede

Fotograf: Jacob Laursen - Dato: den 15. juli 2021 Download billede

Fotograf: Jacob Laursen - Dato: den 15. juli 2021 Download billede

Fotograf: Jacob Laursen - Dato: den 15. juli 2021 Download billede

Fotograf: Jacob Laursen - Dato: den 21. juli 2009 Download billede

Fotograf: Jacob Laursen - Dato: den 21. juli 2009 Download billede

Fotograf: Jacob Laursen - Dato: den 21. juli 2009 Download billede

Fotograf: Jacob Laursen - Dato: den 21. juli 2009 Download billede

Fotograf: Det Kgl. Bibliotek, Ariel/Dansk Luftfoto - Dato: 1989 - LINK til kilde.
Noter til: Billede af Stenlille Station.
Titel:- 1989 - Stenlille Station
Sted:Danmark, Sjælland, Stenlille
Ophav:Ariel/Dansk Luftfoto
År:1989
Id:A891219_028.tif

Fotograf: Det Kgl. Bibliotek, Odense Luftfoto - Dato: 1957 - LINK til kilde.
Noter til: Billede af Stenlille Station.
Titel:Stenlille Hotel
Bygningsnavn:Stenlille Hotel
Sted:Danmark, Sjælland, Stenlille
Ophav:Odense Luftfoto
År:1957
Id:OD02443_005.tif

Fotograf: Det Kgl. Bibliotek, Sylvest Jensen Luftfoto - Dato: 1955 - LINK til kilde.
Noter til: Billede af Stenlille Stations varehus.
Titel:Stationsvej 6 - 1955 - Stenlille Hotel
Sted:Danmark, Sjælland, Stenlille
Vejnavn:Stationsvej
Husnummer:6
Lokalitet:Sorø Kommune
Postnummer:4295
Ophav:Sylvest Jensen Luftfoto
År:1955
Id:H06779_026.tif

Fotograf: Det Kgl. Bibliotek, Sylvest Jensen Luftfoto - Dato: 1936-1938 - LINK til kilde.
Noter til: Billede af Stenlille Station.
Titel:Stationsvej 6 - 1936-1938 - Stenlille Station
Sted:Danmark, Sjælland, Sorø Kommune, Stenlille
Vejnavn:Stationsvej
Husnummer:6
Lokalitet:Stenlille
Postnummer:4295
By:Stenlille
Sogn:Stenlille
Matrikelnummer:6an
Ophav:Sylvest Jensen Luftfoto
År:1936-1938
Note:I dag Superbrugsen. Bagerst Stenlille st.
Id:L00489_027.tif

Fotograf: Jacob Laursen - Dato: den 19. juli 2023 Download billede

Fotograf: Jacob Laursen - Dato: den 19. juli 2023 Download billede

Fotograf: Jacob Laursen - Dato: den 19. juli 2023 Download billede

Fotograf: Jacob Laursen - Dato: den 19. juli 2023 Download billede

Fotograf: Jacob Laursen - Dato: den 19. juli 2023 Download billede

Fotograf: Jacob Laursen - Dato: den 19. juli 2023 Download billede

Fotograf: Jacob Laursen - Dato: den 25. juli 2022 Download billede

Fotograf: Jacob Laursen - Dato: den 15. juli 2021 Download billede

Fotograf: Jacob Laursen - Dato: den 15. juli 2021 Download billede

Fotograf: Jacob Laursen - Dato: den 15. juli 2021 Download billede

Fotograf: Jacob Laursen - Dato: den 15. juli 2021 Download billede

Fotograf: Jacob Laursen - Dato: den 15. juli 2021 Download billede

Fotograf: Jacob Laursen - Dato: den 15. juli 2021 Download billede

Fotograf: Jacob Laursen - Dato: den 15. juli 2021 Download billede

Fotograf: Jacob Laursen - Dato: den 15. juli 2021 Download billede

Fotograf: Jacob Laursen - Dato: den 15. juli 2021 Download billede

Fotograf: Jacob Laursen - Dato: den 15. juli 2021 Download billede

Fotograf: Jacob Laursen - Dato: den 21. juli 2009 Download billede

Fotograf: Jacob Laursen - Dato: den 21. juli 2009 Download billede

Fotograf: Jacob Laursen - Dato: den 21. juli 2009 Download billede
Tegninger af Stenlille Station [1901-2001]

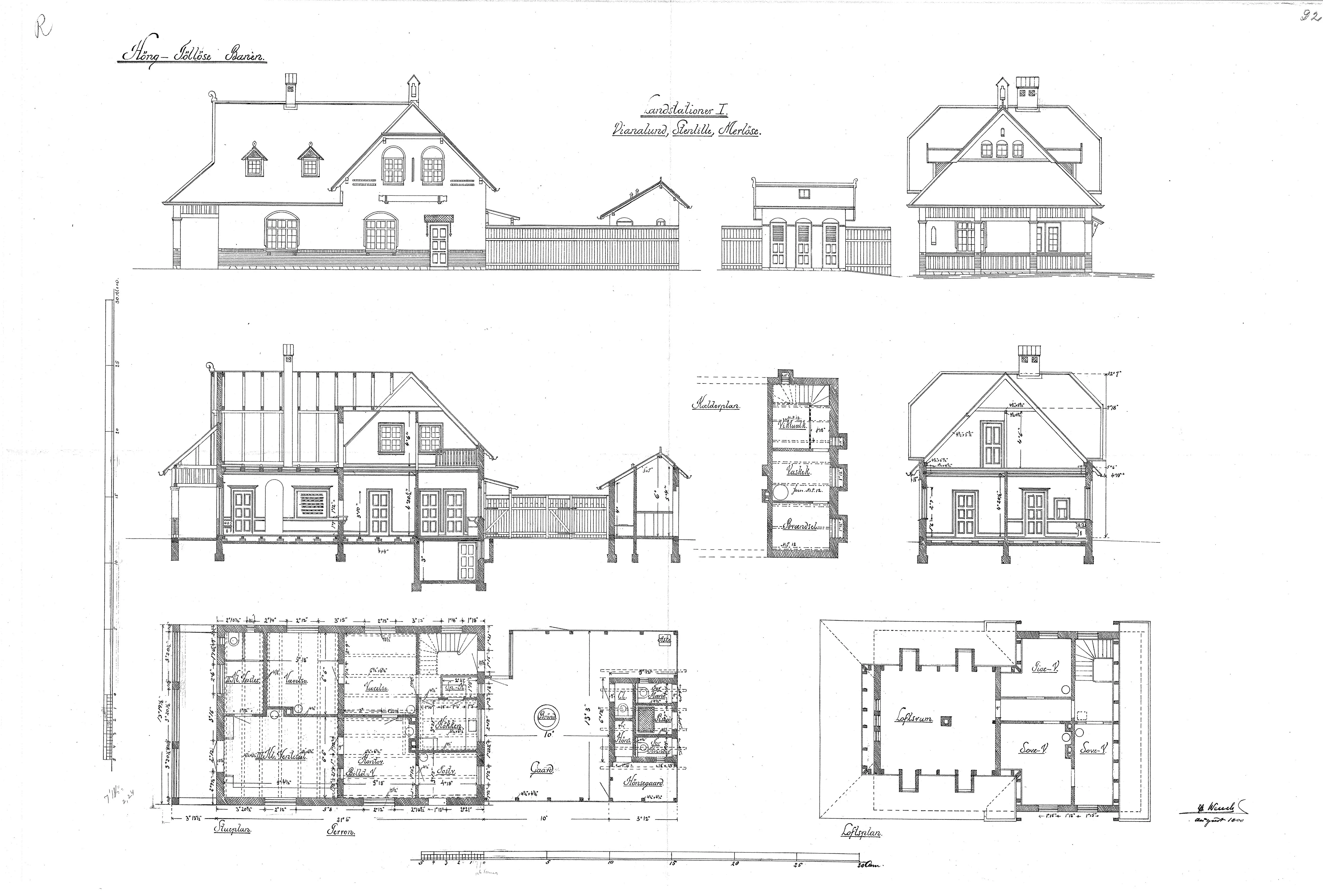
Kilde: Danmarks Jernbanemuseum - Dato: 1900 (august) - LINK til kilde.
Noter til: Tegning af Stenlille Station.
Transportselskab/ operatør: Høng - Tølløse Jernbane (HTJ)
Jernbanested: Høng - Tølløse
Beskrivelse: Stationsbygning: *Dianalund, *Stenlille og *Store-Merløse.
Infrastrukturejer: Høng - Tølløse Jernbanens Aktieselskab
Motivdato: 8/1900
Fotograf/ billedkunstner: Sign.: H. Wenck
Delsamling: Ulrik T. Jensens samling
Scannummer: HTJ-Dianalund-Stenlille-Merlose-scan27036

Kilde: Danmarks Jernbanemuseum - Dato: 1900 (august) - LINK til kilde.
Noter til: Tegning af Stenlille Station.
Transportselskab/ operatør: Høng - Tølløse Jernbane (HTJ)
Jernbanested: Høng - Tølløse
Beskrivelse: Hovedbygning *Dianalund, *Stenlille og *Store-Merløse.
Infrastrukturejer: Høng - Tølløse Jernbanens Aktieselskab
Motivdato: 8/1900
Fotograf/ billedkunstner: Sign.: H. Wenck
Delsamling: Ulrik T. Jensens samling
Scannummer: HTJ-Landstationer-I-Stemlille-Dianalund-Merløse-scan500
Google Street View af Stenlille Station [1901-2001]
Kilde: © Street View, by Google Maps - Dato: den 1. januar 2024 - LINK til kilde.
Kort over Stenlille Station [1901-2001]
![Historisk kort over Stenlille Station [1901-2001] Historisk kort over Stenlille Station [1901-2001]](./kort/3154_ZOOM.webp)
Kort over Stenlille Station [1901-2001] - Kilde: Indeholder data fra Styrelsen for Dataforsyning og Effektivisering, skærmkortet, WMS-tjeneste via datafordeler.dk (Ortofoto forår)
![Historisk kort over Stenlille Station [1901-2001] Historisk kort over Stenlille Station [1901-2001]](./kort/3154_ORTO.webp)
Kort over Stenlille Station [1901-2001] - Kilde: Indeholder data fra Styrelsen for Dataforsyning og Effektivisering, skærmkortet, WMS-tjeneste via datafordeler.dk (Ortofoto forår)
![Historisk kort over Stenlille Station [1901-2001] Historisk kort over Stenlille Station [1901-2001]](./kort/3154_1980.webp)
Kort over Stenlille Station [1901-2001] - Kilde: Indeholder data fra Styrelsen for Dataforsyning og Effektivisering, skærmkortet, WMS-tjeneste via datafordeler.dk (Topgrafisk kort 1980-2001)
![Historisk kort over Stenlille Station [1901-2001] Historisk kort over Stenlille Station [1901-2001]](./kort/3154_1953.webp)
Kort over Stenlille Station [1901-2001] - Kilde: Indeholder data fra Styrelsen for Dataforsyning og Effektivisering, skærmkortet, WMS-tjeneste via datafordeler.dk (Topografisk kort 1953-1976)
![Historisk kort over Stenlille Station [1901-2001] Historisk kort over Stenlille Station [1901-2001]](./kort/3154_1901.webp)
Kort over Stenlille Station [1901-2001] - Kilde: Indeholder data fra Styrelsen for Dataforsyning og Effektivisering, skærmkortet, WMS-tjeneste via datafordeler.dk (Lave Målebordsblade 1901-1971)
Litteratur for: Stenlille Station [1901-2001]
![]() | Bogtitel Forfatter Udgivelsesår Sidetal Udgivelsessted Forlag ISBN | Høng - Tølløse Jernbane 1901-1976 (Dansk Jernbane-Klub: 40) Ole-Chr. M. Plum 1976 158 Dansk Jernbane-Klub 87-87050-02-1 |
![]() | Bogtitel Forfatter Udgivelsesår Sidetal Udgivelsessted Forlag ISBN | Høng Tølløse Jernbane 100 år (Dansk Jernbane-Klub: 52) Ole-Chr. Munk Plum 2001 256 Dansk Jernbane-Klub 8787050455 |
![]() | Bogtitel Forfatter Udgivelsesår Sidetal Udgivelsessted Forlag ISBN | Vestsjællandske jernbaner Niels Jensen 1978 103 København J. Fr. Clausen 87-11-03879-9 |


