Aulum Station (Uu) [1904-1973], en artikel om Aulum Station
Stamdata for Aulum Station [1904-1973]
| Andre navne og stavemåder | Avlum |
| Byggeår | 1904 |
| Åbnet | 1904.10.11 |
| Nedlagt | 1973 |
| Status | Eksisterer stadig |
| Arkitekt | Heinrich Wenck |
| Adresse | Jernbanegade 2, 7490 Aulum |
| Stednavneforkortelse | Uu |
| Højdeplacering over havet | 44,8 meter |
| GPS koordinater | 56.265252,8.788438 |
Oversigt over andre stationer fra Aulum
| Foto | Stationens navn | Beskrivelse |
|---|---|---|
| Aulum Trinbræt (Uu) | Aulum Station blev nedsat til Trinbræt i 1973 og er fjernsty... | |
| Aulum Station (Uu) [1904-1973] | Aulum Station blev nedsat til Trinbræt i 1973 og er fjernsty... |
Billede af Aulum Station [1904-1973]

Fotograf: Steen Larsen - Dato: den 26. april 2024
Billeder af Aulum Station [1904-1973]

Fotograf: Steen Larsen - Dato: den 26. april 2024

Fotograf: Steen Larsen - Dato: den 26. april 2024

Fotograf: Steen Larsen - Dato: den 26. april 2024

Fotograf: Steen Larsen - Dato: den 26. april 2024

Fotograf: Steen Larsen - Dato: den 26. april 2024
Tegninger af Aulum Station [1904-1973]

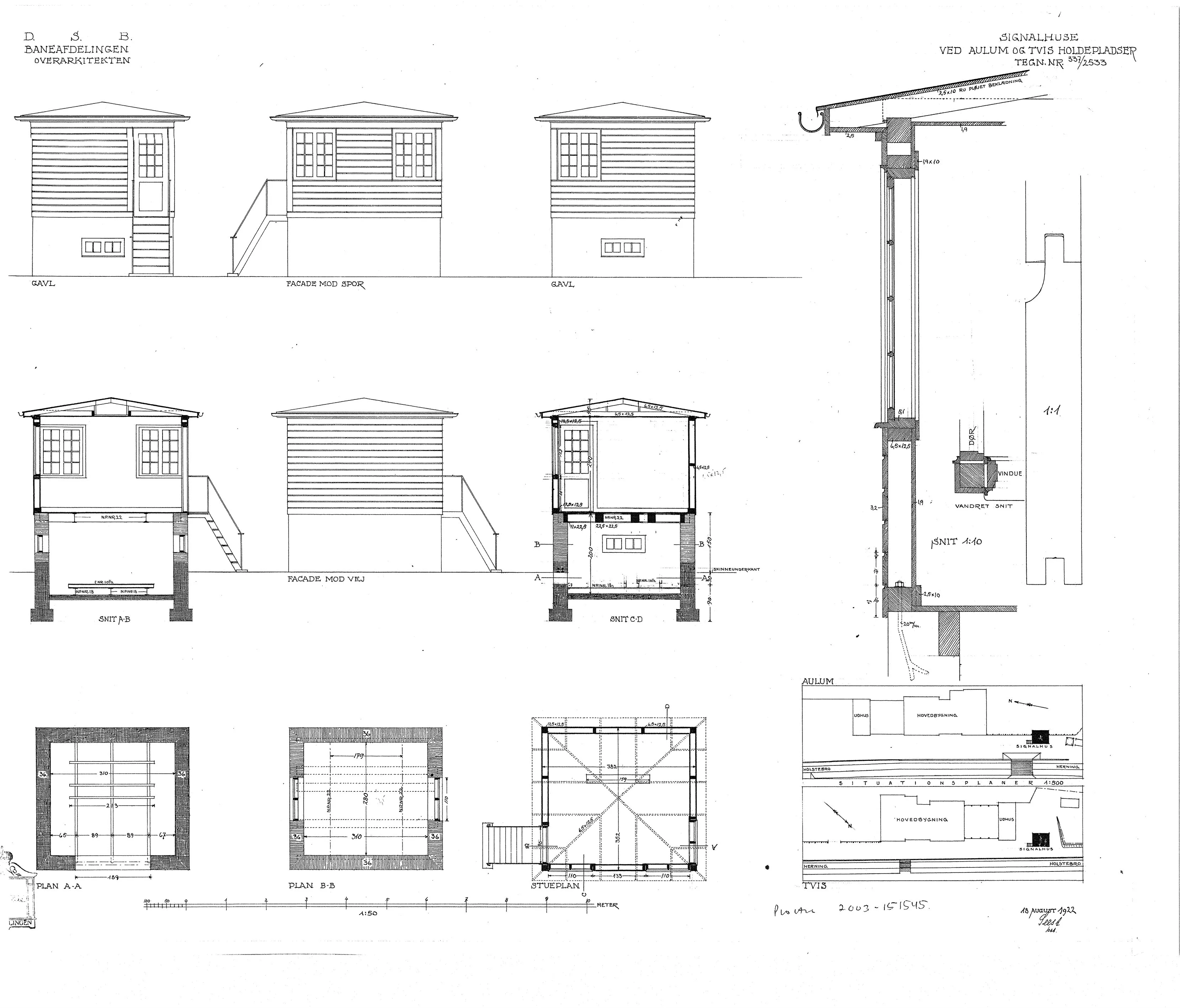
Kilde: Danmarks Jernbanemuseum - Dato: den 18. august 1922 - LINK til kilde.
Noter til: Tegning af Aulum Stations signalhus.
Transportselskab/ operatør: De danske Statsbaner (DSB)
Jernbanested: Holstebro - Herning
Beskrivelse: Signalhus *Avlum og *Tvis. Sign: Seest (kst.).
Infrastrukturejer: De danske Statsbaner
Motivdato: 18. aug. 1922
Fotograf/ billedkunstner: ukendt
Delsamling: Ulrik T. Jensens samling
Scannummer: DSB-Aulum-Tvis-signalhuse-scan28193

Kilde: Danmarks Jernbanemuseum - Dato: 1904 (januar) - LINK til kilde.
Noter til: Tegning af Aulum Station.
Transportselskab/ operatør: Statsbaneanlægene (DSB)
Jernbanested: Holstebro - Herning
Beskrivelse: Stationsbygning: *Skibbild, *Tvis, *Vildbjerg og *Avlum.
Infrastrukturejer: Statsbanedriften
Motivdato: 1/1904
Fotograf/ billedkunstner: ukendt
Delsamling: Ulrik T. Jensens samling
Scannummer: DSB-Tvis-mv-skifter-scan22472

Kilde: Danmarks Jernbanemuseum - Dato: 1904 (januar) - LINK til kilde.
Noter til: Tegning af Aulum Station.
Transportselskab/ operatør: De danske Statsbaner (DSB)
Jernbanested: Holstebro - Herning
Beskrivelse: Stationsbygning: *Skibild, *Tvis, *Vilbjerg og *Avlum.
Infrastrukturejer: De danske Statsbaner
Motivdato: 1/1904
Fotograf/ billedkunstner: ukendt
Delsamling: Ulrik T. Jensens samling
Scannummer: DSB-Skibild-Tvis-mv-scan27397

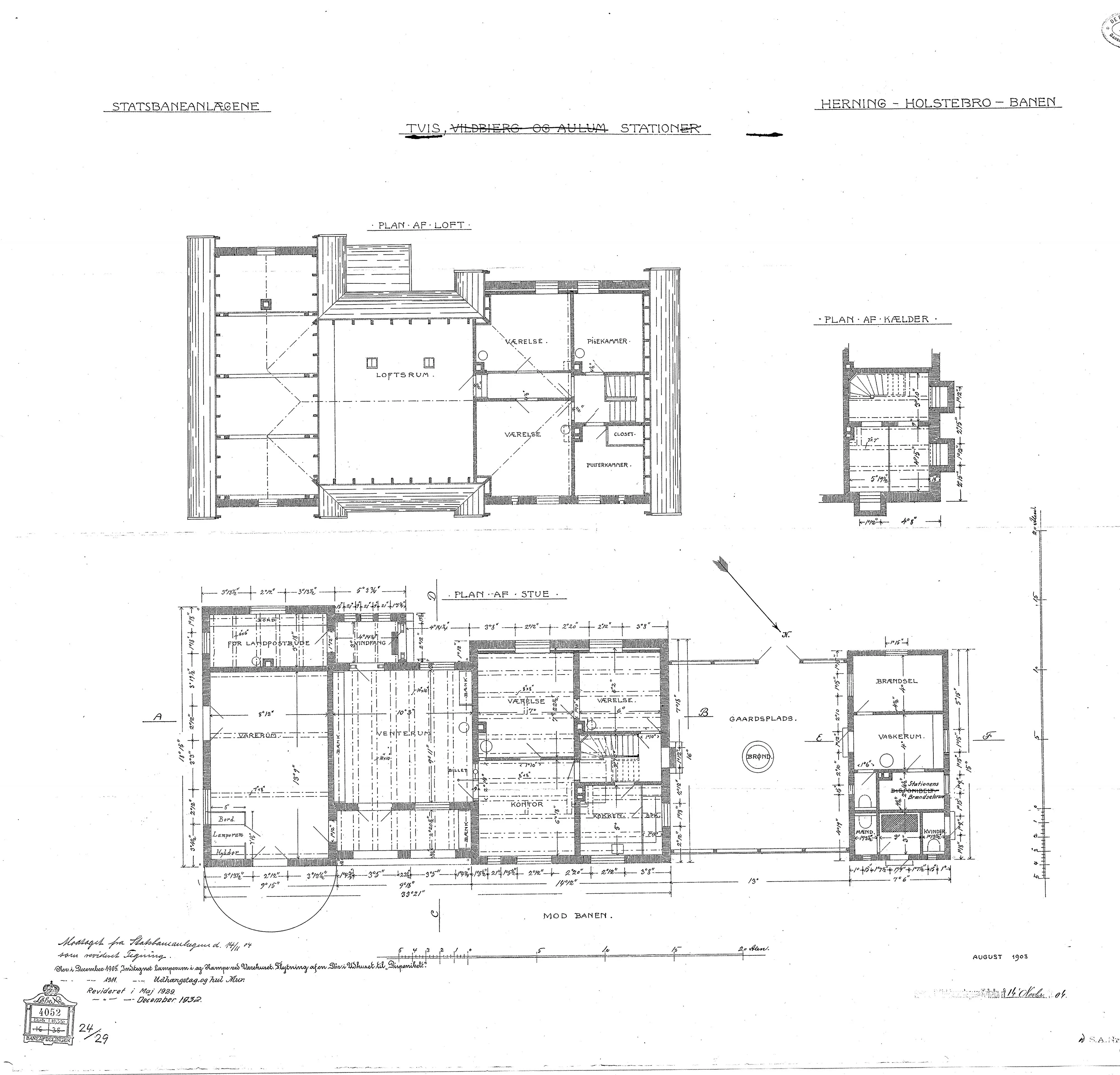
Kilde: Danmarks Jernbanemuseum - Dato: 1903 (august) - LINK til kilde.
Noter til: Tegning af Aulum Station.
Transportselskab/ operatør: Statsbaneanlægene (DSB)
Jernbanested: Holstebro - Herning
Beskrivelse: Stationsbygning: *Tvis, *Vildbjerg og *Avlum.
Infrastrukturejer: Statsbanedriften
Motivdato: 8/1903
Fotograf/ billedkunstner: ukendt
Delsamling: Ulrik T. Jensens samling
Scannummer: DSB-Tvis-mv-scan22469

Kilde: Danmarks Jernbanemuseum - Dato: 1903 (august) - LINK til kilde.
Noter til: Tegning af Aulum Station.
Transportselskab/ operatør: Statsbaneanlægene (DSB)
Jernbanested: Holstebro - Herning
Beskrivelse: Stationsbygning: *Tvis, *Vildbjerg og *Avlum.
Infrastrukturejer: Statsbanedriften
Motivdato: 8/1903
Fotograf/ billedkunstner: ukendt
Delsamling: Ulrik T. Jensens samling
Scannummer: DSB-Tvis-planer-scan27392

Kilde: Danmarks Jernbanemuseum - Dato: 1903 (august) - LINK til kilde.
Noter til: Tegning af Aulum Station.
Transportselskab/ operatør: Statsbaneanlægene (DSB)
Jernbanested: Holstebro - Herning
Beskrivelse: Stationsbygning: *Tvis, *Vildbjerg og *Avlum.
Infrastrukturejer: Statsbanedriften
Motivdato: 8/1903
Fotograf/ billedkunstner: ukendt
Delsamling: Ulrik T. Jensens samling
Scannummer: DSB-Tvis-mv-snit-scan22471

Kilde: Danmarks Jernbanemuseum - Dato: 1903 (august) - LINK til kilde.
Noter til: Tegning af Aulum Station.
Transportselskab/ operatør: Statsbaneanlægene (DSB)
Jernbanested: Holstebro - Herning
Beskrivelse: Stationsbygning: *Tvis, *Vildbjerg og *Avlum.
Infrastrukturejer: Statsbanedriften
Motivdato: 8/1903
Fotograf/ billedkunstner: ukendt
Delsamling: Ulrik T. Jensens samling
Scannummer: DSB-Tvis-Vildbjerg-Aulum-scan22470
Google Street View af Aulum Station [1904-1973]
Kilde: © Street View, by Google Maps - Dato: den 4. maj 2024 - LINK til kilde.
Kort over Aulum Station [1904-1973]
![Historisk kort over Aulum Station [1904-1973] Historisk kort over Aulum Station [1904-1973]](./kort/3164_ZOOM.webp)
Kort over Aulum Station [1904-1973] - Kilde: Indeholder data fra Styrelsen for Dataforsyning og Effektivisering, skærmkortet, WMS-tjeneste via datafordeler.dk (Ortofoto forår)
![Historisk kort over Aulum Station [1904-1973] Historisk kort over Aulum Station [1904-1973]](./kort/3164_ORTO.webp)
Kort over Aulum Station [1904-1973] - Kilde: Indeholder data fra Styrelsen for Dataforsyning og Effektivisering, skærmkortet, WMS-tjeneste via datafordeler.dk (Ortofoto forår)
![Historisk kort over Aulum Station [1904-1973] Historisk kort over Aulum Station [1904-1973]](./kort/3164_1980.webp)
Kort over Aulum Station [1904-1973] - Kilde: Indeholder data fra Styrelsen for Dataforsyning og Effektivisering, skærmkortet, WMS-tjeneste via datafordeler.dk (Topgrafisk kort 1980-2001)
![Historisk kort over Aulum Station [1904-1973] Historisk kort over Aulum Station [1904-1973]](./kort/3164_1953.webp)
Kort over Aulum Station [1904-1973] - Kilde: Indeholder data fra Styrelsen for Dataforsyning og Effektivisering, skærmkortet, WMS-tjeneste via datafordeler.dk (Topografisk kort 1953-1976)
![Historisk kort over Aulum Station [1904-1973] Historisk kort over Aulum Station [1904-1973]](./kort/3164_1901.webp)
Kort over Aulum Station [1904-1973] - Kilde: Indeholder data fra Styrelsen for Dataforsyning og Effektivisering, skærmkortet, WMS-tjeneste via datafordeler.dk (Lave Målebordsblade 1901-1971)