Ørbæk Station (Øk), en artikel om Ørbæk Station
Ørbæk Station blev revet ned i 1968 for at vige pladsen til Ørbæk rådhus. I 2016 blev rådhusbygningerne nedrevet og der er i dag private boliger på den gamle stationsplads.
Stamdata for Ørbæk Station
| Byggeår | 1897 |
| Åbnet | 1897.09.01 |
| Nedlagt | 1962.05.27 |
| Nedrevet | 1968 |
| Arkitekt | Thomas Arboe |
| Stednavneforkortelse | Øk |
| Højdeplacering over havet | 59,5 meter |
| GPS koordinater | 55.259368,10.670169 |
Ørbæk Station servicerede følgende jernbaner
| Jernbanens navn | Operatør | Længde | Åbnet | Nedlagt |
|---|---|---|---|---|
| Ringe-Nyborg Banen | DSB (Oprindelig: RNB) | 26,5 | 1898.09.01 | 1962.05.26 |
Billede af Ørbæk Station

Fotograf: Det Kgl. Bibliotek, Odense Luftfoto - Dato: 1957 - LINK til kilde.
Noter til: Billede af Ørbæk Station.
Titel:- 1957 -
Sted:Danmark, Fyn, Ørbæk
Ophav:Odense Luftfoto
År:1957
Id:OD02310_015.tif
Billeder af Ørbæk Station

Fotograf: Jacob Laursen - Dato: den 23. maj 2022 Download billede

Fotograf: Jacob Laursen - Dato: den 23. maj 2022 Download billede
Noter til: Billede af Ørbæk Posthus, som lå tæt ved Ørbæk Station.
Ørbæk Posthus tegnet af Arkitekt kgl. Bygningsinspektør J. V. Pedersen.
1908 påbegyndtes opførelsen af et nyt posthus i Tarm ved Tarm Station og Posthuset var tegnet af Arkitekt kgl. Bygningsinspektør J.V. Pedersen.
Posthusbygningen i Tarm kom til at danne forbillede for de kommende Posthuse opført i Hadsten, Hurup, Tølløse og Ørbæk - alle bygget i perioden 1909-1910.

Fotograf: Jacob Laursen - Dato: den 23. maj 2022 Download billede

Fotograf: Jacob Laursen - Dato: den 4. november 2008 Download billede

Fotograf: Jacob Laursen - Dato: den 4. november 2008 Download billede
Noter til: Billede af Ørbæk Posthus, som lå tæt ved Ørbæk Station.
Ørbæk Posthus tegnet af Arkitekt kgl. Bygningsinspektør J. V. Pedersen.
1908 påbegyndtes opførelsen af et nyt posthus i Tarm ved Tarm Station og Posthuset var tegnet af Arkitekt kgl. Bygningsinspektør J.V. Pedersen.
Posthusbygningen i Tarm kom til at danne forbillede for de kommende Posthuse opført i Hadsten, Hurup, Tølløse og Ørbæk - alle bygget i perioden 1909-1910.

Fotograf: Det Kgl. Bibliotek, Sylvest Jensen Luftfoto - Dato: 1957 - LINK til kilde.
Noter til: Billede af Ørbæk Station.
Titel:Hundstrup, A., gårdejer - 1957 -
Person:Hundstrup, A., gårdejer
Sted:Danmark, Fyn, Ørbæk
Ophav:Sylvest Jensen Luftfoto
År:1957
Id:H09691_028.tif
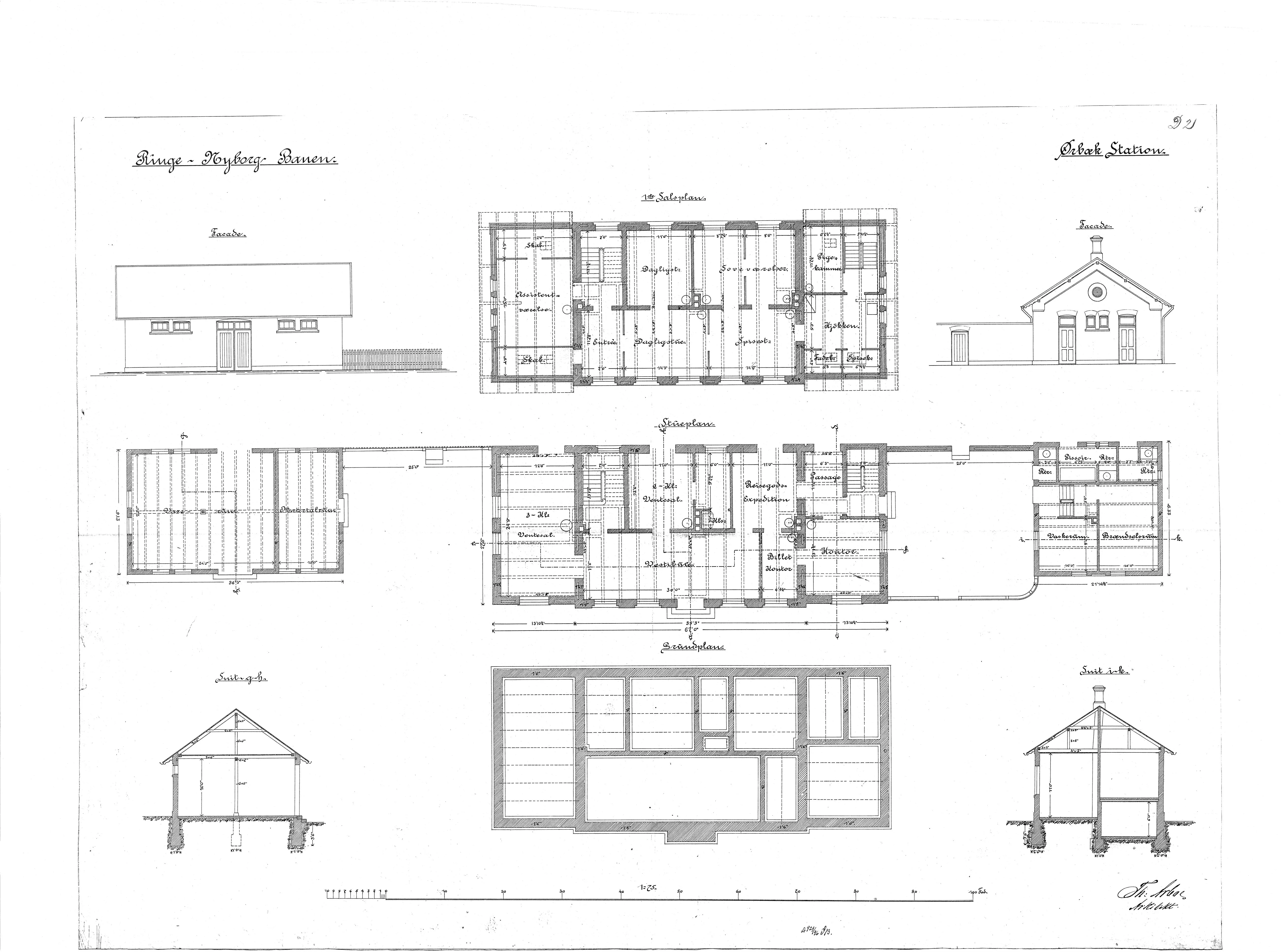
Tegninger af Ørbæk Station

Kilde: Danmarks Jernbanemuseum - Dato: 1896 - LINK til kilde.
Noter til: Tegning af Ørbæk Station.
Transportselskab/ operatør: Ringe - Nyborg Banen (RNB)
Jernbanested: Ørbæk
På strækningen: Nyborg - Ringe
Beskrivelse: Stationsbygning.
Infrastrukturforvalter: Det sydfyenske Jernbaneselskab
Infrastrukturejer: Den danske stat
Motivdato: 1896
Anslået motivdato: ca. 1896
Fotograf/ billedkunstner: Sign.: Th. Arboe
Delsamling: Ulrik T. Jensens samling
Scannummer: RNB-Orbak-scan519

Kilde: Danmarks Jernbanemuseum - Dato: 1896 - LINK til kilde.
Noter til: Tegning af Ørbæk Station.
Transportselskab/ operatør: Ringe - Nyborg Banen (RNB)
Jernbanested: Ørbæk
På strækningen: Nyborg - Ringe
Beskrivelse: Stationsbygning.
Infrastrukturforvalter: Det sydfyenske Jernbaneselskab
Infrastrukturejer: Den danske stat
Motivdato: 1896
Anslået motivdato: ca. 1896
Fotograf/ billedkunstner: Sign.: Th. Arboe
Delsamling: Ulrik T. Jensens samling
Scannummer: RNB-Orbak-scan520
Google Street View af Ørbæk Station
Kilde: © Street View, by Google Maps - Dato: den 27. januar 2022 - LINK til kilde.
Kort over Ørbæk Station

Kort over Ørbæk Station - Kilde: Indeholder data fra Styrelsen for Dataforsyning og Effektivisering, skærmkortet, WMS-tjeneste via datafordeler.dk (Ortofoto forår)

Kort over Ørbæk Station - Kilde: Indeholder data fra Styrelsen for Dataforsyning og Effektivisering, skærmkortet, WMS-tjeneste via datafordeler.dk (Ortofoto forår)

Kort over Ørbæk Station - Kilde: Indeholder data fra Styrelsen for Dataforsyning og Effektivisering, skærmkortet, WMS-tjeneste via datafordeler.dk (Topgrafisk kort 1980-2001)

Kort over Ørbæk Station - Kilde: Indeholder data fra Styrelsen for Dataforsyning og Effektivisering, skærmkortet, WMS-tjeneste via datafordeler.dk (Topografisk kort 1953-1976)

Kort over Ørbæk Station - Kilde: Indeholder data fra Styrelsen for Dataforsyning og Effektivisering, skærmkortet, WMS-tjeneste via datafordeler.dk (Lave Målebordsblade 1901-1971)
Litteratur for: Ørbæk Station
![]() | Bogtitel Forfatter Udgivelsesår Sidetal Udgivelsessted Forlag ISBN | Forsvundne stationer Peer Thomassen 1988 80 Bane Bøger 87-88632-19-9 |
![]() | Bogtitel Forfatter Udgivelsesår Sidetal Udgivelsessted Forlag ISBN | Fynske jernbaner Niels Jensen 1976 112 København J. Fr. Clausen 87-11-03736-9 |
![]() | Bogtitel Forfatter Udgivelsesår Sidetal Udgivelsessted Forlag ISBN | Nyborg-Ringe-Fåborg banen : med et afsnit om færgeoverfarten Fåborg-Mommark Lars Viinholt-Nielsen 1981 231 Odense Odense Universitetsforlag 8774923552 |
![]() | Bogtitel Forfatter Udgivelsesår Sidetal Udgivelsessted Forlag ISBN | Sydfyenske Jernbaners Rullende Materiel Lars Viinholt-Nielsen 2016 144 Bane Bøger 9788791434471 |



