Dyssegård Trinbræt (Dyt) [1932-1968], en artikel om Dyssegård Trinbræt
Dyssegård Trinbræt – En Station med Skiftende Betydning
Dyssegård Trinbræt blev oprettet den 22. maj 1932 i forbindelse med motordriftens indførelse på København-Slangerup Banen. Trinbrættet havde oprindeligt en jordperron og et simpelt venteskur. Placeringen var præget af landlige omgivelser, hvor der i midten af 1920'erne kun fandtes enkelte gårde og åbne marker. Efter anlæggelsen af Dyssegårdsvej opstod ønsket om et holdepunkt ved overskæringen, men først i 1932 blev dette realiseret.Forbindelsen til Rutebilerne og Lokaltrafikkens Udvikling
Dyssegård Trinbræt fik hurtigt et trafikgrundlag, blandt andet takket være "Stephansens Rutebiler," der fra 1929 betjente ruten mellem Søborg og Gentofte. Trinbrættet spillede en rolle for passagerer fra Lyngbyvejkvarteret, Dyssegårdsvej og Hellerup, der benyttede det som en transportforbindelse til andre dele af Storkøbenhavn. Rutebilerne sikrede også forbindelser til Charlottenlund, Ordrup, Skovshoved og Klampenborg.Konkurrence fra Sporvogne og Busser
Fra 1938 begyndte passagertallet på Dyssegård Trinbræt at falde. NESA forlængede sin trolleyvognsrute fra Kildegårds Plads til Søborg, hvor en større trafikterminal for sporvogne og busser blev etableret. Denne nye transportmulighed medførte et passagerfald på trinbrættet på ca. 30 %. Selv under besættelsen nåede passagertallet ikke op på forkrigsniveau og faldt yderligere efter krigen.Billetsalget og Ombygningen til S-togs Trinbræt
Det oprindelige billetsalg ved Dyssegård Trinbræt blev senere nedrevet og erstattet af et nyt S-togs trinbræt. Området, der engang havde været præget af åbne marker og enkle landlige strukturer, blev gradvist urbaniseret, og trinbrættets funktion ændrede sig i takt med udviklingen af kollektiv transport i hovedstadsområdet.Stamdata for Dyssegård Trinbræt [1932-1968]
| Andre navne og stavemåder | Før 02.06.1957 Dyssegaard. |
| Byggeår | 1932 |
| Åbnet | 1932.05.22 |
| Nedlagt | 1968 |
| Nedrevet | Nedrevet |
| Stednavneforkortelse | Dyt |
| Højdeplacering over havet | 19,8 meter |
| GPS koordinater | 55.732151,12.536054 |
Oversigt over andre stationer fra Dyssegård
| Foto | Stationens navn | Beskrivelse |
|---|---|---|
| Dyssegård S-togstrinbræt (Dyt) | Dyssegård S-togstrinbræt – Historie og Betydning i København... | |
| Dyssegård Trinbræt (Dyt) [1932-1968] | Dyssegård Trinbræt – En Station med Skiftende BetydningDysse... |
Dyssegård Trinbræt [1932-1968] servicerede følgende jernbaner
| Jernbanens navn | Operatør | Længde | Åbnet | Nedlagt |
|---|---|---|---|---|
| Slangerupbanen, København-Slangerup Banen | DSB (Oprindelig: KSB) | 34,2 | 1906.04.20 | 1954.05.15 |
Billede af Dyssegård Trinbræt [1932-1968]

Fotograf: Jacob Laursen - Dato: den 2. september 2021 Download billede
Billeder af Dyssegård Trinbræt [1932-1968]

Fotograf: Jacob Laursen - Dato: den 2. september 2021 Download billede

Fotograf: Jacob Laursen - Dato: den 2. september 2021 Download billede
Tegninger af Dyssegård Trinbræt [1932-1968]

Kilde: Danmarks Jernbanemuseum - Dato: 1931 - LINK til kilde.
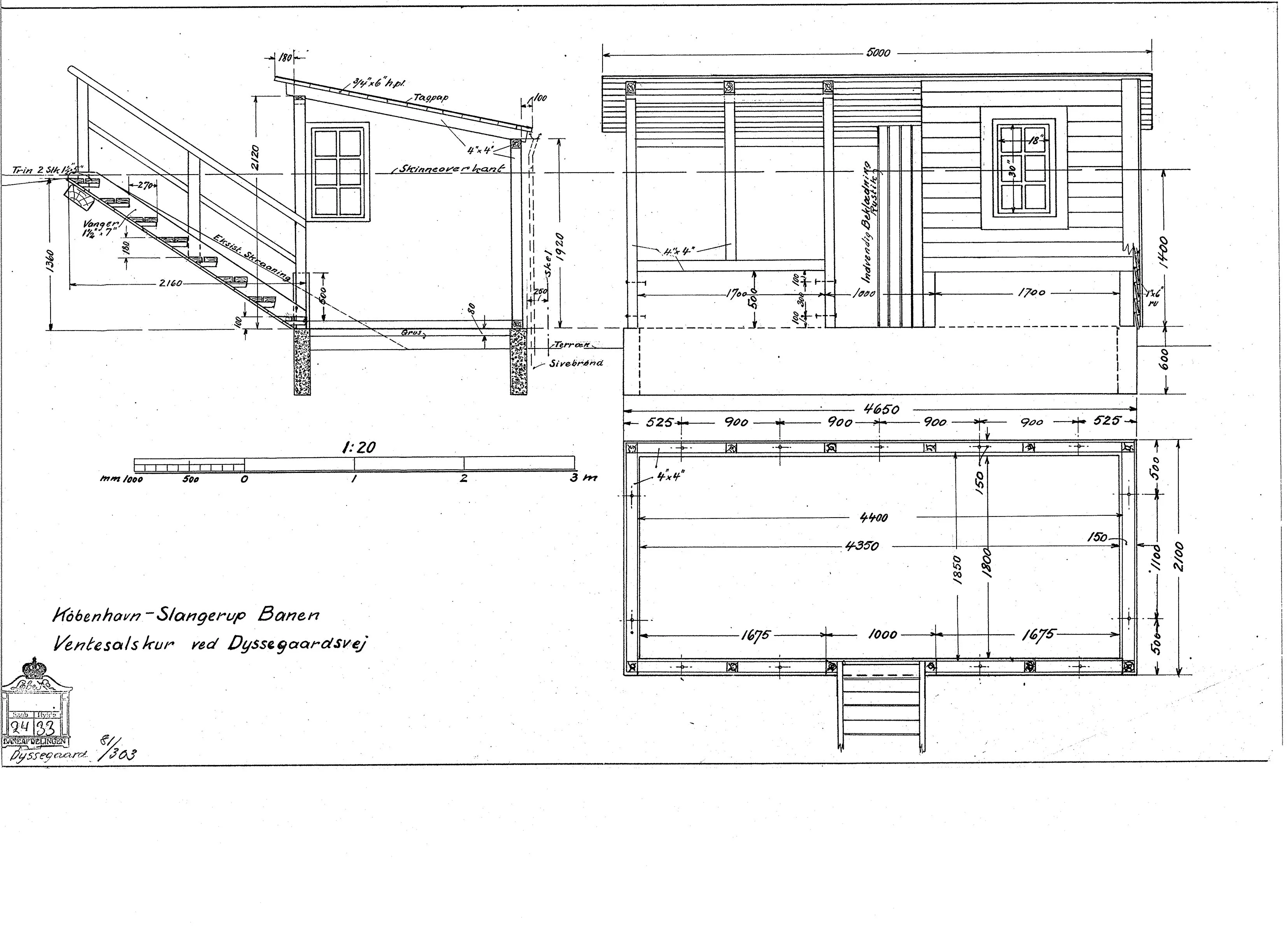
Noter til: Tegning af Ventesalsskur ved Dyssegård Trinbræt.
Transportselskab/ operatør: Slangerupbanen (KSB)
Jernbanested: Dyssegård (1.)
Navneændringer: Før 02.06.1957 Dyssegaard.
På strækningen: København - Slangerup
Beskrivelse: Ventesalsskur.
Infrastrukturejer: Aktieselskabet Slangerupbanen
Motivdato: 1931
Anslået motivdato: ca. 1931
Fotograf/ billedkunstner: ukendt
Delsamling: Ulrik T. Jensens samling
Scannummer: KSB-Dyssegaardsvej-scan27334

Kilde: Danmarks Jernbanemuseum - Dato: 1931 - LINK til kilde.
Noter til: Tegning af Dyssegård Trinbræt.
Transportselskab/ operatør: Slangerupbanen (KSB)
Jernbanested: Dyssegård (1.)
Navneændringer: Før 02.06.1957 Dyssegaard.
På strækningen: København - Slangerup
Beskrivelse: Læskur.
Infrastrukturejer: Aktieselskabet Slangerupbanen
Motivdato: 1931
Anslået motivdato: ca. 1931
Fotograf/ billedkunstner: ukendt
Delsamling: Ulrik T. Jensens samling
Scannummer: KSB-Dyssegard-scan26729

Kilde: Danmarks Jernbanemuseum - Dato: 1931 - LINK til kilde.
Noter til: Tegning af Dyssegård Trinbræt.
Transportselskab/ operatør: Slangerupbanen (KSB)
Jernbanested: Dyssegård (1.)
Navneændringer: Før 02.06.1957 Dyssegaard.
På strækningen: København - Slangerup
Beskrivelse: Læskur.
Infrastrukturejer: Aktieselskabet Slangerupbanen
Motivdato: 1931
Anslået motivdato: ca. 1931
Fotograf/ billedkunstner: ukendt
Delsamling: Ulrik T. Jensens samling
Scannummer: KSB-Dyssegard-scan26731
Google Street View af Dyssegård Trinbræt [1932-1968]
Kilde: © Street View, by Google Maps - Dato: den 26. december 2021 - LINK til kilde.
Kort over Dyssegård Trinbræt [1932-1968]
![Historisk kort over Dyssegård Trinbræt [1932-1968] Historisk kort over Dyssegård Trinbræt [1932-1968]](./kort/492_ZOOM.webp)
Kort over Dyssegård Trinbræt [1932-1968] - Kilde: Indeholder data fra Styrelsen for Dataforsyning og Effektivisering, skærmkortet, WMS-tjeneste via datafordeler.dk (Ortofoto forår)
![Historisk kort over Dyssegård Trinbræt [1932-1968] Historisk kort over Dyssegård Trinbræt [1932-1968]](./kort/492_ORTO.webp)
Kort over Dyssegård Trinbræt [1932-1968] - Kilde: Indeholder data fra Styrelsen for Dataforsyning og Effektivisering, skærmkortet, WMS-tjeneste via datafordeler.dk (Ortofoto forår)
![Historisk kort over Dyssegård Trinbræt [1932-1968] Historisk kort over Dyssegård Trinbræt [1932-1968]](./kort/492_1980.webp)
Kort over Dyssegård Trinbræt [1932-1968] - Kilde: Indeholder data fra Styrelsen for Dataforsyning og Effektivisering, skærmkortet, WMS-tjeneste via datafordeler.dk (Topgrafisk kort 1980-2001)
![Historisk kort over Dyssegård Trinbræt [1932-1968] Historisk kort over Dyssegård Trinbræt [1932-1968]](./kort/492_1953.webp)
Kort over Dyssegård Trinbræt [1932-1968] - Kilde: Indeholder data fra Styrelsen for Dataforsyning og Effektivisering, skærmkortet, WMS-tjeneste via datafordeler.dk (Topografisk kort 1953-1976)
![Historisk kort over Dyssegård Trinbræt [1932-1968] Historisk kort over Dyssegård Trinbræt [1932-1968]](./kort/492_1901.webp)
Kort over Dyssegård Trinbræt [1932-1968] - Kilde: Indeholder data fra Styrelsen for Dataforsyning og Effektivisering, skærmkortet, WMS-tjeneste via datafordeler.dk (Lave Målebordsblade 1901-1971)
Litteratur for: Dyssegård Trinbræt [1932-1968]
![]() | Bogtitel Forfatter Udgivelsesår Sidetal Udgivelsessted Forlag ISBN | KSB Kjøbenhavn - Slangerup banen P. Thomassen 1980 203 |
![]() | Bogtitel Forfatter Udgivelsesår Sidetal Udgivelsessted Forlag ISBN | KSB-DSB : Slangerupbanen - Hareskovbanen P. Thomassen 1981 182 |
![]() | Bogtitel Forfatter Udgivelsesår Sidetal Udgivelsessted Forlag ISBN | Slangerupbanen og dens materiel Ole-Chr. Munk Plum, Birger Wilche 1982 124 Dansk Jernbane-Klub 87-87050-21-8 |


