Dyssekilde Station (Dsk), en artikel om Dyssekilde Station
Stamdata for Dyssekilde Station
| Byggeår | 1916 |
| Åbnet | 1916.12.22 |
| Driftstatus | I drift |
| Status | Eksisterer stadig |
| Arkitekt | E. Ambt og A. Preisler |
| Adresse | Stationsvej 1, 3390 Hundested |
| Stednavneforkortelse | Dsk |
| Højdeplacering over havet | 18,3 meter |
| GPS koordinater | 55.985210,11.942335 |
Dyssekilde Station servicerede følgende jernbaner
| Jernbanens navn | Operatør | Længde | Åbnet | Nedlagt |
|---|---|---|---|---|
| Frederiksværk-Hundested | LT (Oprindelig: FHJ) | 13,9 | 1916.12.22 | I drift |
| Frederiksværkbanen, Hillerød-Frederiksværk-Hundested Jernbane | LT (Oprindelig: HFHJ) | 39,7 | 1897.05.31 | I drift |
BBR Data for Dyssekilde StationBBR DATA fra Danmarks Adressers Web API (DAWA), som Styrelsen for Dataforsyning og Effektivisering (SDFE) har ansvaret for.BBR DATA hentet: 2020-05-21 23:23:40 | |
| BBR Højde over havet | 18,3 meter |
| BBR GPS koordinater | 55.98520794,11.94236175 |
| BBR Byggeår eller konverteringsår | 1916 |
| BBR Seneste ombygning | 2012 |
| BBR Bebygget areal i alt | 101 m2 |
| BBR Bebygget areal hovedbygningen | 101 m2 |
| BBR Samlet erhvervsareal | 172 m2 |
| BBR Antal etager | 1 |
Banedanmarks Data for Dyssekilde StationStations DATA fra Banedanmarks Open Data: http://geodata-banedanmark.opendata.arcgis.com/Stations DATA hentet: 2020-05-16 21:22:50 | |
| Afsnits navn | Dyssekilde |
| Afsnits type | Station |
| Afsnits forkortelse | Dsk |
| Afsnits GPS koordinater | 55.98594949,11.94537679 |
Billede af Dyssekilde Station

Fotograf: Jacob Laursen - Dato: den 6. juli 2021 Download billede
Billeder af Dyssekilde Station

Fotograf: Jacob Laursen - Dato: den 6. juli 2021 Download billede

Fotograf: Jacob Laursen - Dato: den 6. juli 2021 Download billede

Fotograf: Jacob Laursen - Dato: den 6. juli 2021 Download billede

Fotograf: Jacob Laursen - Dato: den 6. juli 2021 Download billede

Fotograf: Steen Larsen - Dato: 1975 (juni)

Fotograf: Det Kgl. Bibliotek, Sylvest Jensen Luftfoto - Dato: 1953 - LINK til kilde.
Noter til: Billede af Dyssekilde Station.
Titel:- 1953 - Dyssekilde Station
Sted:Danmark, Sjælland, Melby
Vejnavn:Stationsvej
Husnummer:1
Lokalitet:Torup
Postnummer:3390
By:Hundested
Ophav:Sylvest Jensen Luftfoto
År:1953
Id:H03790_039a.tif

Fotograf: Det Kgl. Bibliotek, Sylvest Jensen Luftfoto - Dato: 1953 - LINK til kilde.
Noter til: Billede af Dyssekilde Station.
Titel:- 1953 - Dyssekilde Station
Sted:Danmark, Sjælland, Melby
Vejnavn:Stationsvej
Husnummer:1
Lokalitet:Torup
Postnummer:3390
By:Hundested
Ophav:Sylvest Jensen Luftfoto
År:1953
Id:H03790_039d.tif

Fotograf: Det Kgl. Bibliotek, Svend Andersen - Dato: 1950-1954 - LINK til kilde.
Noter til: Billede af Dyssekilde Station.
Titel:- 1950-1954 - Dyssekilde Station
Sted:Danmark, Sjælland, Hundested
Vejnavn:Stationsvej
Husnummer:1
Lokalitet:Torup
Postnummer:3390
By:Hubdested
Ophav:Svend Andersen
År:1950-1954
Id:SA00740_025.tif

Fotograf: Jacob Laursen - Dato: den 6. juli 2021 Download billede

Fotograf: Jacob Laursen - Dato: den 6. juli 2021 Download billede

Fotograf: Jacob Laursen - Dato: den 6. juli 2021 Download billede

Fotograf: Jacob Laursen - Dato: den 6. juli 2021 Download billede
Tegninger af Dyssekilde Station

Kilde: Danmarks Jernbanemuseum - Dato: 1915 (juni) - LINK til kilde.
Noter til: Tegning af Dyssekilde Stations pakhus.
Transportselskab/ operatør: Frederiksværk - Hundested Jernbane (FHJ)
Jernbanested: Frederiksværk - Hundested
På strækningen: Frederiksværk - Hundested
Beskrivelse: Varehus: *Dyssekilde, *Melby og *Hundested. Trinbræt: *Østerbjerg og *Vibehus. Sign.: E. Ambt og A. Preisler.
Infrastrukturejer: Frederiksværk - Hundested Jernbaneselskab
Motivdato: 6/1915
Delsamling: Ulrik T. Jensens samling
Scannummer: HFHJ-varehuse-trinbraet-scan27576

Kilde: Danmarks Jernbanemuseum - Dato: 1915 (juni) - LINK til kilde.
Noter til: Tegning af Dyssekilde Stations varehus.
Transportselskab/ operatør: Frederiksværk - Hundested Jernbane (FHJ)
Jernbanested: Frederiksværk - Hundested
Beskrivelse: Varehus: *Dyssekilde, *Melby og *Hundested. Trinbræt: *Østerbjerg og *Vibehus.
Infrastrukturejer: Frederiksværk - Hundested Jernbaneselskab
Motivdato: 6/1915
Fotograf/ billedkunstner: Sign.: E. Ambt og A. Preisler
Delsamling: Ulrik T. Jensens samling
Scannummer: HFHJ-varehuse-trinbraet-scan27575

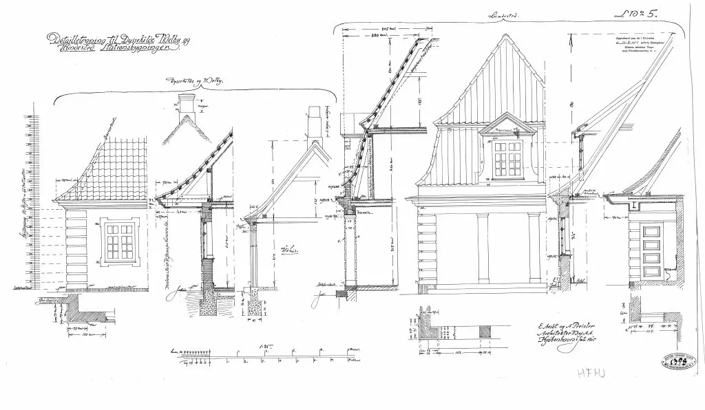
Kilde: Danmarks Jernbanemuseum - Dato: 1915 (juli) - LINK til kilde.
Noter til: Tegning af Dyssekilde Station.
Transportselskab/ operatør: Frederiksværk - Hundested Jernbane (FHJ)
Jernbanested: Frederiksværk - Hundested
På strækningen: Frederiksværk - Hundested
Beskrivelse: Stationsbygning: *Dyssekilde, *Melby og *Hundested. Sign.: E. Ambt og A. Preisler.
Infrastrukturejer: Frederiksværk - Hundested Jernbaneselskab
Motivdato: 7/1915
Delsamling: Ulrik T. Jensens samling
Scannummer: HFHJ-stationer-detaljer-scan27577

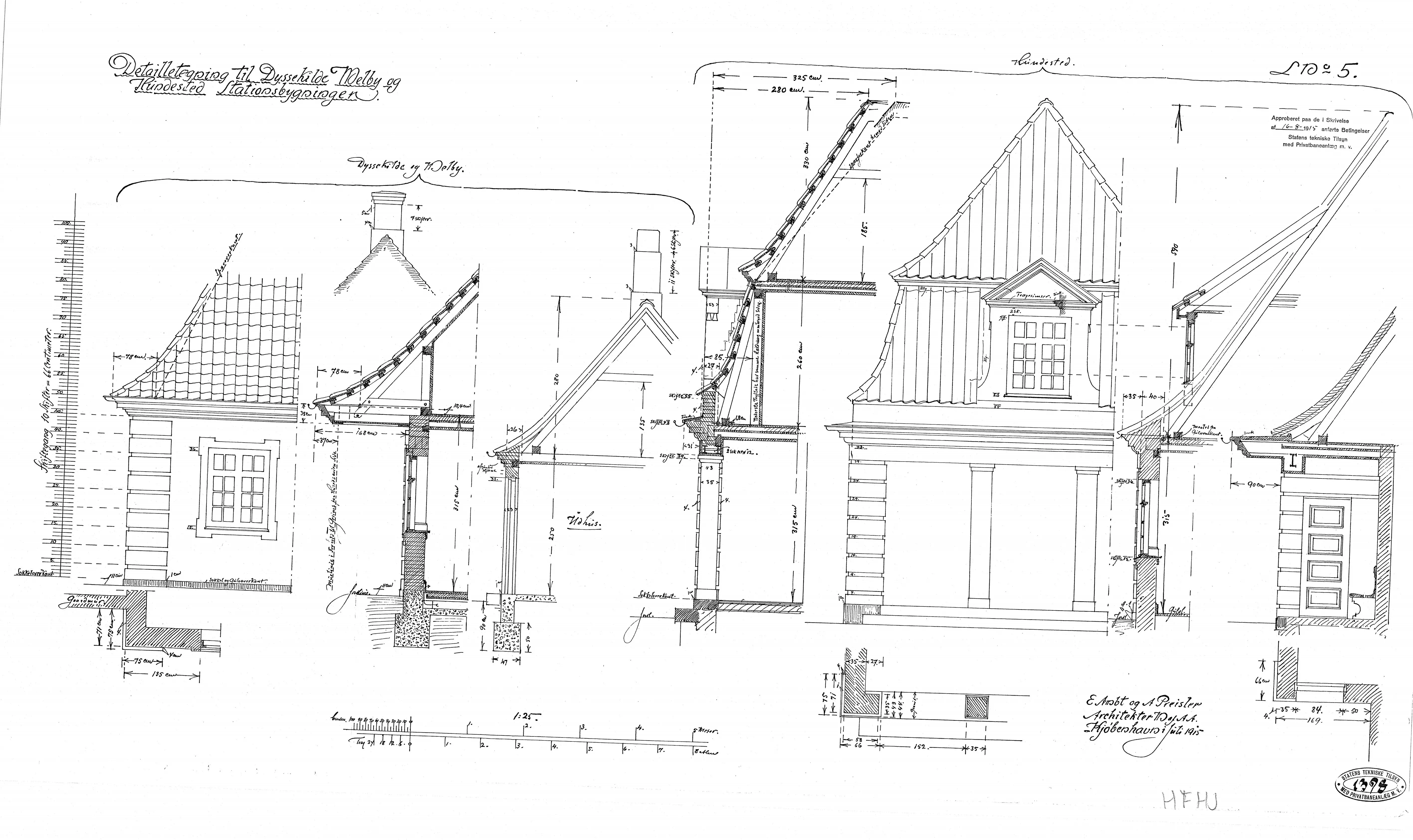
Kilde: Danmarks Jernbanemuseum - Dato: 1915 (juli) - LINK til kilde.
Noter til: Tegning af Dyssekilde Station.
Transportselskab/ operatør: Frederiksværk - Hundested Jernbane (FHJ)
Jernbanested: Frederiksværk - Hundested
Beskrivelse: Stationsbygning: *Dyssekilde, *Melby og *Hundested.
Infrastrukturejer: Frederiksværk - Hundested Jernbaneselskab
Motivdato: 7/1915
Fotograf/ billedkunstner: Sign.: E. Ambt og A. Preisler
Delsamling: Ulrik T. Jensens samling
Scannummer: HFHJ-stationer-detaljer-scan27578
Google Street View af Dyssekilde Station
Kilde: © Street View, by Google Maps - Dato: den 26. december 2021 - LINK til kilde.
Kort over Dyssekilde Station

Kort over Dyssekilde Station - Kilde: Indeholder data fra Styrelsen for Dataforsyning og Effektivisering, skærmkortet, WMS-tjeneste via datafordeler.dk (Ortofoto forår)

Kort over Dyssekilde Station - Kilde: Indeholder data fra Styrelsen for Dataforsyning og Effektivisering, skærmkortet, WMS-tjeneste via datafordeler.dk (Ortofoto forår)

Kort over Dyssekilde Station - Kilde: Indeholder data fra Styrelsen for Dataforsyning og Effektivisering, skærmkortet, WMS-tjeneste via datafordeler.dk (Topgrafisk kort 1980-2001)

Kort over Dyssekilde Station - Kilde: Indeholder data fra Styrelsen for Dataforsyning og Effektivisering, skærmkortet, WMS-tjeneste via datafordeler.dk (Topografisk kort 1953-1976)

Kort over Dyssekilde Station - Kilde: Indeholder data fra Styrelsen for Dataforsyning og Effektivisering, skærmkortet, WMS-tjeneste via datafordeler.dk (Lave Målebordsblade 1901-1971)
Litteratur for: Dyssekilde Station
![]() | Bogtitel Forfatter Udgivelsesår Sidetal Udgivelsessted Forlag ISBN | Frederiksværk-Hundested Jernbane 1916-1941 C. Kuhlman 1941 27 |
![]() | Bogtitel Forfatter Udgivelsesår Sidetal Udgivelsessted Forlag ISBN | Hillerød - Frederiksværk - Hundested Jernbane 1897-1947 (Dansk Jernbane-Klub: 32) Birger Wilcke 1972 140 Dansk Jernbane-Klub |
![]() | Bogtitel Forfatter Udgivelsesår Sidetal Udgivelsessted Forlag ISBN | Hillerød - Frederiksværk - Hundested Jernbane rullende mat. (Dansk Jernbane-Klub: 34) P. Thomassen 1973 Dansk Jernbane-Klub |
![]() | Bogtitel Forfatter Udgivelsesår Sidetal Udgivelsessted Forlag ISBN | Med tog til Hundested gennem 75 år (Dansk Jernbane-Klub: 46) Ole Chr. M. Plum & Birger Wilcke 1991 88 Dansk Jernbane-Klub 87-87050-32-3 |
![]() | Bogtitel Forfatter Udgivelsesår Sidetal Udgivelsessted Forlag ISBN | Nordsjællandske jernbaner Niels Jensen 1975 80 København J. Fr. Clausen 87-11-03671-0 |




