Helsingør Station (Hg), en artikel om Helsingør Station
Helsingør Station – Et historisk knudepunkt
Helsingør Station er en central del af Nordsjællands transportinfrastruktur og fungerer som endestation for Kystbanen mod København, Nordbanen mod Hillerød samt banen mod Hornbæk og Gilleleje. Derudover tilbyder stationen direkte adgang til færgerne, der forbinder Helsingør med Helsingborg i Sverige. Helsingør Station har gennemgået flere forandringer siden dens første åbning i 1864, men har altid spillet en afgørende rolle for både lokal og international transport.Helsingørs første station
Den første station i Helsingør blev åbnet i 1864 som endestation på Nordbanen, der strakte sig fra København til Helsingør via Hillerød. Den første station lå på vejen Trækbanen, der fik sit navn fra en hestetrukken skinnebane, der transporterede gods fra stationen til havnen og værftet. Denne skinnebane spillede en vigtig rolle i at lette transporten af varer til og fra byen, og banegården blev hurtigt et vigtigt trafikknudepunkt i Helsingør.Stationen på Trækbanen fungerede frem til 1891, hvor behovet for en ny og mere effektiv station, der bedre kunne håndtere færgetrafikken til Helsingborg, blev tydeligt.
Flytning til den nuværende placering
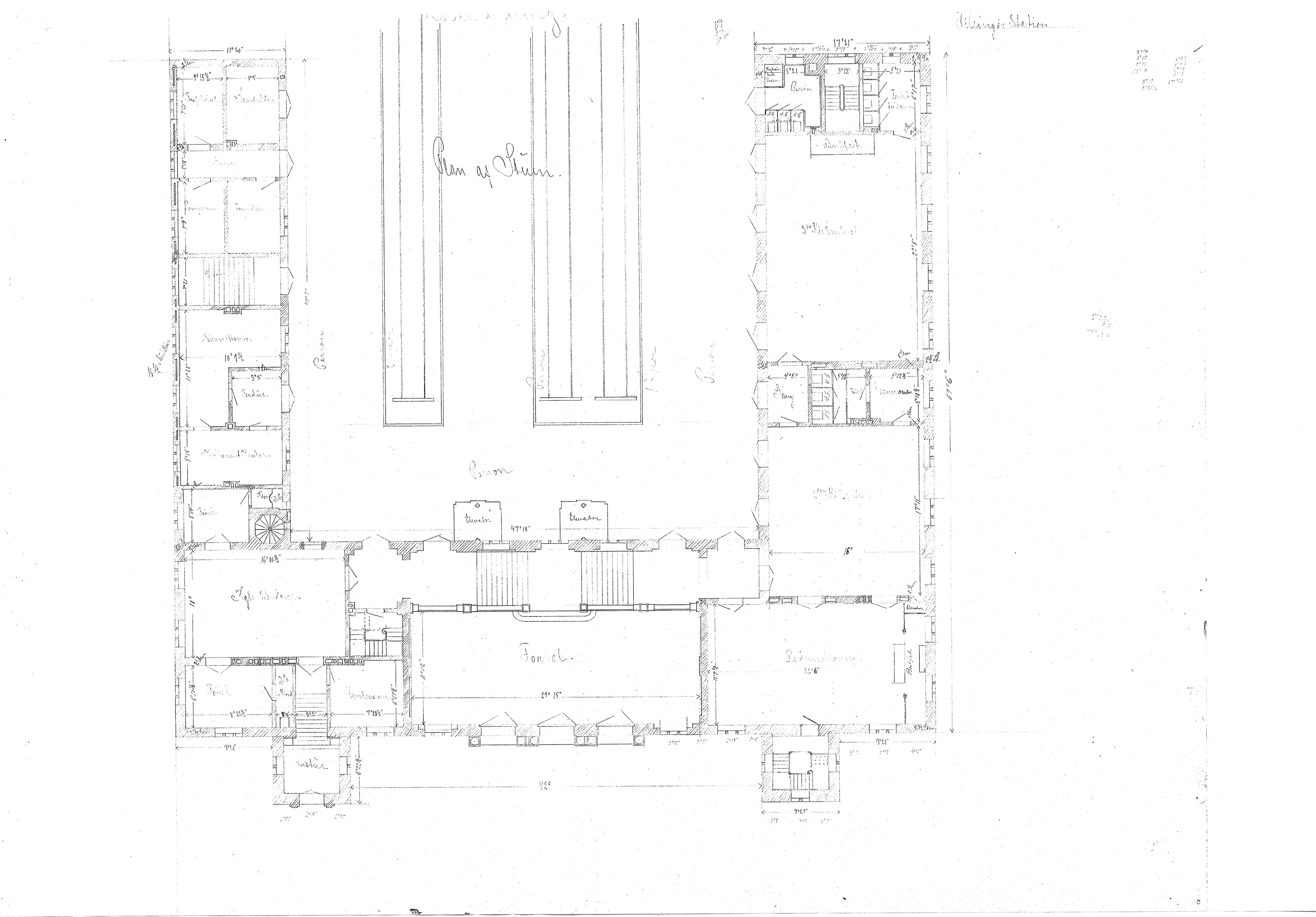
I 1891 blev Helsingørs jernbanespor lagt om, og en ny og moderne station blev opført ved Helsingør Havn. Denne nye placering gjorde det muligt at skabe en mere direkte forbindelse mellem togtrafikken og færgerne, hvilket især var vigtigt for de rejsende mellem Danmark og Sverige. Den nye banegård, som stadig bruges i dag, blev officielt taget i brug den 24. oktober 1891.Den nye station var bemærkelsesværdig både i sin arkitektur og sin tekniske konstruktion. Bygningen hviler på omkring 1600 pæle, som er hamret ned i havbunden for at skabe et solidt fundament. Stationsbygningen er tegnet af de anerkendte arkitekter N.P.C. Holsøe og Heinrich Wenck og er bygget i "Rosenborg-stil", en nyfortolkning af renæssancestilen.
Kystbanen og Helsingør-Hornbæk-Gilleleje Banen
Den 2. august 1897 blev Helsingør endestation for Kystbanen, der forbinder København og Helsingør langs Øresundskysten. Denne bane blev hurtigt en af de mest populære ruter for både pendlere og turister, der ønskede at rejse mellem de to byer med en smuk udsigt over Øresund.I 1906 åbnede Helsingør-Hornbæk-Gilleleje Banen, der dog oprindeligt havde endestation på Grønnehave Station i den nordlige del af Helsingør. Fra 1908 blev togene på denne bane dog videreført til Helsingør Station, hvilket gjorde stationen endnu mere central for transport i regionen.
Restaurering og fredning
Helsingør Station har gennemgået flere større restaureringer, hvoraf den mest omfattende blev indledt af DSB i 1984. Formålet var at genskabe stationens oprindelige pragt og ornamentik. Dette inkluderede blandt andet nye flisegulve i de originale mønstre samt restaurering af væg- og loftudsmykningen i forhallen. I 1987 blev stationen kåret som Årets Hus i Helsingør, og i 1990 blev den fredet, hvilket sikrer, at den vil blive bevaret for eftertiden.Færgeterminalen og jernbanevogne
En af de mest unikke træk ved Helsingør Station var dens forbindelse til færgeterminalen, hvor jernbanevogne blev overført mellem Helsingør og Helsingborg. Denne praksis fortsatte frem til 1990'erne, hvor personvogne, der holdt på de østlige spor på Helsingør Station, blev skubbet om bord på færgerne af et rangerlokomotiv. Trafikken på Havnevej blev midlertidigt lukket, når vognene blev kørt om bord, og en lignende procedure fandt sted på den svenske side i Helsingborg.Denne jernbanefærgeforbindelse var en vigtig del af den internationale trafik mellem Danmark og Sverige og blev brugt af både passagerer og gods. Selvom jernbaneforbindelsen over Øresund nu foregår via Øresundsbroen, var denne færgeforbindelse en vigtig brik i den nordiske infrastruktur i mange årtier.
Arkitektoniske detaljer og kongelig ventesal
Helsingør Stations bygning er ikke kun kendt for sin tekniske konstruktion, men også for dens arkitektoniske skønhed. En af de mest bemærkelsesværdige træk er den overdådige forhal og de kongelige ventesale, som er indrettet i de lokaler, der i dag huser en restaurant med udsigt over Øresund. Den originale indretning, herunder ornamentik og loftsmalerier, er blevet omhyggeligt restaureret, hvilket har bevaret stationens historiske charme og elegance.Moderne faciliteter
Selvom Helsingør Station er en historisk bygning, er den også en moderne station med faciliteter, der passer til nutidens rejsende. Inde i stationsbygningen finder man en DSB 7-Eleven, hvor passagerer kan købe mad og drikke til rejsen. Stationens forplads har en taxiholdeplads, og der er direkte adgang til færgeterminalen samt busser fra Movias busnetværk. Den moderne færgeterminal, som blev opført i 1991, er udsmykket af kunstneren Bjørn Nørgaard og fortsætter med at betjene færgerne mellem Helsingør og Helsingborg.Stamdata for Helsingør Station
| Byggeår | 1891 |
| Åbnet | 1891.10.24 |
| Driftstatus | I drift |
| Status | Eksisterer stadig |
| Arkitekt | N.P.C. Holsøe |
| Adresse | Stationspladsen 2, 3000 Helsingør |
| Stednavneforkortelse | Hg |
| Højdeplacering over havet | 2,5 meter |
| GPS koordinater | 56.033538,12.614508 |
Oversigt over andre stationer fra Helsingør
| Foto | Stationens navn | Beskrivelse |
|---|---|---|
| Helsingør Station (Hg) | Helsingør Station – Et historisk knudepunktHelsingør Station... | |
| Helsingør Banegård (Hg) [1864-1891] | Helsingør Banegård [1864-1891]Helsingør Banegård har en vigt... |
Helsingør Station servicerede følgende jernbaner
| Jernbanens navn | Operatør | Længde | Åbnet | Nedlagt |
|---|---|---|---|---|
| Hillerød-Helsingør, Lille Nord Jernbane | LT (Oprindelig: DSB) | 24,4 | 1864.07.08 | I drift |
| Hornbækbanen, Helsingør-Hornbæk-Gilleleje Banen | LT (Oprindelig: HHGB) | 24,9 | 1906.05.22 (Helsingør-Hornbæk) og 1916.07.10 (Hornbæk-Gilleleje) | I drift |
| København-Helsingør (Den sjællandske Kystbane) | DSB | 46,2 | 1897.08.02 | I drift |
BBR Data for Helsingør StationBBR DATA fra Danmarks Adressers Web API (DAWA), som Styrelsen for Dataforsyning og Effektivisering (SDFE) har ansvaret for.BBR DATA hentet: 2022-05-19 19:27:06 | |
| BBR Højde over havet | 2,5 meter |
| BBR GPS koordinater | 56.03353912,12.61453267 |
| BBR Byggeår eller konverteringsår | 1892 |
| BBR Seneste ombygning | 1994 |
| BBR Bebygget areal i alt | 1961 m2 |
| BBR Bebygget areal hovedbygningen | 1192 m2 |
| BBR Samlet erhvervsareal | 4061 m2 |
| BBR Antal etager | 2 |
| BBR Fredningskode og type | 7 - Som 6, men med tinglyst bevaringsdeklaration |
Banedanmarks Data for Helsingør StationStations DATA fra Banedanmarks Open Data: http://geodata-banedanmark.opendata.arcgis.com/Stations DATA hentet: 2020-05-16 21:22:50 | |
| Afsnits navn | Helsingør |
| Afsnits type | Station |
| Afsnits forkortelse | Hg |
| Afsnits GPS koordinater | 56.03325253,12.61413438 |
Gamle film fra Helsingør Station
Kilde: Filmcentralen (Det Danske Filminstitut) - Dato: den 25. juli 1926 - LINK til kilde.
Noter til: Film fra Helsingør Banegård, hvor Sporvejsfunktionærernes Musikforening er tager på udflugt til Helsingør.
1926, Grønnehavevej 29, Helsingør, 2:37 min., Stum
Sporvejsfunktionærernes Musikforening tager på udflugt til Helsingør d. 25. juli 1926. De mange medlemmer ankommer med toget til Helsingør Station. Derefter går turen til festpladsen Grønnehaven, hvor musikken spiller, og de unge danser til trods for det dårlige vejr. Om eftermiddagen kører foreningen med tog til Hellebæk, og dernæst går turen hjem.
Film fra Helsingør Banegård, hvor en morsom ide er Hornbækbanens rullende bondehus (motortog), som i juli og august fragter gæster fra kystens badesteder til jubilæumsbyen
Kilde: Filmcentralen (Det Danske Filminstitut) - Dato: 1926 - LINK til kilde.
Noter til: Film fra Helsingør Banegård, hvor en morsom ide er Hornbækbanens rullende bondehus (motortog), som i juli og august fragter gæster fra kystens badesteder til jubilæumsbyen
1926, Helsingør Station, 1:09 min., Stum
Med tog, dampskib og færge strømmer tusinder og atter tusinder af gæster fra ind- og udland til Helsingør i forbindelse med jubilæumsfestlighederne. En morsom ide er Hornbækbanens rullende bondehus (motortog), som i juli og august fragter gæster fra kystens badesteder til jubilæumsbyen, der er smykket til fest.
Billeder af Helsingør Station

Fotograf: Jacob Laursen - Dato: den 22. april 2020 Download billede

Fotograf: Jacob Laursen - Dato: den 22. april 2020 Download billede

Fotograf: Jacob Laursen - Dato: den 22. april 2020 Download billede

Fotograf: Jacob Laursen - Dato: den 22. april 2020 Download billede

Fotograf: Jacob Laursen - Dato: den 22. april 2020 Download billede

Fotograf: Jacob Laursen - Dato: den 22. april 2020 Download billede

Fotograf: Jacob Laursen - Dato: den 22. april 2020 Download billede

Fotograf: Jacob Laursen - Dato: den 22. april 2020 Download billede

Fotograf: Jacob Laursen - Dato: den 22. april 2020 Download billede

Fotograf: Jacob Laursen - Dato: den 22. april 2020 Download billede

Fotograf: Jacob Laursen - Dato: den 22. april 2020 Download billede

Fotograf: Det Kgl. Bibliotek, Sylvest Jensen Luftfoto - Dato: 1970-1986 - LINK til kilde.
Noter til: Billede af Helsingør Banegård.
Titel:- 1970 - 1986 - Helsingør Station
Bygningsnavn:Helsingør Færgeleje
Sted:Danmark, Sjælland, Helsingør
Vejnavn:Stationspladsen
Husnummer:2
Postnummer:3000
By:Helsingør
Ophav:Sylvest Jensen Luftfoto
År:1970-1986
Id:F00150_003.tif

Fotograf: Det Kgl. Bibliotek, Sylvest Jensen Luftfoto - Dato: 1970-1986 - LINK til kilde.
Noter til: Billede af Helsingør Banegård.
Titel:Helsingør Færgeleje
Bygningsnavn:Helsingør Færgeleje
Sted:Danmark, Sjælland, Helsingør
Ophav:Sylvest Jensen Luftfoto
År:1970-1986
Id:F00150_002.tif

Fotograf: Det Kgl. Bibliotek, Sylvest Jensen Luftfoto - Dato: 1970-1986 - LINK til kilde.
Noter til: Billede af Helsingør Banegård.
Titel:Helsingør Færgeleje
Bygningsnavn:Helsingør Færgeleje
Sted:Danmark, Sjælland, Helsingør
Ophav:Sylvest Jensen Luftfoto
År:1970-1986
Id:F00150_001.tif

Fotograf: Det Kgl. Bibliotek, Hammer Luftfoto - Dato: 1962 - LINK til kilde.
Noter til: Billede af Helsingør Banegård.
Titel:- 1962 - Helsingør Station
Bygningsnavn:Helsingør By med Kronborg
Sted:Danmark, Sjælland, Helsingør
Vejnavn:Stationspladsen
Husnummer:2
Postnummer:3000
By:Helsingør
Ophav:Hammer Luftfoto
År:1962
Id:HAM196203_002.tif

Fotograf: Det Kgl. Bibliotek, Nowico - Dato: 1956 - LINK til kilde.
Noter til: Billede af Helsingør Banegård.
Titel:- 1956 - Helsingør Station
Bygningsnavn:Helsingør Jernbanestation
Sted:Danmark, Sjælland, Helsingør
Vejnavn:Stationspladsen
Husnummer:2
Postnummer:3000
By:Helsingør
Ophav:Nowico
År:1956
Id:NO-2393a_01.tif

Fotograf: Det Kgl. Bibliotek, Sylvest Jensen Luftfoto - Dato: 1946-1969 - LINK til kilde.
Noter til: Billede af Helsingør Banegård.
Titel:- 1946 - 1969 - Helsingør havn og station
Bygningsnavn:Helsingør havn
Sted:Danmark, Sjælland, Helsingør
Postnummer:3000
By:Helsingør
Ophav:Sylvest Jensen Luftfoto
År:1946-1969
Id:sylvest_nks_02937.tif

Fotograf: Det Kgl. Bibliotek, Nowico - Dato: 1936 - LINK til kilde.
Noter til: Billede af Helsingør Banegård.
Titel:- 1936 - Helsingør Station
Sted:Danmark, Sjælland, Helsingør
Vejnavn:Stationspladsen
Husnummer:2
Postnummer:3000
By:Helsingør
Ophav:Nowico
År:1936
Id:NO-1062_01.tif

Fotograf: Det Kgl. Bibliotek, Nordisk Luftfoto - Dato: 1928-1933 - LINK til kilde.
Noter til: Billede af Helsingør Banegård.
Titel:- 1928-1933 -
Sted:Danmark, Sjælland, Helsingør
Ophav:Nordisk Luftfoto
År:1928-1933
Id:NL64551_001.tif

Fotograf: Jacob Laursen - Dato: den 22. april 2020 Download billede

Fotograf: Jacob Laursen - Dato: den 22. april 2020 Download billede

Fotograf: Jacob Laursen - Dato: den 22. april 2020 Download billede

Fotograf: Jacob Laursen - Dato: den 22. april 2020 Download billede

Fotograf: Jacob Laursen - Dato: den 22. april 2020 Download billede

Fotograf: Jacob Laursen - Dato: den 22. april 2020 Download billede

Fotograf: Jacob Laursen - Dato: den 22. april 2020 Download billede

Fotograf: Jacob Laursen - Dato: den 22. april 2020 Download billede

Fotograf: Jacob Laursen - Dato: den 22. april 2020 Download billede

Fotograf: Jacob Laursen - Dato: den 22. april 2020 Download billede

Fotograf: Jacob Laursen - Dato: den 22. april 2020 Download billede

Fotograf: Jacob Laursen - Dato: den 22. april 2020 Download billede

Fotograf: Jacob Laursen - Dato: den 22. april 2020 Download billede

Fotograf: Jacob Laursen - Dato: den 22. april 2020 Download billede

Fotograf: Jacob Laursen - Dato: den 22. april 2020 Download billede

Fotograf: Jacob Laursen - Dato: den 22. april 2020 Download billede

Fotograf: Jacob Laursen - Dato: den 22. april 2020 Download billede

Fotograf: Jacob Laursen - Dato: den 22. april 2020 Download billede

Fotograf: Jacob Laursen - Dato: den 22. april 2020 Download billede

Fotograf: Jacob Laursen - Dato: den 22. april 2020 Download billede

Fotograf: Jacob Laursen - Dato: den 22. april 2020 Download billede

Fotograf: Jacob Laursen - Dato: den 22. april 2020 Download billede

Fotograf: Jacob Laursen - Dato: den 22. april 2020 Download billede

Fotograf: Jacob Laursen - Dato: den 22. april 2020 Download billede

Fotograf: Jacob Laursen - Dato: den 22. april 2020 Download billede

Fotograf: Jacob Laursen - Dato: den 22. april 2020 Download billede

Fotograf: Jacob Laursen - Dato: den 22. april 2020 Download billede

Fotograf: Jacob Laursen - Dato: den 22. april 2020 Download billede

Fotograf: Jacob Laursen - Dato: den 22. april 2020 Download billede

Fotograf: Jacob Laursen - Dato: den 22. april 2020 Download billede

Fotograf: Jacob Laursen - Dato: den 22. april 2020 Download billede

Fotograf: Jacob Laursen - Dato: den 22. april 2020 Download billede

Fotograf: Jacob Laursen - Dato: den 22. april 2020 Download billede

Fotograf: Jacob Laursen - Dato: den 22. april 2020 Download billede

Fotograf: Jacob Laursen - Dato: den 22. april 2020 Download billede

Fotograf: Jacob Laursen - Dato: den 22. april 2020 Download billede

Fotograf: Jacob Laursen - Dato: den 22. april 2020 Download billede

Fotograf: Jacob Laursen - Dato: den 22. april 2020 Download billede

Fotograf: Jacob Laursen - Dato: den 22. april 2020 Download billede

Fotograf: Jacob Laursen - Dato: den 22. april 2020 Download billede

Fotograf: Jacob Laursen - Dato: den 22. april 2020 Download billede

Fotograf: Jacob Laursen - Dato: den 22. april 2020 Download billede

Fotograf: Jacob Laursen - Dato: den 22. april 2020 Download billede

Fotograf: Jacob Laursen - Dato: den 22. april 2020 Download billede

Fotograf: Jacob Laursen - Dato: den 22. april 2020 Download billede

Fotograf: Jacob Laursen - Dato: den 22. april 2020 Download billede

Fotograf: Jacob Laursen - Dato: den 22. april 2020 Download billede

Fotograf: Jacob Laursen - Dato: den 22. april 2020 Download billede

Fotograf: Jacob Laursen - Dato: den 22. april 2020 Download billede

Fotograf: Jacob Laursen - Dato: den 22. april 2020 Download billede

Fotograf: Jacob Laursen - Dato: den 22. april 2020 Download billede

Fotograf: Jacob Laursen - Dato: den 22. april 2020 Download billede

Fotograf: Jacob Laursen - Dato: den 22. april 2020 Download billede

Fotograf: Jacob Laursen - Dato: den 22. april 2020 Download billede

Fotograf: Jacob Laursen - Dato: den 22. april 2020 Download billede

Fotograf: Jacob Laursen - Dato: den 22. april 2020 Download billede

Fotograf: Jacob Laursen - Dato: den 22. april 2020 Download billede

Fotograf: Jacob Laursen - Dato: den 22. april 2020 Download billede

Fotograf: Jacob Laursen - Dato: den 22. april 2020 Download billede

Fotograf: Jacob Laursen - Dato: den 22. april 2020 Download billede

Fotograf: Jacob Laursen - Dato: den 22. april 2020 Download billede
Tegninger af Helsingør Station

Kilde: Danmarks Jernbanemuseum - Dato: Ukendt - LINK til kilde.
Noter til: Tegning af Hytte for kularbejdere ved Helsingør Banegård.
Transportselskab/ operatør: De danske Statsbaner (DSB)
Jernbanested: Helsingør (2.)
På strækningen: Lyngby - Helsingør
Beskrivelse: Hytte for kularbejdere.
Infrastrukturejer: De danske Statsbaner
Anslået motivdato: u.a.
Fotograf/ billedkunstner: ukendt
Delsamling: Ulrik T. Jensens samling
Scannummer: DSB-Helsingor-hytte-scan22539

Kilde: Danmarks Jernbanemuseum - Dato: Ukendt - LINK til kilde.
Noter til: Tegning af Helsingør Banegård.
Transportselskab/ operatør: Statsbaneanlægene (DSB)
Jernbanested: Helsingør (2.)
På strækningen: Lyngby - Helsingør
Beskrivelse: Stationsbygning.
Infrastrukturejer: Statsbanedriften
Anslået motivdato: u.a.
Fotograf/ billedkunstner: ukendt
Delsamling: Ulrik T. Jensens samling
Scannummer: DSB-Helsingor-facede-front-scan826

Kilde: Danmarks Jernbanemuseum - Dato: Ukendt - LINK til kilde.
Noter til: Tegning af Helsingør Banegård.
Transportselskab/ operatør: Statsbaneanlægene (DSB)
Jernbanested: Helsingør (2.)
På strækningen: Lyngby - Helsingør
Beskrivelse: Stationsbygning.
Infrastrukturejer: Statsbanedriften
Anslået motivdato: u.a.
Fotograf/ billedkunstner: ukendt
Delsamling: Ulrik T. Jensens samling
Scannummer: DSB-Helsingor-plan-scan22538

Kilde: Danmarks Jernbanemuseum - Dato: Ukendt - LINK til kilde.
Noter til: Tegning af Helsingør Banegård.
Transportselskab/ operatør: Statsbaneanlægene (DSB)
Jernbanested: Helsingør (2.)
På strækningen: Lyngby - Helsingør
Beskrivelse: Stationsbygning.
Infrastrukturejer: Statsbanedriften
Anslået motivdato: u.a.
Fotograf/ billedkunstner: ukendt
Delsamling: Ulrik T. Jensens samling
Scannummer: DSB-Helsingor-plan-scan22540

Kilde: Danmarks Jernbanemuseum - Dato: Ukendt - LINK til kilde.
Noter til: Tegning af Helsingør Banegård.
Transportselskab/ operatør: Statsbaneanlægene (DSB)
Jernbanested: Helsingør (2.)
På strækningen: Lyngby - Helsingør
Beskrivelse: Stationsbygning.
Infrastrukturejer: Statsbanedriften
Anslået motivdato: u.a.
Fotograf/ billedkunstner: ukendt
Delsamling: Ulrik T. Jensens samling
Scannummer: DSB-Helsingor-opstalt-scan27327

Kilde: Danmarks Jernbanemuseum - Dato: Ukendt - LINK til kilde.
Noter til: Tegning af Helsingør Banegård.
Transportselskab/ operatør: Statsbaneanlægene (DSB)
Jernbanested: Helsingør (2.)
På strækningen: Lyngby - Helsingør
Beskrivelse: Stationsbygning.
Infrastrukturejer: Statsbanedriften
Anslået motivdato: u.a.
Fotograf/ billedkunstner: ukendt
Delsamling: Ulrik T. Jensens samling
Scannummer: DSB-Helsingor-opstalt-hbyg-scan332

Kilde: Danmarks Jernbanemuseum - Dato: Ukendt - LINK til kilde.
Noter til: Tegning af Helsingør Banegård.
Transportselskab/ operatør: Statsbaneanlægene (DSB)
Jernbanested: Helsingør (2.)
På strækningen: Lyngby - Helsingør
Beskrivelse: Stationsbygning.
Infrastrukturejer: Statsbanedriften
Anslået motivdato: u.a.
Fotograf/ billedkunstner: ukendt
Delsamling: Ulrik T. Jensens samling
Scannummer: DSB-Helsingor-opstalt-hbyg-scan333

Kilde: Danmarks Jernbanemuseum - Dato: Ukendt - LINK til kilde.
Noter til: Tegning af Helsingør Banegård.
Transportselskab/ operatør: Statsbaneanlægene (DSB)
Jernbanested: Helsingør (2.)
På strækningen: Lyngby - Helsingør
Beskrivelse: Stationsbygning.
Infrastrukturejer: Statsbanedriften
Anslået motivdato: u.a.
Fotograf/ billedkunstner: ukendt
Delsamling: Ulrik T. Jensens samling
Scannummer: DSB-Helsingor-scan608

Kilde: Danmarks Jernbanemuseum - Dato: 4. jul. 1896 - LINK til kilde.
Noter til: Tegning af Udvidelse af varehuset af Helsingør Banegård.
Transportselskab/ operatør: Statsbaneanlægene (DSB)
Jernbanested: Helsingør (2.)
På strækningen: Lyngby - Helsingør
Beskrivelse: Udvidelse af varehuset.
Infrastrukturejer: Statsbanedriften
Motivdato: 4. jul. 1896
Fotograf/ billedkunstner: Sign.: Fr. Seemann
Delsamling: Ulrik T. Jensens samling
Scannummer: DSB-Helsingor-udv-varehus-scan334

Kilde: Danmarks Jernbanemuseum - Dato: 20. sep. 1890 - LINK til kilde.
Noter til: Tegning af Staldbygning ved Helsingør Banegård.
Transportselskab/ operatør: Statsbaneanlægene (DSB)
Jernbanested: Helsingør (2.)
På strækningen: Lyngby - Helsingør
Beskrivelse: Staldbygning.
Infrastrukturejer: Statsbanedriften
Motivdato: 20. sep. 1890
Fotograf/ billedkunstner: Sign.: Chr. Holsøe
Delsamling: Ulrik T. Jensens samling
Scannummer: DSB-helsingor-stald-scan28407

Kilde: Danmarks Jernbanemuseum - Dato: 20. sep. 1890 - LINK til kilde.
Noter til: Tegning af Helsingør Banegårds remise.
Transportselskab/ operatør: Statsbaneanlægene (DSB)
Jernbanested: Helsingør (2.)
På strækningen: Lyngby - Helsingør
Beskrivelse: Lokomotivremise.
Infrastrukturejer: Statsbanedriften
Motivdato: 20. sep. 1890
Fotograf/ billedkunstner: Sign.: Chr. Holsøe
Delsamling: Ulrik T. Jensens samling
Scannummer: DSB-helsingor-remise-scan28409

Kilde: Danmarks Jernbanemuseum - Dato: 20. sep. 1890 - LINK til kilde.
Noter til: Tegning af Helsingør Banegårds varehus.
Transportselskab/ operatør: Statsbaneanlægene (DSB)
Jernbanested: Helsingør (2.)
På strækningen: Lyngby - Helsingør
Beskrivelse: Varehus.
Infrastrukturejer: Statsbanedriften
Motivdato: 20. sep. 1890
Fotograf/ billedkunstner: Sign.: Chr. Holsøe
Delsamling: Ulrik T. Jensens samling
Scannummer: DSB-helsingor-varehus-scan28405

Kilde: Danmarks Jernbanemuseum - Dato: 20. sep. 1890 - LINK til kilde.
Noter til: Tegning af Staldbygning ved Helsingør Banegård.
Transportselskab/ operatør: Statsbaneanlægene (DSB)
Jernbanested: Helsingør (2.)
På strækningen: Lyngby - Helsingør
Beskrivelse: Staldbygning.
Infrastrukturejer: Statsbanedriften
Motivdato: 20. sep. 1890
Fotograf/ billedkunstner: Sign.: N.P.C. Holsøe
Delsamling: Ulrik T. Jensens samling
Scannummer: DSB-Helsingør-staldbygning-scan518

Kilde: Danmarks Jernbanemuseum - Dato: 1896 (februar) - LINK til kilde.
Noter til: Tegning af Helsingør Banegårds remise.
Transportselskab/ operatør: Statsbanedriften (DSB)
Jernbanested: Helsingør (2.)
På strækningen: Lyngby - Helsingør
Beskrivelse: Lokomotivremise Helsingør og Østerbro.
Infrastrukturejer: Statsbanedriften
Motivdato: 2/1896
Delsamling: Ulrik T. Jensens samling
Scannummer: DSB-Helsingor-remise-scan28118

Kilde: Danmarks Jernbanemuseum - Dato: 1892 - LINK til kilde.
Noter til: Tegning af Ilgodsbygning ved Helsingør Banegård.
Transportselskab/ operatør: Statsbaneanlægene (DSB)
Jernbanested: Helsingør (2.)
På strækningen: Lyngby - Helsingør
Beskrivelse: Ilgodsbygning.
Infrastrukturejer: Statsbanedriften
Motivdato: 1892
Fotograf/ billedkunstner: ukendt
Delsamling: Ulrik T. Jensens samling
Scannummer: DSB-Helsingor-ilgodspakhus-scan27330

Kilde: Danmarks Jernbanemuseum - Dato: 1891 - LINK til kilde.
Noter til: Tegning af Toldklareringsbygning ved Helsingør Banegård.
Transportselskab/ operatør: Statsbaneanlægene (DSB)
Jernbanested: Helsingør (2.)
På strækningen: Helsingør - Helsingborg (skib/jernbanefærge)
Beskrivelse: Toldklareringsbygning.
Infrastrukturejer: Statsbanedriften
Motivdato: 1891
Fotograf/ billedkunstner: ukendt
Delsamling: Ulrik T. Jensens samling
Scannummer: DSB-Helsingor-toldbygning-scan27318

Kilde: Danmarks Jernbanemuseum - Dato: den 20. september 1890 - LINK til kilde.
Noter til: Tegning af Hytte og folkeretirade ved Helsingør Banegård.
Transportselskab/ operatør: Statsbaneanlægene (DSB)
Jernbanested: Helsingør (2.)
På strækningen: Lyngby - Helsingør
Beskrivelse: Hytte og folkeretirade.
Infrastrukturejer: Statsbanedriften
Motivdato: 20. sep. 1890
Fotograf/ billedkunstner: Sign.: N.P.C. Holsøe
Delsamling: Ulrik T. Jensens samling
Scannummer: DSB-Helsingør-hytte-og-folkeretirade-scan516

Kilde: Danmarks Jernbanemuseum - Dato: den 20. september 1890 - LINK til kilde.
Noter til: Tegning af Opstaldningsskur ved Helsingør Banegård.
Transportselskab/ operatør: Statsbaneanlægene (DSB)
Jernbanested: Helsingør (2.)
På strækningen: Lyngby - Helsingør
Beskrivelse: Opstaldningsskur.
Infrastrukturejer: Statsbanedriften
Motivdato: 20. sep. 1890
Fotograf/ billedkunstner: Sign.: N.P.C. Holsøe
Delsamling: Ulrik T. Jensens samling
Scannummer: DSB-Helsingør-opstaldningsskur-scan486

Kilde: Danmarks Jernbanemuseum - Dato: 1890 - LINK til kilde.
Noter til: Tegning af Helsingør Banegård.
Transportselskab/ operatør: Statsbaneanlægene (DSB)
Jernbanested: Helsingør (2.)
På strækningen: Lyngby - Helsingør
Beskrivelse: Stationsbygning.
Infrastrukturejer: Statsbanedriften
Motivdato: 1890
Fotograf/ billedkunstner: ukendt
Delsamling: Ulrik T. Jensens samling
Scannummer: DSB-tvarsnit-scan28401

Kilde: Danmarks Jernbanemuseum - Dato: 1890 - LINK til kilde.
Noter til: Tegning af Helsingør Banegård.
Transportselskab/ operatør: Statsbaneanlægene (DSB)
Jernbanested: Helsingør (2.)
På strækningen: Lyngby - Helsingør
Beskrivelse: Stationsbygning.
Infrastrukturejer: Statsbanedriften
Motivdato: 1890
Fotograf/ billedkunstner: ukendt
Delsamling: Ulrik T. Jensens samling
Scannummer: DSB-helsingor-bagfacade-scan28394

Kilde: Danmarks Jernbanemuseum - Dato: 1890 - LINK til kilde.
Noter til: Tegning af Helsingør Banegård.
Transportselskab/ operatør: Statsbaneanlægene (DSB)
Jernbanested: Helsingør (2.)
På strækningen: Lyngby - Helsingør
Beskrivelse: Stationsbygning.
Infrastrukturejer: Statsbanedriften
Motivdato: 1890
Fotograf/ billedkunstner: ukendt
Delsamling: Ulrik T. Jensens samling
Scannummer: DSB-helsingor-facade-soen-scan28397

Kilde: Danmarks Jernbanemuseum - Dato: 1890 - LINK til kilde.
Noter til: Tegning af Helsingør Banegård.
Transportselskab/ operatør: Statsbaneanlægene (DSB)
Jernbanested: Helsingør (2.)
På strækningen: Lyngby - Helsingør
Beskrivelse: Stationsbygning.
Infrastrukturejer: Statsbanedriften
Motivdato: 1890
Fotograf/ billedkunstner: ukendt
Delsamling: Ulrik T. Jensens samling
Scannummer: DSB-helsingor-forfacade-scan28399

Kilde: Danmarks Jernbanemuseum - Dato: 1890 - LINK til kilde.
Noter til: Tegning af Helsingør Banegård.
Transportselskab/ operatør: Statsbaneanlægene (DSB)
Jernbanested: Helsingør (2.)
På strækningen: Lyngby - Helsingør
Beskrivelse: Stationsbygning.
Infrastrukturejer: Statsbanedriften
Motivdato: 1890
Fotograf/ billedkunstner: ukendt
Delsamling: Ulrik T. Jensens samling
Scannummer: DSB-helsingor-langdesnit-scan28393

Kilde: Danmarks Jernbanemuseum - Dato: 1890 - LINK til kilde.
Noter til: Tegning af Helsingør Banegård.
Transportselskab/ operatør: Statsbaneanlægene (DSB)
Jernbanested: Helsingør (2.)
På strækningen: Lyngby - Helsingør
Beskrivelse: Stationsbygning.
Infrastrukturejer: Statsbanedriften
Motivdato: 1890
Fotograf/ billedkunstner: ukendt
Delsamling: Ulrik T. Jensens samling
Scannummer: DSB-helsingor-plan-stuen-scan28403

Kilde: Danmarks Jernbanemuseum - Dato: 1890 - LINK til kilde.
Noter til: Tegning af Kedelhus ved Helsingør Banegård.
Transportselskab/ operatør: Statsbaneanlægene (DSB)
Jernbanested: Helsingør (2.)
På strækningen: Lyngby - Helsingør
Beskrivelse: Kedelhus.
Infrastrukturejer: Statsbanedriften
Motivdato: 1890
Fotograf/ billedkunstner: ukendt
Delsamling: Ulrik T. Jensens samling
Scannummer: DSB-Helsingør-kedelhus-scan517
Google Street View af Helsingør Station
Kilde: © Street View, by Google Maps - Dato: den 28. december 2021 - LINK til kilde.
Kort over Helsingør Station

Kort over Helsingør Station - Kilde: Indeholder data fra Styrelsen for Dataforsyning og Effektivisering, skærmkortet, WMS-tjeneste via datafordeler.dk (Ortofoto forår)

Kort over Helsingør Station - Kilde: Indeholder data fra Styrelsen for Dataforsyning og Effektivisering, skærmkortet, WMS-tjeneste via datafordeler.dk (Ortofoto forår)

Kort over Helsingør Station - Kilde: Indeholder data fra Styrelsen for Dataforsyning og Effektivisering, skærmkortet, WMS-tjeneste via datafordeler.dk (Topgrafisk kort 1980-2001)

Kort over Helsingør Station - Kilde: Indeholder data fra Styrelsen for Dataforsyning og Effektivisering, skærmkortet, WMS-tjeneste via datafordeler.dk (Topografisk kort 1953-1976)

Kort over Helsingør Station - Kilde: Indeholder data fra Styrelsen for Dataforsyning og Effektivisering, skærmkortet, WMS-tjeneste via datafordeler.dk (Lave Målebordsblade 1901-1971)
Litteratur for: Helsingør Station
![]() | Bogtitel Forfatter Udgivelsesår Sidetal Udgivelsessted Forlag ISBN | Dansk jernbanehistorie 2 Torben Andersen 2005 80 Lokomotivet 87-90-779-05-3 |
![]() | Bogtitel Forfatter Udgivelsesår Sidetal Udgivelsessted Forlag ISBN | Danske Jernbanefærger Niels Jensen 1978 96 Clausens jernbanebibliotek 87-11-03875-6 |
![]() | Bogtitel Forfatter Udgivelsesår Sidetal Udgivelsessted Forlag ISBN | Gribskovbanen (Dansk Jernbane-Klub: 57) Ole-Chr. Munk Plum, Lars Viinholt-Nielsen 2009 384 Dansk Jernbane-Klub 978-87-87050-61-6 |
![]() | Bogtitel Forfatter Udgivelsesår Sidetal Udgivelsessted Forlag ISBN | Helsingør - Hornbæk - Gilleleje Banen (Dansk Jernbane-Klub: 16) B. Wilcke & P. Thomassen 1966 101 Dansk Jernbane-Klub |
![]() | Bogtitel Forfatter Udgivelsesår Sidetal Udgivelsessted Forlag ISBN | Hornbækbanen 1906-1916-1976 (Dansk Jernbane-Klub: 39) Ole-Chr. M. Plum & Sv. Jørgensen & B. Wilcke 1976 134 Dansk Jernbane-Klub 87-87050-00-5 |
![]() | Bogtitel Forfatter Udgivelsesår Sidetal Udgivelsessted Forlag ISBN | Hornbækbanen på postkort P. Thomassen 1980 37 Haase |
![]() | Bogtitel Forfatter Udgivelsesår Sidetal Udgivelsessted Forlag ISBN | Kystbanen 1897-1972 P. Thomassen 1972 311 Historisk Topografisk selskab for Søllerød kommune |
![]() | Bogtitel Forfatter Udgivelsesår Sidetal Udgivelsessted Forlag ISBN | Nordbanen John Poulsen 2020 316 Bane Bøger 978-87-91434-56-3 |
![]() | Bogtitel Forfatter Udgivelsesår Sidetal Udgivelsessted Forlag ISBN | Nordbanen : med tog til Nordsjælland gennem 125 år John Poulsen 1991 208 Historisk-topografisk Selskab for Lyngby-Taarbæk Kommune 87-87298-20-1 |
![]() | Bogtitel Forfatter Udgivelsesår Sidetal Udgivelsessted Forlag ISBN | Nordsjællandske jernbaner Niels Jensen 1975 80 København J. Fr. Clausen 87-11-03671-0 |









