Herborg Station (Er), en artikel om Herborg Station
Stamdata for Herborg Station
| Byggeår | 1920 |
| Åbnet | 1920.11.15 |
| Nedlagt | 1955.10.02 |
| Status | Eksisterer stadig |
| Arkitekt | Heinrich Wenck |
| Adresse | Genforeningsvej 17, 6920 Videbæk |
| Stednavneforkortelse | Er |
| Højdeplacering over havet | 39,4 meter |
| GPS koordinater | 56.064956,8.595074 |
Herborg Station servicerede følgende jernbaner
| Jernbanens navn | Operatør | Længde | Åbnet | Nedlagt |
|---|---|---|---|---|
| Skjern-Videbæk | DSB | 19,5 | 1920.11.15 | 1981.06.01 |
BBR Data for Herborg StationBBR DATA fra Danmarks Adressers Web API (DAWA), som Styrelsen for Dataforsyning og Effektivisering (SDFE) har ansvaret for.BBR DATA hentet: 2020-05-21 23:24:05 | |
| BBR Højde over havet | 39,4 meter |
| BBR GPS koordinater | 56.0649507,8.59506918 |
| BBR Byggeår eller konverteringsår | 1918 |
| BBR Seneste ombygning | 2000 |
| BBR Bebygget areal i alt | 147 m2 |
| BBR Bebygget areal hovedbygningen | 147 m2 |
| BBR Samlet boligareal | 162 m2 |
| BBR Samlet erhvervsareal | 76 m2 |
| BBR Antal etager | 1 |
Billede af Herborg Station

Fotograf: Det Kgl. Bibliotek, Sylvest Jensen Luftfoto - Dato: 1961 - LINK til kilde.
Noter til: Billede af Herborg Station.
Titel: Herborg Station - 1961 -
Person: Bygningsnavn: Herborg Station
Sted: Danmark, Jylland, Ringkøbing amt, Herborg sogn og by,
Genforeningsvej, 6920 Videbæk
Vejnavn: Husnummer: Lokalitet: Postnummer: By: Sogn: Matrikelnummer: Ophav: Sylvest Jensen Luftfoto
År: 1961
Note: Id: H11788_004.tif
Billeder af Herborg Station

Fotograf: Jacob Laursen - Dato: den 13. juli 2023 Download billede

Fotograf: Jacob Laursen - Dato: den 13. juli 2023 Download billede

Fotograf: Jacob Laursen - Dato: den 13. juli 2023 Download billede

Fotograf: Det Kgl. Bibliotek, Aalborg Luftfoto - Dato: 1964 - LINK til kilde.
Noter til: Billede af Herborg Station.
Titel: Genforeningsvej 17 - 1964 -
Person: Bygningsnavn: Sted: Genforeningsvej 17, Herborg, 6920 Videbæk
Vejnavn: Genforeningsvej
Husnummer: 17
Lokalitet: Herborg
Postnummer: 6920
By: Videbæk
Sogn: Herborg
Matrikelnummer: 38a, Herborg By, Herborg
Ophav: Aalborg Luftfoto
År: 1964
Note: Herborg Station ? - Vester Herborg
Id: AAL_02729_015.tif

Fotograf: Det Kgl. Bibliotek, Dana Luftfoto/Odense Luftfoto - Dato: 1953 - LINK til kilde.
Noter til: Billede af Herborg Station.
Titel: - 1953 -
Person: Bygningsnavn: Sted: Danmark, Jylland, Videbæk, Herborg
Vejnavn: Husnummer: Lokalitet: Postnummer: By: Sogn: Matrikelnummer: Ophav: Odense Luftfoto
År: 1953
Note: Id: OD01093_023.tif

Fotograf: Jacob Laursen - Dato: den 13. juli 2023 Download billede

Fotograf: Jacob Laursen - Dato: den 13. juli 2023 Download billede

Fotograf: Jacob Laursen - Dato: den 13. juli 2023 Download billede
Tegninger af Herborg Station

Kilde: Danmarks Jernbanemuseum - Dato: 1919 (marts) - LINK til kilde.
Noter til: Tegning af Herborg Station.
Transportselskab/ operatør: De danske Statsbaner (DSB)
Jernbanested: Skjern - Videbæk
Beskrivelse: Stationsbygning: *Kongsholm, *Sædding og *Herborg.
Infrastrukturejer: De danske Statsbaner
Motivdato: 3/1919
Fotograf/ billedkunstner: Sign.: H. Wenck
Delsamling: Ulrik T. Jensens samling
Scannummer: DSB-Kongsholm-Herborg-Sadding-scan27402

Kilde: Danmarks Jernbanemuseum - Dato: 18. sep. 1919 - LINK til kilde.
Noter til: Tegning af Herborg Station.
Transportselskab/ operatør: De danske Statsbaner (DSB)
Jernbanested: Skjern - Videbæk
Beskrivelse: Stationsbygning: *Kongsholm, *Sædding og *Herborg.
Infrastrukturejer: De danske Statsbaner
Motivdato: 18. sep. 1919
Fotograf/ billedkunstner: Sign.: H. Wenck
Delsamling: Ulrik T. Jensens samling
Scannummer: DSB-Kongsholm-Herborg-Sadding-scan27406

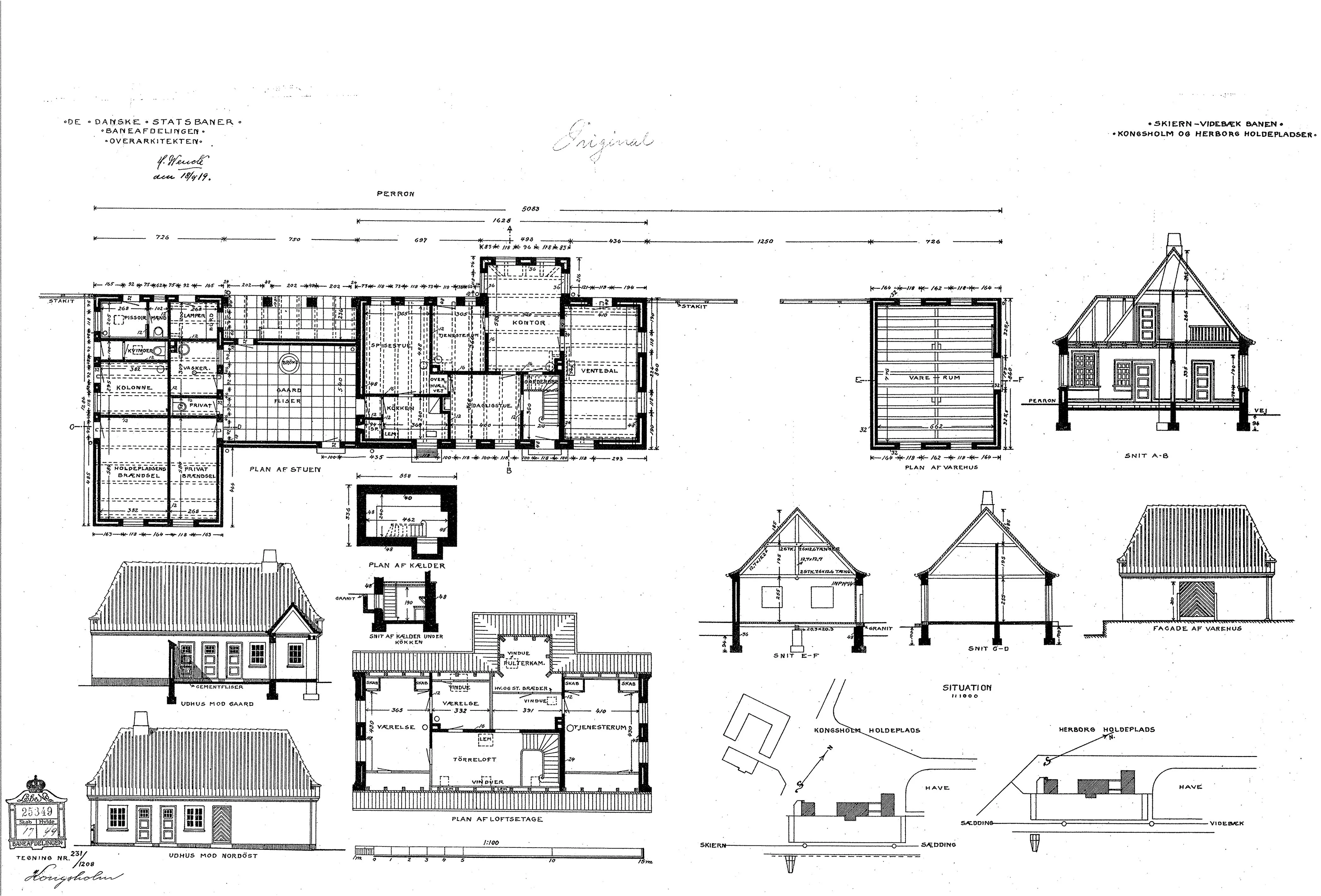
Kilde: Danmarks Jernbanemuseum - Dato: 18. sep. 1919 - LINK til kilde.
Noter til: Tegning af Herborg Station.
Transportselskab/ operatør: De danske Statsbaner (DSB)
Jernbanested: Skjern - Videbæk
Beskrivelse: Stationsbygning: *Kongsholm, *Sædding og *Herborg.
Infrastrukturejer: De danske Statsbaner
Motivdato: 18. sep. 1919
Fotograf/ billedkunstner: Sign.: H. Wenck
Delsamling: Ulrik T. Jensens samling
Scannummer: DSB-Kongsholm-Herborg-scan27407
Google Street View af Herborg Station
Kilde: © Street View, by Google Maps - Dato: den 28. december 2021 - LINK til kilde.
Kort over Herborg Station

Kort over Herborg Station - Kilde: Indeholder data fra Styrelsen for Dataforsyning og Effektivisering, skærmkortet, WMS-tjeneste via datafordeler.dk (Ortofoto forår)

Kort over Herborg Station - Kilde: Indeholder data fra Styrelsen for Dataforsyning og Effektivisering, skærmkortet, WMS-tjeneste via datafordeler.dk (Ortofoto forår)

Kort over Herborg Station - Kilde: Indeholder data fra Styrelsen for Dataforsyning og Effektivisering, skærmkortet, WMS-tjeneste via datafordeler.dk (Topgrafisk kort 1980-2001)

Kort over Herborg Station - Kilde: Indeholder data fra Styrelsen for Dataforsyning og Effektivisering, skærmkortet, WMS-tjeneste via datafordeler.dk (Topografisk kort 1953-1976)

Kort over Herborg Station - Kilde: Indeholder data fra Styrelsen for Dataforsyning og Effektivisering, skærmkortet, WMS-tjeneste via datafordeler.dk (Lave Målebordsblade 1901-1971)
Litteratur for: Herborg Station
![]() | Bogtitel Forfatter Udgivelsesår Sidetal Udgivelsessted Forlag ISBN | Vestjyske jernbaner Niels Jensen 1977 110 København J. Fr. Clausen 87-11-03821-7 |
