Skælskør Station (Ss), en artikel om Skælskør Station
Stationens Etablering og Arkitektoniske Udformning
Skælskør Station blev anlagt i 1892 som en del af jernbaneforbindelsen til byen. Stationen blev tegnet af arkitekten N.P.C. Holsøe, som stod bag flere stationsbygninger i Danmark i denne periode. Skælskør Station blev et vigtigt trafikalt knudepunkt for byen og medvirkede til at forbinde Skælskør med det øvrige regionale jernbanenet.Den oprindelige stationsbygning blev opført i røde teglsten og var en markant bygning i bybilledet. Stationen havde kun ét perronspor, men bygningen rummede flere funktioner, herunder en stationsforstanderbolig på første sal samt et varehus og et posthus, som lå nordøst for stationen. I takt med at byen og stationens funktioner udviklede sig, blev der i 1897 anlagt et sidespor til svineslagteriet bag varehuset. I 1915-1916 blev der yderligere anlagt flere sidespor samt en drejeskive, hvilket gjorde det muligt at håndtere en større mængde godstransport.
Skælskør som Industriby
Skælskør havde allerede i midten af 1800-tallet en begyndende industrialisering, og i 1853 var byen hjemsted for en dampmølle. Med tiden voksede den industrielle sektor betydeligt, og byen blev kendt for sine brændevinsbrænderier, ølbryggerier, garverier og bådebyggeri.Omkring århundredeskiftet blev Skælskør et vigtigt centrum for industri og handel. Flere virksomheder blev etableret, herunder tobaksfabrikker, uldspinderier og en række andre industrielle foretagender. Befolkningstallet steg i takt med byens økonomiske vækst, og i 1906 var mange af byens borgere beskæftiget inden for håndværk, industri, handel, søfart, fiskeri og landbrug.
Jernbanen spillede en afgørende rolle i denne udvikling ved at gøre det nemmere at transportere råvarer til virksomhederne og færdige produkter ud til markedet. Med jernbanens ankomst blev Skælskør i endnu højere grad en del af Danmarks industrielle netværk.
Godstransport og Udvidelser
Skælskør Station håndterede i mange år en betydelig mængde gods, primært til byens industri. Udvidelsen af stationens faciliteter i 1915-1916, hvor flere sidespor og en drejeskive blev etableret, gjorde det muligt at håndtere et større antal vogne og mere kompleks trafikstyring.Særligt transporten af landbrugsprodukter og fødevarer spillede en vigtig rolle for stationens aktivitet. Svineslagteriet, som fik sit eget sidespor i 1897, var en af de store godskunder. Gennem årene blev stationen også brugt til at transportere brændevin, øl, tekstiler og andre varer produceret i byen.
Veterantogsklubben "Omstigningsklubben"
Efterhånden som den almindelige togdrift på stationen blev indskrænket, blev stationen et samlingspunkt for jernbaneentusiaster. I 1973 blev veterantogsklubben "Omstigningsklubben" stiftet, og fra 1975 begyndte klubben at køre sporvogne på strækningen mellem Skælskør Station og havnen.Klubben var aktiv i mange år og tiltrak både turister og lokalbefolkningen, der ønskede at opleve en nostalgisk togrejse gennem byen. Veterantogskørslen fortsatte frem til 2011, hvor Harboe Bryggeri overtog stationsgrunden, og skinnerne blev fjernet for at gøre plads til Fodsporet – en asfalteret sti, der i dag bruges af cyklister og fodgængere.
Sporvognene, som tidligere kørte på strækningen, er i dag udstillet på Sporvejsmuseet Skjoldenæsholm, hvor de bevares som en del af den danske jernbanehistorie.
Nedlæggelsen og Eftermælet
Skælskør Station spillede i mange år en central rolle i byens udvikling, men med tiden ændrede transportbehovene sig. Øget biltrafik og modernisering af transportnettet gjorde, at jernbanen mistede sin betydning, og stationen blev nedlagt.I dag er stationens historie stadig en vigtig del af byens identitet, og mange ser tilbage på stationens storhedstid med nostalgi. Fodsporet, som i dag erstatter den gamle jernbanestrækning, bruges flittigt af både lokale og turister, og stationens tidligere placering er stadig et kendt punkt i byen.
Stamdata for Skælskør Station
| Andre navne og stavemåder | Før 15.05.1933 Skelskør, før 15.05.1931 Skjelskør, før __.__.1892 Skælskør. Pr. 01.10.1891 Skelskør (i tjenestekøreplan før banens åbning). |
| Byggeår | 1892 |
| Åbnet | 1892.05.15 |
| Nedlagt | 1950.10.07 |
| Status | Eksisterer stadig |
| Arkitekt | N.P.C. Holsøe |
| Adresse | Stationsvej 5, 4230 Skælskør |
| Stednavneforkortelse | Ss |
| Højdeplacering over havet | 2,5 meter |
| GPS koordinater | 55.250592,11.292396 |
Skælskør Station servicerede følgende jernbaner
| Jernbanens navn | Operatør | Længde | Åbnet | Nedlagt |
|---|---|---|---|---|
| Dalmose-Skælskør | DSB | 11,5 | 1892.05.15 | 1975.09.27 |
BBR Data for Skælskør StationBBR DATA fra Danmarks Adressers Web API (DAWA), som Styrelsen for Dataforsyning og Effektivisering (SDFE) har ansvaret for.BBR DATA hentet: 2022-10-30 12:08:21 | |
| BBR Højde over havet | 2,5 meter |
| BBR GPS koordinater | 55.25059957,11.29235545 |
| BBR Byggeår eller konverteringsår | 1892 |
| BBR Bebygget areal i alt | 190 m2 |
| BBR Bebygget areal hovedbygningen | 190 m2 |
| BBR Samlet erhvervsareal | 190 m2 |
| BBR Antal etager | 1 |
Billede af Skælskør Station

Fotograf: Jacob Laursen - Dato: den 21. februar 2009 Download billede
Billeder af Skælskør Station

Fotograf: Jacob Laursen - Dato: den 1. juni 2017 Download billede

Fotograf: Jacob Laursen - Dato: den 1. juni 2017 Download billede

Fotograf: Jacob Laursen - Dato: den 1. juni 2017 Download billede

Fotograf: Jacob Laursen - Dato: den 1. juni 2017 Download billede

Fotograf: Jacob Laursen - Dato: den 1. juni 2017 Download billede

Fotograf: Jacob Laursen - Dato: den 1. juni 2017 Download billede

Fotograf: Jacob Laursen - Dato: den 1. juni 2017 Download billede

Fotograf: Jacob Laursen - Dato: den 1. juni 2017 Download billede

Fotograf: Jacob Laursen - Dato: den 1. juni 2017 Download billede

Fotograf: Jacob Laursen - Dato: den 1. juni 2017 Download billede

Fotograf: Jacob Laursen - Dato: den 1. juni 2017 Download billede

Fotograf: Jacob Laursen - Dato: den 1. juni 2017 Download billede

Fotograf: Jacob Laursen - Dato: den 1. juni 2017 Download billede

Fotograf: Jacob Laursen - Dato: den 1. juni 2017 Download billede

Fotograf: Jacob Laursen - Dato: den 1. juni 2017 Download billede

Fotograf: Jacob Laursen - Dato: den 1. juni 2017 Download billede

Fotograf: Jacob Laursen - Dato: den 1. juni 2017 Download billede

Fotograf: Jacob Laursen - Dato: den 1. juni 2017 Download billede

Fotograf: Jacob Laursen - Dato: den 1. juni 2017 Download billede

Fotograf: Jacob Laursen - Dato: den 1. juni 2017 Download billede

Fotograf: Jacob Laursen - Dato: den 21. februar 2009 Download billede

Fotograf: Jacob Laursen - Dato: den 21. februar 2009 Download billede

Fotograf: Jacob Laursen - Dato: den 21. februar 2009 Download billede

Fotograf: Jacob Laursen - Dato: den 21. februar 2009 Download billede

Fotograf: Jacob Laursen - Dato: den 21. februar 2009 Download billede

Fotograf: Jacob Laursen - Dato: den 21. februar 2009 Download billede

Fotograf: Jacob Laursen - Dato: den 21. februar 2009 Download billede

Fotograf: Jacob Laursen - Dato: den 21. februar 2009 Download billede

Fotograf: Jacob Laursen - Dato: den 21. februar 2009 Download billede

Fotograf: Jacob Laursen - Dato: den 21. februar 2009 Download billede

Fotograf: Jacob Laursen - Dato: den 21. februar 2009 Download billede

Fotograf: Det Kgl. Bibliotek, Sylvest Jensen Luftfoto - Dato: 1956 - LINK til kilde.
Noter til: Billede af Skælskør Station.
Titel:- 1956 -
Bygningsnavn:Vaskeri og ægpakkeri
Sted:Danmark, Sjælland, Skælskør
Vejnavn:Maglehaven
Postnummer:4230
By:Skælskør
Ophav:Sylvest Jensen Luftfoto
År:1956
Id:B02296_006.tif

Fotograf: Det Kgl. Bibliotek, Sylvest Jensen Luftfoto - Dato: 1956 - LINK til kilde.
Noter til: Billede af Skælskør Station.
Titel:- 1956 - Harboes Bryggeri
Bygningsnavn:Harboes Bryggeri
Sted:Danmark, Sjælland, Skælskør
Vejnavn:Spegerborgvej
Postnummer:4230
By:Skælskør
Ophav:Sylvest Jensen Luftfoto
År:1956
Id:B-dia_02296_005.tif

Fotograf: Det Kgl. Bibliotek, Sylvest Jensen Luftfoto - Dato: 1956 - LINK til kilde.
Noter til: Billede af Skælskør Station.
Titel:- 1956 -
Sted:Danmark, Sjælland, Skælskør
Ophav:Sylvest Jensen Luftfoto
År:1956
Id:B-dia_02296_004.tif

Fotograf: Jacob Laursen - Dato: den 21. februar 2009 Download billede

Fotograf: Jacob Laursen - Dato: den 21. februar 2009 Download billede

Fotograf: Jacob Laursen - Dato: den 21. februar 2009 Download billede

Fotograf: Jacob Laursen - Dato: den 21. februar 2009 Download billede

Fotograf: Jacob Laursen - Dato: den 21. februar 2009 Download billede

Fotograf: Jacob Laursen - Dato: den 21. februar 2009 Download billede

Fotograf: Jacob Laursen - Dato: den 21. februar 2009 Download billede

Fotograf: Jacob Laursen - Dato: den 21. februar 2009 Download billede

Fotograf: Jacob Laursen - Dato: den 21. februar 2009 Download billede

Fotograf: Jacob Laursen - Dato: den 21. februar 2009 Download billede

Fotograf: Jacob Laursen - Dato: den 21. februar 2009 Download billede

Fotograf: Jacob Laursen - Dato: den 21. februar 2009 Download billede

Fotograf: Jacob Laursen - Dato: den 21. februar 2009 Download billede

Fotograf: Jacob Laursen - Dato: den 21. februar 2009 Download billede

Fotograf: Jacob Laursen - Dato: den 21. februar 2009 Download billede

Fotograf: Jacob Laursen - Dato: den 21. februar 2009 Download billede

Fotograf: Jacob Laursen - Dato: den 21. februar 2009 Download billede

Fotograf: Jacob Laursen - Dato: den 21. februar 2009 Download billede

Fotograf: Jacob Laursen - Dato: den 21. februar 2009 Download billede

Fotograf: Jacob Laursen - Dato: den 21. februar 2009 Download billede
Tegninger af Skælskør Station

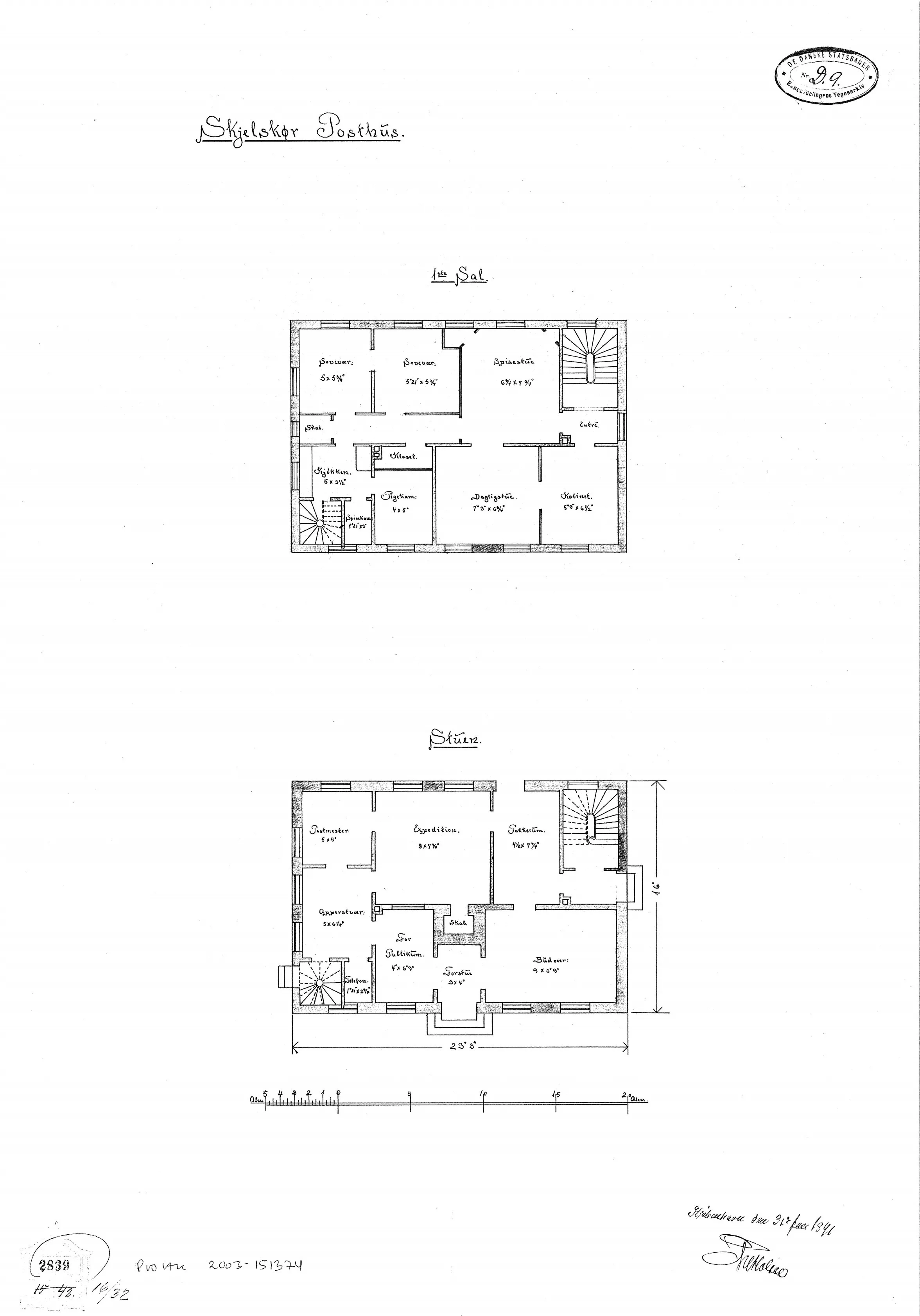
Kilde: Danmarks Jernbanemuseum - Dato: 31. jan. 1891 - LINK til kilde.
Noter til: Tegning af Posthus ved Skælskør Station.
Transportselskab/ operatør: Statsbaneanlægene (DSB)
Jernbanested: Skælskør
Navneændringer: Før 15.05.1933 Skelskør, før 15.05.1931 Skjelskør, før __.__.1892 Skælskør. Pr. 01.10.1891 Skelskør (i tjenestekøreplan før banens åbning).
På strækningen: Dalmose - Skælskør
Beskrivelse: Posthus.
Infrastrukturejer: Statsbanedriften
Motivdato: 31. jan. 1891
Fotograf/ billedkunstner: Sign.: N.P.C. Holsøe
Delsamling: Ulrik T. Jensens samling
Scannummer: DSB-Skalskor-posthus-plan-scan27864

Kilde: Danmarks Jernbanemuseum - Dato: 1891 - LINK til kilde.
Noter til: Tegning af Skælskør Station.
Transportselskab/ operatør: Statsbanedriften (DSB)
Jernbanested: Skælskør
Navneændringer: Før 15.05.1933 Skelskør, før 15.05.1931 Skjelskør, før __.__.1892 Skælskør. Pr. 01.10.1891 Skelskør (i tjenestekøreplan før banens åbning).
På strækningen: Dalmose - Skælskør
Beskrivelse: Stationsbygning.
Infrastrukturejer: Statsbanedriften
Motivdato: 1891
Delsamling: Ulrik T. Jensens samling
Scannummer: DSB-Skalskor-loft-kalder-scan27826

Kilde: Danmarks Jernbanemuseum - Dato: 1891 - LINK til kilde.
Noter til: Tegning af Skælskør Station.
Transportselskab/ operatør: Statsbanedriften (DSB)
Jernbanested: Skælskør
Navneændringer: Før 15.05.1933 Skelskør, før 15.05.1931 Skjelskør, før __.__.1892 Skælskør. Pr. 01.10.1891 Skelskør (i tjenestekøreplan før banens åbning).
På strækningen: Dalmose - Skælskør
Beskrivelse: Stationsbygning.
Infrastrukturejer: Statsbanedriften
Motivdato: 1891
Delsamling: Ulrik T. Jensens samling
Scannummer: DSB-Skalskor-opstalter-scan27829

Kilde: Danmarks Jernbanemuseum - Dato: 1891 - LINK til kilde.
Noter til: Tegning af Skælskør Stations Staldbygning.
Transportselskab/ operatør: Statsbanedriften (DSB)
Jernbanested: Skælskør
Navneændringer: Før 15.05.1933 Skelskør, før 15.05.1931 Skjelskør, før __.__.1892 Skælskør. Pr. 01.10.1891 Skelskør (i tjenestekøreplan før banens åbning).
På strækningen: Dalmose - Skælskør
Beskrivelse: Staldbygning.
Infrastrukturejer: Statsbanedriften
Motivdato: 1891
Delsamling: Ulrik T. Jensens samling
Scannummer: DSB-Skalskor-stald-scan27867

Kilde: Danmarks Jernbanemuseum - Dato: 1891 - LINK til kilde.
Noter til: Tegning af Skælskør Station.
Transportselskab/ operatør: Statsbanedriften (DSB)
Jernbanested: Skælskør
Navneændringer: Før 15.05.1933 Skelskør, før 15.05.1931 Skjelskør, før __.__.1892 Skælskør. Pr. 01.10.1891 Skelskør (i tjenestekøreplan før banens åbning).
På strækningen: Dalmose - Skælskør
Beskrivelse: Stationsbygning.
Infrastrukturejer: Statsbanedriften
Motivdato: 1891
Delsamling: Ulrik T. Jensens samling
Scannummer: DSB-Skalskor-tvarsnit-scan27828

Kilde: Danmarks Jernbanemuseum - Dato: 1891 - LINK til kilde.
Noter til: Tegning af Skælskør Stations varehus.
Transportselskab/ operatør: Statsbanedriften (DSB)
Jernbanested: Skælskør
Navneændringer: Før 15.05.1933 Skelskør, før 15.05.1931 Skjelskør, før __.__.1892 Skælskør. Pr. 01.10.1891 Skelskør (i tjenestekøreplan før banens åbning).
På strækningen: Dalmose - Skælskør
Beskrivelse: Varehus.
Infrastrukturejer: Statsbanedriften
Motivdato: 1891
Delsamling: Ulrik T. Jensens samling
Scannummer: DSB-skalskor-varehus-scan27830

Kilde: Danmarks Jernbanemuseum - Dato: 1891 - LINK til kilde.
Noter til: Tegning af Skælskør Stations remise.
Transportselskab/ operatør: Statsbaneanlægene (DSB)
Jernbanested: Skælskør
Navneændringer: Før 15.05.1933 Skelskør, før 15.05.1931 Skjelskør, før __.__.1892 Skælskør. Pr. 01.10.1891 Skelskør (i tjenestekøreplan før banens åbning).
På strækningen: Dalmose - Skælskør
Beskrivelse: Lokomotivremise.
Infrastrukturejer: Statsbanedriften
Motivdato: 1891
Fotograf/ billedkunstner: ukendt
Delsamling: Ulrik T. Jensens samling
Scannummer: DSB-Skalskor-remise-scan27831
Google Street View af Skælskør Station
Kilde: © Street View, by Google Maps - Dato: den 10. januar 2022 - LINK til kilde.
Kort over Skælskør Station

Kort over Skælskør Station - Kilde: Indeholder data fra Styrelsen for Dataforsyning og Effektivisering, skærmkortet, WMS-tjeneste via datafordeler.dk (Ortofoto forår)

Kort over Skælskør Station - Kilde: Indeholder data fra Styrelsen for Dataforsyning og Effektivisering, skærmkortet, WMS-tjeneste via datafordeler.dk (Ortofoto forår)

Kort over Skælskør Station - Kilde: Indeholder data fra Styrelsen for Dataforsyning og Effektivisering, skærmkortet, WMS-tjeneste via datafordeler.dk (Topgrafisk kort 1980-2001)

Kort over Skælskør Station - Kilde: Indeholder data fra Styrelsen for Dataforsyning og Effektivisering, skærmkortet, WMS-tjeneste via datafordeler.dk (Topografisk kort 1953-1976)

Kort over Skælskør Station - Kilde: Indeholder data fra Styrelsen for Dataforsyning og Effektivisering, skærmkortet, WMS-tjeneste via datafordeler.dk (Lave Målebordsblade 1901-1971)
Litteratur for: Skælskør Station
![]() | Bogtitel Forfatter Udgivelsesår Sidetal Udgivelsessted Forlag ISBN | Toget går via Dalmose: Slagelse-Næstved og Skælskør-Banen gennem 100 år Henning Pedersen og Ole-Chr. M. Plum 1992 96 Bane Bøger 87-88632-38-5 |
![]() | Bogtitel Forfatter Udgivelsesår Sidetal Udgivelsessted Forlag ISBN | Vestsjællandske jernbaner Niels Jensen 1978 103 København J. Fr. Clausen 87-11-03879-9 |

