Kongsholm Station (Oo), en artikel om Kongsholm Station
Eksternt link til billeder på Banebasen: Kongsholm Station
Stamdata for Kongsholm Station
| Byggeår | 1920 |
| Åbnet | 1920.11.15 |
| Nedlagt | 1955.10.02 |
| Status | Eksisterer stadig |
| Arkitekt | Heinrich Wenck |
| Adresse | Kongsholm St Vej 3, 6900 Skjern |
| Stednavneforkortelse | Oo |
| Højdeplacering over havet | 19,6 meter |
| GPS koordinater | 55.989171,8.510321 |
Kongsholm Station servicerede følgende jernbaner
| Jernbanens navn | Operatør | Længde | Åbnet | Nedlagt |
|---|---|---|---|---|
| Skjern-Videbæk | DSB | 19,5 | 1920.11.15 | 1981.06.01 |
BBR Data for Kongsholm StationBBR DATA fra Danmarks Adressers Web API (DAWA), som Styrelsen for Dataforsyning og Effektivisering (SDFE) har ansvaret for.BBR DATA hentet: 2020-05-21 23:24:25 | |
| BBR Højde over havet | 19,6 meter |
| BBR GPS koordinater | 55.98918166,8.51027052 |
| BBR Byggeår eller konverteringsår | 1922 |
| BBR Seneste ombygning | 1982 |
| BBR Bebygget areal i alt | 147 m2 |
| BBR Bebygget areal hovedbygningen | 147 m2 |
| BBR Samlet boligareal | 247 m2 |
| BBR Antal etager | 1 |
Billede af Kongsholm Station

Fotograf: Det Kgl. Bibliotek, Dana Luftfoto/Odense Luftfoto - Dato: 1956 - LINK til kilde.
Noter til: Billede af Kongsholm Station.
Titel: Kongsholm Station
Person: Lunde, Laurids
Bygningsnavn: Kongsholm Station
Sted: Danmark, Jylland, Skjern, Hanning, Kongsholms Stations Vej
Vejnavn: Kongsholm Stationsvej
Husnummer: 3
Lokalitet: Postnummer: 6900
By: Skjern
Sogn: Hanning
Matrikelnummer: Ophav: Odense Luftfoto
År: 1956
Note: Id: OD02095_016.tif
Billeder af Kongsholm Station

Fotograf: Det Kgl. Bibliotek, Sylvest Jensen Luftfoto - Dato: 1961 - LINK til kilde.
Noter til: Billede af Kongsholm Station.
Titel: Kongsholm Station - 1961 -
Person: Nielsen, Ejnar,
Bygningsnavn: Kongsholm Station
Sted: Danmark, Jylland, Skjern, Hanning.
Vejnavn: Kongsholm Stationsvej
Husnummer: 3
Lokalitet: Kongsholm
Postnummer: 6900
By: Skjern
Sogn: Hanning
Matrikelnummer: Ophav: Sylvest Jensen Luftfoto
År: 1961
Note: Id: H11426_019.tif
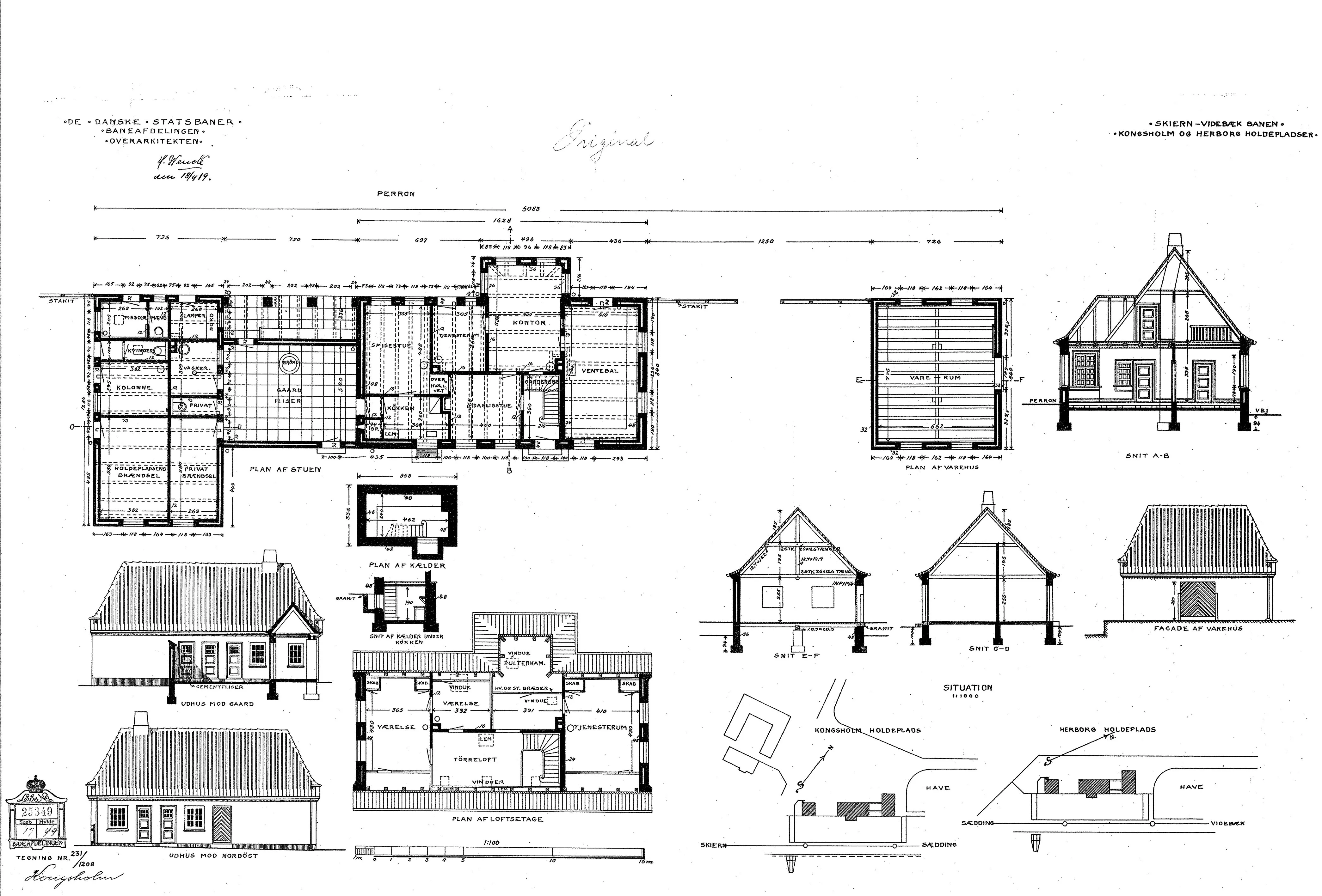
Tegninger af Kongsholm Station

Kilde: Danmarks Jernbanemuseum - Dato: 1919 (marts) - LINK til kilde.
Noter til: Tegning af Kongsholm Station.
Transportselskab/ operatør: De danske Statsbaner (DSB)
Jernbanested: Skjern - Videbæk
Beskrivelse: Stationsbygning: *Kongsholm, *Sædding og *Herborg.
Infrastrukturejer: De danske Statsbaner
Motivdato: 3/1919
Fotograf/ billedkunstner: Sign.: H. Wenck
Delsamling: Ulrik T. Jensens samling
Scannummer: DSB-Kongsholm-Herborg-Sadding-scan27402

Kilde: Danmarks Jernbanemuseum - Dato: 18. sep. 1919 - LINK til kilde.
Noter til: Tegning af Kongsholm Station.
Transportselskab/ operatør: De danske Statsbaner (DSB)
Jernbanested: Skjern - Videbæk
Beskrivelse: Stationsbygning: *Kongsholm, *Sædding og *Herborg.
Infrastrukturejer: De danske Statsbaner
Motivdato: 18. sep. 1919
Fotograf/ billedkunstner: Sign.: H. Wenck
Delsamling: Ulrik T. Jensens samling
Scannummer: DSB-Kongsholm-Herborg-Sadding-scan27406

Kilde: Danmarks Jernbanemuseum - Dato: 18. sep. 1919 - LINK til kilde.
Noter til: Tegning af Kongsholm Station.
Transportselskab/ operatør: De danske Statsbaner (DSB)
Jernbanested: Skjern - Videbæk
Beskrivelse: Stationsbygning: *Kongsholm, *Sædding og *Herborg.
Infrastrukturejer: De danske Statsbaner
Motivdato: 18. sep. 1919
Fotograf/ billedkunstner: Sign.: H. Wenck
Delsamling: Ulrik T. Jensens samling
Scannummer: DSB-Kongsholm-Herborg-scan27407
Google Street View af Kongsholm Station
Kilde: © Street View, by Google Maps - Dato: den 30. december 2021 - LINK til kilde.
Kort over Kongsholm Station

Kort over Kongsholm Station - Kilde: Indeholder data fra Styrelsen for Dataforsyning og Effektivisering, skærmkortet, WMS-tjeneste via datafordeler.dk (Ortofoto forår)

Kort over Kongsholm Station - Kilde: Indeholder data fra Styrelsen for Dataforsyning og Effektivisering, skærmkortet, WMS-tjeneste via datafordeler.dk (Ortofoto forår)

Kort over Kongsholm Station - Kilde: Indeholder data fra Styrelsen for Dataforsyning og Effektivisering, skærmkortet, WMS-tjeneste via datafordeler.dk (Topgrafisk kort 1980-2001)

Kort over Kongsholm Station - Kilde: Indeholder data fra Styrelsen for Dataforsyning og Effektivisering, skærmkortet, WMS-tjeneste via datafordeler.dk (Topografisk kort 1953-1976)

Kort over Kongsholm Station - Kilde: Indeholder data fra Styrelsen for Dataforsyning og Effektivisering, skærmkortet, WMS-tjeneste via datafordeler.dk (Lave Målebordsblade 1901-1971)
Litteratur for: Kongsholm Station
![]() | Bogtitel Forfatter Udgivelsesår Sidetal Udgivelsessted Forlag ISBN | Vestjyske jernbaner Niels Jensen 1977 110 København J. Fr. Clausen 87-11-03821-7 |
